|
|
|
| Larry Stein Oklahoma County Assessor (405) 713-1200 - Public Access System |
|
|
|
|
|
|
| Real Property Display - Screen Produced 3/13/2026 2:42:20 AM | ||||
|---|---|---|---|---|
| Account: R148251815 | Type: Residential | Location: |
8308 S OLIE AVE |
|
| Building Name/Occupant: |
|
OKLAHOMA CITY |
||
| Owner Name 1: | DUNLAP RONALD L & SHARON JUNE |
Parcel PIN#: |
1731-14-825-1815 |
|
| Owner Name 2: | 1/4 section #: |
1731 |
||
| Owner Name 3: | Parent Acct: |
|
||
| Billing Address: | 8308 S OLIE AVE | Tax District: |
|
|
| City, State, Zip | OKLAHOMA CITY, OK 73139-9330 | School System: |
Moore #2 |
|
|
Country: (If noted) |
Land Size: |
0.4423 Acres |
||
|
Land Value: 22,750 |
|
|||
|
Sect 33-T11N-R3W Qtr SW |
CRESTLINE PARK SUB
Block
002
Lot
000
|
|||
| Full Legal Description: CRESTLINE PARK SUB 002 000 N/2 LOT 21 |
| Photo & Sketch (if available) | Comp Sales (ordered by relevancy) |
|
||||||||||||||||||
|
||||||||||||||||||||
| Value History (*The County Treasurer 405-713-1300 posts & collects actual tax amounts. Contact information HERE) | |||||||||||||
|---|---|---|---|---|---|---|---|---|---|---|---|---|---|
| Year | Market Value | Taxable Mkt Value | Gross Assessed | Exemption | Net Assessed | Millage | Est. Tax | Tax Savings | |||||
|
2025 |
160,000 |
52,270 |
5,749 |
1,000 |
4,749 |
120.83 |
$574 |
$1,553 |
|||||
|
2024 |
147,000 |
52,270 |
5,749 |
1,000 |
4,749 |
119.82 |
$569 |
$1,368 |
|||||
|
2023 |
140,000 |
52,270 |
5,749 |
1,000 |
4,749 |
119.00 |
$565 |
$1,267 |
|||||
|
2022 |
119,500 |
52,270 |
5,749 |
1,000 |
4,749 |
121.59 |
$578 |
$1,021 |
|||||
|
2021 |
97,500 |
52,270 |
5,749 |
1,000 |
4,749 |
120.72 |
$573 |
$721 |
|||||
| Property Account Status/Adjustments/Exemptions | ||
|---|---|---|
| Account # | Exemption Description | Amount |
|
R148251815 |
Freeze Senior Valuation |
0 |
|
R148251815 |
Homestead |
1,000 |
|
R148251815 |
3% Cap Homestead |
0 |
| Property Deed Transaction History (Recorded in the County Clerk's Office) | |||||||
|---|---|---|---|---|---|---|---|
| Date | Type | Book | Page | Price | Grantor | Grantee | |
|
6/30/2004 |
|
Hmstd Off & |
$0 |
LOVE OSCAR E & LAWANDA C TRS LOVE REVOCABLE LIVING TRUST |
DUNLAP RONALD L & SHARON JUNE |
||
|
6/10/1999 |
|
Deeds |
$0 |
LOVE OSCAR E & LAWANDA C |
LOVE OSCAR E & LAWANDA C TRS |
||
|
8/3/1998 |
|
Historical |
$0 |
LOVE OSCAR E & LAWANDA C |
LOVE OSCAR E & LAWANDA C |
||
|
11/11/1911 |
|
Historical |
$0 |
|
LOVE OSCAR E & LAWANDA C |
||
| Last Mailed Notice of Value (N.O.V.) Information/History | ||||||||
|---|---|---|---|---|---|---|---|---|
| Year | Date | Market Value | Taxable Market Value | Gross Assessed | Exemption | Net Assessed | ||
|
2025 |
01/31/2025 |
160,000 |
52,270 |
5,749 |
1,000 |
4,749 |
||
|
2024 |
01/22/2024 |
147,000 |
52,270 |
5,749 |
1,000 |
4,749 |
||
|
2023 |
01/23/2023 |
140,000 |
52,270 |
5,749 |
1,000 |
4,749 |
||
|
2022 |
02/22/2022 |
119,500 |
52,270 |
5,749 |
1,000 |
4,749 |
||
|
2021 |
02/24/2021 |
97,500 |
52,270 |
5,749 |
1,000 |
4,749 |
||
| Property Building Permit History | |||||||||||
|---|---|---|---|---|---|---|---|---|---|---|---|
| Issued | Permit # | Provided by | Bldg # | Description | Est Construction Cost | Status | |||||
| No Building Permit records returned. | |||||||||||
| Click button on building number to access detailed information: | ||||||
|---|---|---|---|---|---|---|
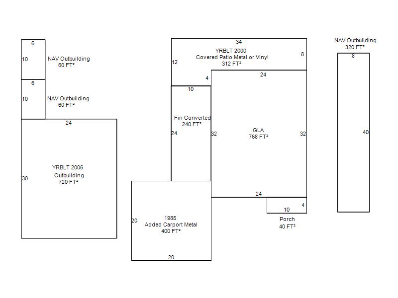
| Bldg # | Vacant/Improved Land | Bldg Description | Year Built | SqFt | # Stories | |
|
1 |
Improved |
Ranch 1 Story |
1966 |
768 |
1 Stories |
|