|
|
|
| Larry Stein Oklahoma County Assessor (405) 713-1200 - Public Access System |
|
|
|
|
|
|
| Real Property Display - Screen Produced 3/13/2026 12:57:38 AM | ||||
|---|---|---|---|---|
| Account: R148252700 | Type: Residential | Location: |
801 SW 85TH ST |
|
| Building Name/Occupant: |
|
OKLAHOMA CITY |
||
| Owner Name 1: | HUTTO SANDRA |
Parcel PIN#: |
1731-14-825-2700 |
|
| Owner Name 2: | 1/4 section #: |
1731 |
||
| Owner Name 3: | Parent Acct: |
|
||
| Billing Address: | 2617 SW 90TH ST | Tax District: |
|
|
| City, State, Zip | OKLAHOMA CITY, OK 73159 | School System: |
Moore #2 |
|
|
Country: (If noted) |
Land Size: |
0.7372 Acres |
||
|
Land Value: 37,918 |
|
|||
|
Sect 33-T11N-R3W Qtr SW |
CRESTLINE PARK SUB
Block
003
Lot
000
|
|||
| Full Legal Description: CRESTLINE PARK SUB 003 000 LOTS 11 & 12 EX W248FT |
| Photo & Sketch (if available) | Comp Sales (ordered by relevancy) |
|
||||||||||||||||||
|
||||||||||||||||||||
| Value History (*The County Treasurer 405-713-1300 posts & collects actual tax amounts. Contact information HERE) | |||||||||||||
|---|---|---|---|---|---|---|---|---|---|---|---|---|---|
| Year | Market Value | Taxable Mkt Value | Gross Assessed | Exemption | Net Assessed | Millage | Est. Tax | Tax Savings | |||||
|
2025 |
205,500 |
109,352 |
12,027 |
0 |
12,027 |
120.83 |
$1,453 |
$1,278 |
|||||
|
2024 |
194,500 |
104,145 |
11,455 |
0 |
11,455 |
119.82 |
$1,373 |
$1,191 |
|||||
|
2023 |
186,500 |
99,186 |
10,909 |
0 |
10,909 |
119.00 |
$1,298 |
$1,143 |
|||||
|
2022 |
168,500 |
94,463 |
10,390 |
0 |
10,390 |
121.59 |
$1,263 |
$990 |
|||||
|
2021 |
143,500 |
89,965 |
9,895 |
0 |
9,895 |
120.72 |
$1,195 |
$711 |
|||||
| Property Account Status/Adjustments/Exemptions | ||
|---|---|---|
| Account # | Exemption Description | Amount |
|
R148252700 |
5% Capped Account |
0 |
| Property Deed Transaction History (Recorded in the County Clerk's Office) | |||||||
|---|---|---|---|---|---|---|---|
| Date | Type | Book | Page | Price | Grantor | Grantee | |
|
12/8/2020 |
|
Hmstd Off & |
$0 |
GRIFFITTS BOBBY E |
HUTTO SANDRA |
||
|
1/12/2020 |
|
Deeds |
$0 |
GRIFFITTS BOBBY E |
GRIFFITTS BOBBY E |
||
|
6/19/1989 |
|
Historical |
$0 |
GRIFFITTS BOBBY E & JOYCE J |
GRIFFITTS BOBBY E |
||
|
11/11/1911 |
|
Historical |
$0 |
|
GRIFFITTS BOBBY E & JOYCE J |
||
| Last Mailed Notice of Value (N.O.V.) Information/History | ||||||||
|---|---|---|---|---|---|---|---|---|
| Year | Date | Market Value | Taxable Market Value | Gross Assessed | Exemption | Net Assessed | ||
|
2026 |
02/06/2026 |
188,500 |
114,819 |
12,629 |
0 |
12,629 |
||
|
2025 |
01/31/2025 |
205,500 |
109,352 |
12,027 |
0 |
12,027 |
||
|
2024 |
01/22/2024 |
194,500 |
104,145 |
11,455 |
0 |
11,455 |
||
|
2023 |
01/23/2023 |
186,500 |
99,186 |
10,909 |
0 |
10,909 |
||
|
2022 |
02/22/2022 |
168,500 |
94,463 |
10,389 |
0 |
10,389 |
||
| Property Building Permit History | ||||||
|---|---|---|---|---|---|---|
| Issued | Permit # | Provided by | Bldg # | Description | Est Construction Cost | Status |
|
2/14/2000 |
10242909 |
OKLAHOMA CITY |
1 |
Other |
3,500 |
Inactive |
| Click button on building number to access detailed information: | ||||||
|---|---|---|---|---|---|---|
| Bldg # | Vacant/Improved Land | Bldg Description | Year Built | SqFt | # Stories | |
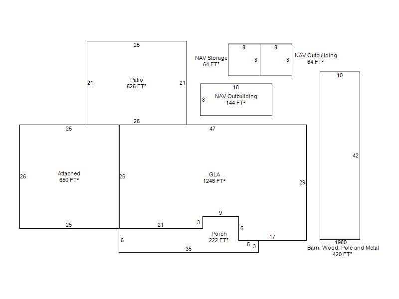
|
1 |
Improved |
Ranch 1 Story |
1964 |
1,246 |
1 Stories |
|