|
|
|
| Larry Stein Oklahoma County Assessor (405) 713-1200 - Public Access System |
|
|
|
|
|
|
| Real Property Display - Screen Produced 3/13/2026 12:57:37 AM | ||||
|---|---|---|---|---|
| Account: R148254500 | Type: Residential | Location: |
8621 S OLIE AVE |
|
| Building Name/Occupant: |
|
OKLAHOMA CITY |
||
| Owner Name 1: | L&E PAVING CO LLC |
Parcel PIN#: |
1731-14-825-4500 |
|
| Owner Name 2: | 1/4 section #: |
1731 |
||
| Owner Name 3: | Parent Acct: |
|
||
| Billing Address: | 816 SW 85TH ST | Tax District: |
|
|
| City, State, Zip | OKLAHOMA CITY, OK 73139 | School System: |
Moore #2 |
|
|
Country: (If noted) |
Land Size: |
1.7200 Acres |
||
|
Land Value: 88,468 |
|
|||
|
Sect 33-T11N-R3W Qtr SW |
CRESTLINE PARK SUB
Block
004
Lot
003
|
|||
| Full Legal Description: CRESTLINE PARK SUB BLOCK 4 LOTS 3 THRU 4 |
| No comparable sales report available. | ||||||||||||||||||||||
|
||||||||||||||||||||||
| Value History (*The County Treasurer 405-713-1300 posts & collects actual tax amounts. Contact information HERE) | |||||||||||||
|---|---|---|---|---|---|---|---|---|---|---|---|---|---|
| Year | Market Value | Taxable Mkt Value | Gross Assessed | Exemption | Net Assessed | Millage | Est. Tax | Tax Savings | |||||
|
2025 |
386,462 |
386,462 |
42,510 |
0 |
42,510 |
120.83 |
$5,137 |
$0 |
|||||
|
2024 |
388,722 |
388,722 |
42,759 |
0 |
42,759 |
119.82 |
$5,123 |
$0 |
|||||
|
2023 |
413,500 |
383,023 |
42,132 |
0 |
42,132 |
119.00 |
$5,014 |
$399 |
|||||
|
2022 |
91,000 |
91,000 |
10,010 |
0 |
10,010 |
121.59 |
$1,217 |
$0 |
|||||
|
2021 |
91,000 |
91,000 |
10,010 |
0 |
10,010 |
120.72 |
$1,208 |
$0 |
|||||
| Property Account Status/Adjustments/Exemptions | ||
|---|---|---|
| Account # | Exemption Description | Amount |
|
R148254500 |
5% Capped Account |
0 |
| Property Deed Transaction History (Recorded in the County Clerk's Office) | ||||||||||
|---|---|---|---|---|---|---|---|---|---|---|
| Date | Type | Book | Page | Price | Grantor | Grantee | ||||
|
11/9/2020 |
|
Deeds |
$95,000 |
OSBORN TRUE W TRS |
L&E PAVING CO LLC |
|||||
|
12/4/2018 |
|
Deeds |
$0 |
OSBORN TRUE |
OSBORN TRUE W TRS |
|||||
|
10/27/2017 |
|
Deeds |
$70,000 |
ROBBINS EDDIE W ESTATE |
OSBORN TRUE |
|||||
|
8/8/2011 |
|
Deeds |
$29,000 |
ROBBINS WILLIE P |
ROBBINS EDDIE W |
|||||
|
2/17/2011 |
|
Deeds |
$0 |
ROBBINS AMBRUS J JR & WILLIE |
ROBBINS WILLIE P |
|||||
| Last Mailed Notice of Value (N.O.V.) Information/History | ||||||||
|---|---|---|---|---|---|---|---|---|
| Year | Date | Market Value | Taxable Market Value | Gross Assessed | Exemption | Net Assessed | ||
|
2026 |
02/06/2026 |
460,089 |
405,785 |
44,635 |
0 |
44,635 |
||
|
2024 |
01/22/2024 |
388,722 |
388,722 |
42,759 |
0 |
42,759 |
||
|
2023 |
03/02/2023 |
108,500 |
103,050 |
11,335 |
0 |
11,335 |
||
|
2023 |
04/21/2023 |
413,500 |
383,023 |
42,132 |
0 |
42,132 |
||
|
2021 |
02/24/2021 |
91,000 |
91,000 |
10,010 |
0 |
10,010 |
||
| Property Building Permit History | |||||||||||
|---|---|---|---|---|---|---|---|---|---|---|---|
| Issued | Permit # | Provided by | Bldg # | Description | Est Construction Cost | Status | |||||
| No Building Permit records returned. | |||||||||||
| Click button on building number to access detailed information: | ||||||
|---|---|---|---|---|---|---|
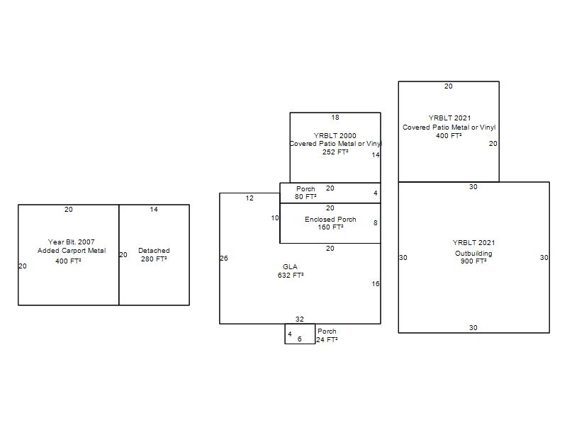
| Bldg # | Vacant/Improved Land | Bldg Description | Year Built | SqFt | # Stories | |
|
1 |
Improved |
Ranch 1 Story |
1950 |
632 |
1 Stories |
|
|
2 |
Improved |
Ranch 1 Story |
2021 |
1,298 |
1 Stories |
|