|
|
|
| Larry Stein Oklahoma County Assessor (405) 713-1200 - Public Access System |
|
|
|
|
|
|
| Real Property Display - Screen Produced 3/13/2026 2:42:21 AM | ||||
|---|---|---|---|---|
| Account: R148254850 | Type: Residential | Location: |
8721 S OLIE AVE |
|
| Building Name/Occupant: |
|
OKLAHOMA CITY |
||
| Owner Name 1: | OSBORN TRUE W & SHERRY A TRS |
Parcel PIN#: |
1731-14-825-4850 |
|
| Owner Name 2: | OSBORN TRUE W & SHERRY A REV LIV TRUST | 1/4 section #: |
1731 |
|
| Owner Name 3: | Parent Acct: |
|
||
| Billing Address: | 8721 S OLIE AVE | Tax District: |
|
|
| City, State, Zip | OKLAHOMA CITY, OK 73139-9321 | School System: |
Moore #2 |
|
|
Country: (If noted) |
Land Size: |
0.8559 Acres |
||
|
Land Value: 44,023 |
|
|||
|
Sect 33-T11N-R3W Qtr SW |
CRESTLINE PARK SUB
Block
004
Lot
006
|
|||
| Full Legal Description: CRESTLINE PARK SUB 004 006 |
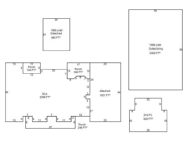
| Photo & Sketch (if available) | Comp Sales (ordered by relevancy) |
|
||||||||||||||||||
|
||||||||||||||||||||
| Value History (*The County Treasurer 405-713-1300 posts & collects actual tax amounts. Contact information HERE) | |||||||||||||
|---|---|---|---|---|---|---|---|---|---|---|---|---|---|
| Year | Market Value | Taxable Mkt Value | Gross Assessed | Exemption | Net Assessed | Millage | Est. Tax | Tax Savings | |||||
|
2025 |
586,000 |
354,118 |
38,952 |
1,000 |
37,952 |
120.83 |
$4,586 |
$3,203 |
|||||
|
2024 |
568,500 |
343,804 |
37,818 |
1,000 |
36,818 |
119.82 |
$4,412 |
$3,081 |
|||||
|
2023 |
540,500 |
333,791 |
36,716 |
1,000 |
35,716 |
119.00 |
$4,250 |
$2,825 |
|||||
|
2022 |
470,500 |
324,069 |
35,647 |
1,000 |
34,647 |
121.59 |
$4,213 |
$2,080 |
|||||
|
2021 |
409,500 |
314,631 |
34,609 |
1,000 |
33,609 |
120.72 |
$4,057 |
$1,381 |
|||||
| Property Account Status/Adjustments/Exemptions | ||
|---|---|---|
| Account # | Exemption Description | Amount |
|
R148254850 |
3% Cap Homestead |
0 |
|
R148254850 |
Homestead |
1,000 |
| Property Deed Transaction History (Recorded in the County Clerk's Office) | |||||||
|---|---|---|---|---|---|---|---|
| Date | Type | Book | Page | Price | Grantor | Grantee | |
|
6/17/2014 |
|
Deeds |
$0 |
OSBORN TRUE W & SHERRY A |
OSBORN TRUE W & SHERRY A TRS |
||
|
9/29/1998 |
|
Historical |
$141,000 |
M & G HOMES LLC |
OSBORN TRUE W & SHERRY A |
||
|
6/2/1998 |
|
Historical |
$0 |
OSBORN TRUE W & SHERRY A |
M & G HOMES LLC |
||
|
12/4/1997 |
|
Historical |
$25,000 |
HIGGINS KEITH L |
OSBORN TRUE W & SHERRY A |
||
|
12/1/1979 |
|
Historical |
$0 |
|
HIGGINS KEITH L |
||
| Last Mailed Notice of Value (N.O.V.) Information/History | ||||||||
|---|---|---|---|---|---|---|---|---|
| Year | Date | Market Value | Taxable Market Value | Gross Assessed | Exemption | Net Assessed | ||
|
2026 |
02/06/2026 |
541,000 |
364,741 |
40,120 |
1,000 |
39,120 |
||
|
2025 |
01/31/2025 |
586,000 |
354,118 |
38,952 |
1,000 |
37,952 |
||
|
2024 |
01/22/2024 |
568,500 |
343,804 |
37,818 |
1,000 |
36,818 |
||
|
2023 |
01/23/2023 |
540,500 |
333,791 |
36,716 |
1,000 |
35,716 |
||
|
2022 |
02/22/2022 |
470,500 |
324,069 |
35,647 |
1,000 |
34,647 |
||
| Property Building Permit History | ||||||
|---|---|---|---|---|---|---|
| Issued | Permit # | Provided by | Bldg # | Description | Est Construction Cost | Status |
|
4/6/1998 |
10242920 |
OKLAHOMA CITY |
1 |
Main Dwellin |
135,000 |
Inactive |
|
1/2/1998 |
10242919 |
OKLAHOMA CITY |
1 |
Demolish |
0 |
Inactive |
| Click button on building number to access detailed information: | ||||||
|---|---|---|---|---|---|---|
| Bldg # | Vacant/Improved Land | Bldg Description | Year Built | SqFt | # Stories | |
|
1 |
Improved |
1½ Story Fin |
1998 |
2,887 |
1.5 Stories |
|