|
|
|
| Larry Stein Oklahoma County Assessor (405) 713-1200 - Public Access System |
|
|
|
|
|
|
| Real Property Display - Screen Produced 3/17/2026 4:15:00 AM | ||||
|---|---|---|---|---|
| Account: R148255450 | Type: Residential | Location: |
8605 S SHARTEL AVE |
|
| Building Name/Occupant: |
|
OKLAHOMA CITY |
||
| Owner Name 1: | OWEN STEVEN DEWAYNE & CAROL JEAN |
Parcel PIN#: |
1731-14-825-5450 |
|
| Owner Name 2: | 1/4 section #: |
1731 |
||
| Owner Name 3: | Parent Acct: |
|
||
| Billing Address: | 8605 SHARTEL AVE | Tax District: |
|
|
| City, State, Zip | OKLAHOMA CITY, OK 73139 | School System: |
Moore #2 |
|
|
Country: (If noted) |
UNITED STATES |
Land Size: |
1.0900 Acres |
|
|
Land Value: 56,064 |
|
|||
|
Sect 33-T11N-R3W Qtr SW |
CRESTLINE PARK SUB
Block
005
Lot
000
|
|||
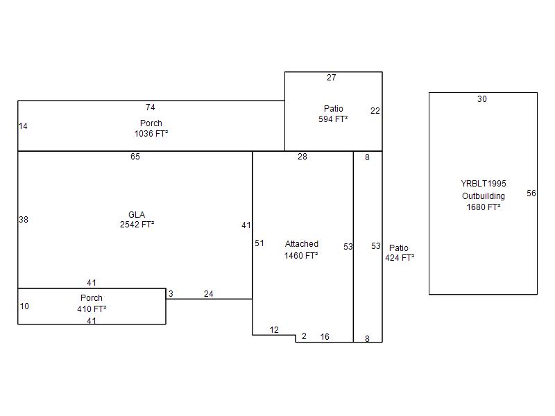
| Full Legal Description: CRESTLINE PARK SUB 005 000 W100FT OF LOT 1 & ALL OF LOT 2 |
| Photo & Sketch (if available) | Comp Sales (ordered by relevancy) |
|
||||||||||||||||||
|
||||||||||||||||||||
| Value History (*The County Treasurer 405-713-1300 posts & collects actual tax amounts. Contact information HERE) | |||||||||||||
|---|---|---|---|---|---|---|---|---|---|---|---|---|---|
| Year | Market Value | Taxable Mkt Value | Gross Assessed | Exemption | Net Assessed | Millage | Est. Tax | Tax Savings | |||||
|
2025 |
608,000 |
557,201 |
61,291 |
1,000 |
60,291 |
120.83 |
$7,285 |
$796 |
|||||
|
2024 |
597,000 |
540,972 |
59,506 |
1,000 |
58,506 |
119.82 |
$7,010 |
$858 |
|||||
|
2023 |
561,500 |
525,216 |
57,773 |
1,000 |
56,773 |
119.00 |
$6,756 |
$594 |
|||||
|
2022 |
32,720 |
28,602 |
3,145 |
0 |
3,145 |
121.59 |
$383 |
$55 |
|||||
|
2021 |
27,240 |
27,240 |
2,996 |
0 |
2,996 |
120.72 |
$362 |
$0 |
|||||
| Property Account Status/Adjustments/Exemptions | ||||||
|---|---|---|---|---|---|---|
| Account # | Exemption Description | Amount | ||||
| No adjustment/exemption records returned. | ||||||
| Property Deed Transaction History (Recorded in the County Clerk's Office) | ||||||||||
|---|---|---|---|---|---|---|---|---|---|---|
| Date | Type | Book | Page | Price | Grantor | Grantee | ||||
|
6/7/2022 |
|
Deeds |
$0 |
OWEN STEVEN D & CAROL J |
OWEN STEVEN DEWAYNE & CAROL JEAN |
|||||
|
1/5/2021 |
|
Deeds |
$0 |
OWEN STEVEN DEWAYNE |
OWEN STEVEN D & CAROL J |
|||||
|
11/18/2019 |
|
Deeds |
$0 |
OWEN STEVEN D |
OWEN STEVEN DEWAYNE |
|||||
|
7/30/2014 |
|
Deeds |
$0 |
OWEN STEVEN D & JUDITH A |
OWEN STEVEN D |
|||||
|
8/18/2010 |
|
Deeds |
$0 |
OWEN ELMER E & RUTH E |
OWEN STEVEN D & JUDITH A |
|||||
| Last Mailed Notice of Value (N.O.V.) Information/History | ||||||||
|---|---|---|---|---|---|---|---|---|
| Year | Date | Market Value | Taxable Market Value | Gross Assessed | Exemption | Net Assessed | ||
|
2025 |
01/31/2025 |
608,000 |
557,201 |
61,291 |
1,000 |
60,291 |
||
|
2024 |
01/22/2024 |
597,000 |
540,972 |
59,506 |
1,000 |
58,506 |
||
|
2023 |
03/02/2023 |
561,500 |
525,216 |
57,773 |
1,000 |
56,773 |
||
|
2022 |
02/22/2022 |
32,720 |
28,602 |
3,145 |
0 |
3,145 |
||
|
2021 |
02/24/2021 |
91,500 |
73,141 |
8,045 |
0 |
8,045 |
||
| Property Building Permit History | ||||||
|---|---|---|---|---|---|---|
| Issued | Permit # | Provided by | Bldg # | Description | Est Construction Cost | Status |
|
10/18/2021 |
BLDR-2021-04714 |
|
1 |
Main Dwellin |
300,000 |
Inactive |
|
1/26/2021 |
BLDD-2020-09091 |
|
1 |
Demolish |
0 |
Inactive |
|
11/30/2020 |
|
|
1 |
Demolish |
|
Inactive |
|
8/28/1995 |
10242928 |
OKLAHOMA CITY |
1 |
Storage Buil |
10,230 |
Inactive |
| Click button on building number to access detailed information: | ||||||
|---|---|---|---|---|---|---|
| Bldg # | Vacant/Improved Land | Bldg Description | Year Built | SqFt | # Stories | |
|
1 |
Improved |
Ranch 1 Story |
2021 |
2,542 |
1 Stories |
|