|
|
|
| Larry Stein Oklahoma County Assessor (405) 713-1200 - Public Access System |
|
|
|
|
|
|
| Real Property Display - Screen Produced 3/11/2026 11:41:15 PM | ||||
|---|---|---|---|---|
| Account: R206881140 | Type: Residential | Location: |
299 HILLSIDE DR |
|
| Building Name/Occupant: |
|
HARRAH |
||
| Owner Name 1: | HOLT JOSHUA RAY & KATY R |
Parcel PIN#: |
1005-20-688-1140 |
|
| Owner Name 2: | 1/4 section #: |
1005 |
||
| Owner Name 3: | Parent Acct: |
1005-26-702-1000 |
||
| Billing Address: | 299 HILLSIDE DR | Tax District: |
|
|
| City, State, Zip | HARRAH, OK 73045 | School System: |
Harrah #7 |
|
|
Country: (If noted) |
Land Size: |
0.5579 Acres |
||
|
Land Value: 51,030 |
|
|||
|
Sect 2-T11N-R1E Qtr NE |
FALL CREEK ESTATES
Block
002
Lot
012
|
|||
| Full Legal Description: FALL CREEK ESTATES BLK 002 LOT 012 |
| Photo & Sketch (if available) | Comp Sales (ordered by relevancy) |
|
||||||||||||||||||
|
||||||||||||||||||||
| Value History (*The County Treasurer 405-713-1300 posts & collects actual tax amounts. Contact information HERE) | |||||||||||||
|---|---|---|---|---|---|---|---|---|---|---|---|---|---|
| Year | Market Value | Taxable Mkt Value | Gross Assessed | Exemption | Net Assessed | Millage | Est. Tax | Tax Savings | |||||
|
2025 |
294,000 |
267,989 |
29,478 |
0 |
29,478 |
107.54 |
$3,170 |
$308 |
|||||
|
2024 |
286,500 |
255,228 |
28,074 |
0 |
28,074 |
110.62 |
$3,106 |
$381 |
|||||
|
2023 |
269,000 |
243,075 |
26,738 |
0 |
26,738 |
97.88 |
$2,617 |
$279 |
|||||
|
2022 |
231,500 |
231,500 |
25,465 |
0 |
25,465 |
99.50 |
$2,534 |
$0 |
|||||
|
2021 |
231,500 |
231,500 |
25,465 |
0 |
25,465 |
99.52 |
$2,534 |
$0 |
|||||
| Property Account Status/Adjustments/Exemptions | ||
|---|---|---|
| Account # | Exemption Description | Amount |
|
R206881140 |
5% Capped Account |
0 |
| Property Deed Transaction History (Recorded in the County Clerk's Office) | |||||||
|---|---|---|---|---|---|---|---|
| Date | Type | Book | Page | Price | Grantor | Grantee | |
|
8/17/2020 |
|
Deeds |
$235,000 |
MAY MICHAEL B & AIMEE E |
HOLT JOSHUA RAY & KATY R |
||
|
9/10/2014 |
|
Deeds |
$202,500 |
RCL CONSTRUCTION LLC |
MAY MICHAEL B & AIMEE E |
||
|
5/31/2013 |
|
Deeds |
$26,000 |
FALL CREEK DEVELOPMENT LLC |
RCL CONSTRUCTION LLC |
||
|
5/19/2007 |
|
Mult Parcel |
$1,550,000 |
MIDWEST DEVELOPMENT LLC |
FALL CREEK DEVELOPMENT LLC |
||
| Last Mailed Notice of Value (N.O.V.) Information/History | ||||||||
|---|---|---|---|---|---|---|---|---|
| Year | Date | Market Value | Taxable Market Value | Gross Assessed | Exemption | Net Assessed | ||
|
2026 |
02/06/2026 |
303,000 |
281,388 |
30,951 |
0 |
30,951 |
||
|
2025 |
01/31/2025 |
294,000 |
267,989 |
29,478 |
0 |
29,478 |
||
|
2024 |
01/22/2024 |
286,500 |
255,228 |
28,074 |
0 |
28,074 |
||
|
2023 |
01/23/2023 |
269,000 |
243,075 |
26,738 |
0 |
26,738 |
||
|
2021 |
02/24/2021 |
231,500 |
231,500 |
25,465 |
0 |
25,465 |
||
| Property Building Permit History | ||||||
|---|---|---|---|---|---|---|
| Issued | Permit # | Provided by | Bldg # | Description | Est Construction Cost | Status |
|
11/6/2013 |
10456176 |
HARRAH |
1 |
Main Dwellin |
0 |
Inactive |
| Click button on building number to access detailed information: | ||||||
|---|---|---|---|---|---|---|
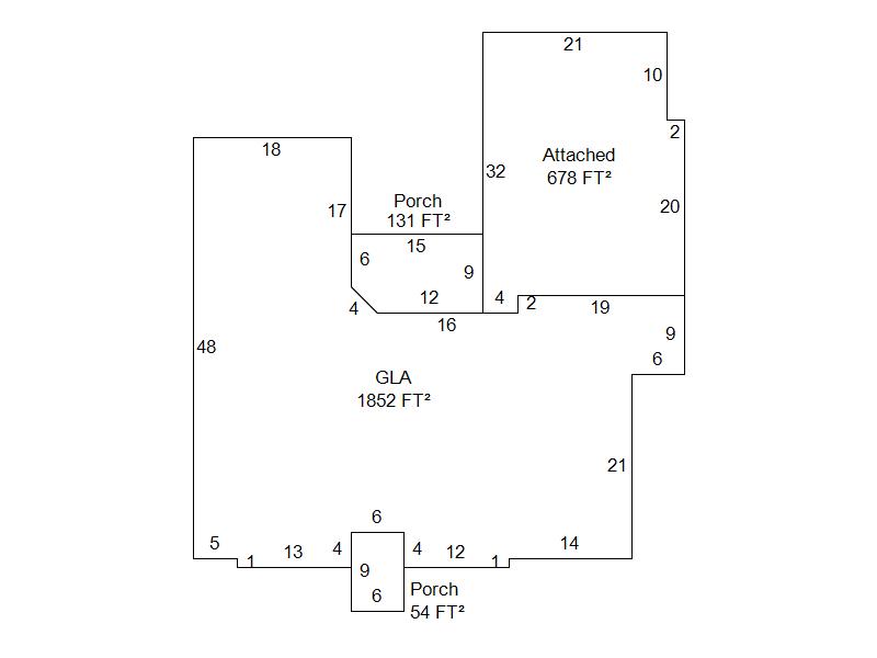
| Bldg # | Vacant/Improved Land | Bldg Description | Year Built | SqFt | # Stories | |
|
1 |
Improved |
Ranch 1 Story |
2013 |
1,852 |
1 Stories |
|