|
|
|
| Larry Stein Oklahoma County Assessor (405) 713-1200 - Public Access System |
|
|
|
|
|
|
| Real Property Display - Screen Produced 4/4/2026 5:58:20 AM | ||||
|---|---|---|---|---|
| Account: R090063420 | Type: Residential | Location: |
8408 RAYBURN AVE |
|
| Building Name/Occupant: |
|
OKLAHOMA CITY |
||
| Owner Name 1: | REEVES NICHOLAS D |
Parcel PIN#: |
1735-09-006-3420 |
|
| Owner Name 2: | REEVES MELISSA K | 1/4 section #: |
1735 |
|
| Owner Name 3: | Parent Acct: |
|
||
| Billing Address: | 8408 RAYBURN AVE | Tax District: |
|
|
| City, State, Zip | OKLAHOMA CITY, OK 73149-1916 | School System: |
Moore #2 |
|
|
Country: (If noted) |
Land Size: |
0.1791 Acres |
||
|
Land Value: 32,370 |
|
|||
|
Sect 34-T11N-R3W Qtr SW |
SPRINGFIELD VILLAGE
Block
009
Lot
018
|
|||
| Full Legal Description: SPRINGFIELD VILLAGE 009 018 |
| Photo & Sketch (if available) | Comp Sales (ordered by relevancy) |
|
||||||||||||||||||
|
||||||||||||||||||||
| Value History (*The County Treasurer 405-713-1300 posts & collects actual tax amounts. Contact information HERE) | |||||||||||||
|---|---|---|---|---|---|---|---|---|---|---|---|---|---|
| Year | Market Value | Taxable Mkt Value | Gross Assessed | Exemption | Net Assessed | Millage | Est. Tax | Tax Savings | |||||
|
2026 |
181,000 |
150,089 |
16,509 |
0 |
16,509 |
120.83 |
$1,995 |
$411 |
|||||
|
2025 |
180,000 |
142,942 |
15,722 |
0 |
15,722 |
120.83 |
$1,900 |
$493 |
|||||
|
2024 |
159,500 |
136,136 |
14,974 |
0 |
14,974 |
119.82 |
$1,794 |
$308 |
|||||
|
2023 |
163,500 |
129,654 |
14,261 |
0 |
14,261 |
119.00 |
$1,697 |
$443 |
|||||
|
2022 |
144,500 |
123,480 |
13,582 |
0 |
13,582 |
121.59 |
$1,652 |
$281 |
|||||
| Property Account Status/Adjustments/Exemptions | ||
|---|---|---|
| Account # | Exemption Description | Amount |
|
R090063420 |
5% Capped Account |
0 |
| Property Deed Transaction History (Recorded in the County Clerk's Office) | ||||||||||
|---|---|---|---|---|---|---|---|---|---|---|
| Date | Type | Book | Page | Price | Grantor | Grantee | ||||
|
12/22/2006 |
|
Deeds |
$98,500 |
MARQUETTE BELINDA D |
REEVES NICHOLAS D |
|||||
|
4/10/2002 |
|
Deeds |
$80,000 |
STANDEFER JOHN JR & ELIZABETH |
MARQUETTE BELINDA D |
|||||
|
1/12/1998 |
|
Historical |
$0 |
STANDEFER JOHN A JR |
STANDEFER JOHN JR & ELIZABETH |
|||||
|
4/14/1997 |
|
Historical |
$58,500 |
GILL ROBERT B |
STANDEFER JOHN A JR |
|||||
|
3/13/1997 |
|
Historical |
$0 |
NEWCOMB TIMOTHY B & NANCY J |
GILL ROBERT B |
|||||
| Last Mailed Notice of Value (N.O.V.) Information/History | ||||||||
|---|---|---|---|---|---|---|---|---|
| Year | Date | Market Value | Taxable Market Value | Gross Assessed | Exemption | Net Assessed | ||
|
2026 |
02/06/2026 |
181,000 |
150,089 |
16,509 |
0 |
16,509 |
||
|
2025 |
01/31/2025 |
180,000 |
142,942 |
15,722 |
0 |
15,722 |
||
|
2024 |
01/22/2024 |
159,500 |
136,136 |
14,974 |
0 |
14,974 |
||
|
2023 |
01/23/2023 |
163,500 |
129,654 |
14,261 |
0 |
14,261 |
||
|
2022 |
02/22/2022 |
144,500 |
123,480 |
13,582 |
0 |
13,582 |
||
| Property Building Permit History | |||||||||||
|---|---|---|---|---|---|---|---|---|---|---|---|
| Issued | Permit # | Provided by | Bldg # | Description | Est Construction Cost | Status | |||||
| No Building Permit records returned. | |||||||||||
| Click button on building number to access detailed information: | ||||||
|---|---|---|---|---|---|---|
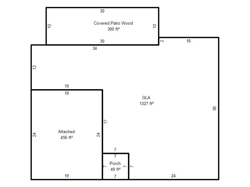
| Bldg # | Vacant/Improved Land | Bldg Description | Year Built | SqFt | # Stories | |
|
1 |
Improved |
Ranch 1 Story |
1983 |
1,327 |
1 Stories |
|