|
|
|
| Larry Stein Oklahoma County Assessor (405) 713-1200 - Public Access System |
|
|
|
|
|
|
| Real Property Display - Screen Produced 3/20/2026 5:40:15 AM | ||||
|---|---|---|---|---|
| Account: R071699680 | Type: Residential | Location: |
2907 SW 13TH ST |
|
| Building Name/Occupant: |
|
OKLAHOMA CITY |
||
| Owner Name 1: | SWISHER JEFFREY P |
Parcel PIN#: |
1802-07-169-9680 |
|
| Owner Name 2: | 1/4 section #: |
1802 |
||
| Owner Name 3: | Parent Acct: |
|
||
| Billing Address: | 11604 DELPHI CIR | Tax District: |
|
|
| City, State, Zip | YUKON , OK 73099 | School System: |
Oklahoma City #89 |
|
|
Country: (If noted) |
Land Size: |
0.1722 Acres |
||
|
Land Value: 2,775 |
|
|||
|
Sect 1-T11N-R4W Qtr SE |
MORRISTON ADDITION
Block
006
Lot
000
|
|||
| Full Legal Description: MORRISTON ADDITION 006 000 LOTS 43 & 44 & S 1/2 OF VACATED ALLEY ADJ ON N |
| Photo & Sketch (if available) | Comp Sales (ordered by relevancy) |
|
||||||||||||||||||
|
||||||||||||||||||||
| Value History (*The County Treasurer 405-713-1300 posts & collects actual tax amounts. Contact information HERE) | |||||||||||||
|---|---|---|---|---|---|---|---|---|---|---|---|---|---|
| Year | Market Value | Taxable Mkt Value | Gross Assessed | Exemption | Net Assessed | Millage | Est. Tax | Tax Savings | |||||
|
2025 |
60,500 |
23,093 |
2,539 |
0 |
2,539 |
119.02 |
$302 |
$490 |
|||||
|
2024 |
38,500 |
21,994 |
2,419 |
0 |
2,419 |
119.70 |
$290 |
$217 |
|||||
|
2023 |
40,000 |
20,947 |
2,303 |
0 |
2,303 |
118.33 |
$273 |
$248 |
|||||
|
2022 |
40,000 |
19,950 |
2,194 |
0 |
2,194 |
112.69 |
$247 |
$249 |
|||||
|
2021 |
19,000 |
19,000 |
2,090 |
0 |
2,090 |
112.29 |
$235 |
$0 |
|||||
| Property Account Status/Adjustments/Exemptions | ||
|---|---|---|
| Account # | Exemption Description | Amount |
|
R071699680 |
5% Capped Account |
0 |
| Property Deed Transaction History (Recorded in the County Clerk's Office) | ||||||||||
|---|---|---|---|---|---|---|---|---|---|---|
| Date | Type | Book | Page | Price | Grantor | Grantee | ||||
|
6/19/2020 |
|
Deeds |
$1,500 |
ROBB RONALD G |
SWISHER JEFFREY P |
|||||
|
5/15/2010 |
|
Deeds |
$0 |
PEARCE NORMAN PEARCE SHERRY |
ROBB RONALD G |
|||||
|
4/16/2010 |
|
Deeds |
$0 |
PEARCE NORMAN |
ROBBS RONALD G |
|||||
|
4/16/2010 |
|
Deeds |
$0 |
PEARCE NORMAN |
ROBB RONLAD G |
|||||
|
7/20/2007 |
|
Deeds |
$0 |
PEARCE NORMAN PEARCE SHERRY |
PEARCE NORMAN PEARCE SHERRY |
|||||
| Last Mailed Notice of Value (N.O.V.) Information/History | ||||||||
|---|---|---|---|---|---|---|---|---|
| Year | Date | Market Value | Taxable Market Value | Gross Assessed | Exemption | Net Assessed | ||
|
2026 |
02/06/2026 |
66,500 |
24,247 |
2,667 |
0 |
2,667 |
||
|
2025 |
01/31/2025 |
60,500 |
23,093 |
2,539 |
0 |
2,539 |
||
|
2024 |
01/22/2024 |
38,500 |
21,994 |
2,419 |
0 |
2,419 |
||
|
2023 |
01/23/2023 |
40,000 |
20,947 |
2,303 |
0 |
2,303 |
||
|
2022 |
02/22/2022 |
40,000 |
19,950 |
2,194 |
0 |
2,194 |
||
| Property Building Permit History | ||||||
|---|---|---|---|---|---|---|
| Issued | Permit # | Provided by | Bldg # | Description | Est Construction Cost | Status |
|
10/5/2005 |
10312732 |
OKLAHOMA CITY |
1 |
Demolish |
0 |
Inactive |
| Click button on building number to access detailed information: | ||||||
|---|---|---|---|---|---|---|
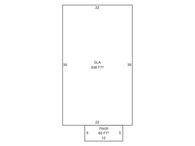
| Bldg # | Vacant/Improved Land | Bldg Description | Year Built | SqFt | # Stories | |
|
1 |
Improved |
Ranch 1 Story |
1940 |
836 |
1 Stories |
|