|
|
|
| Larry Stein Oklahoma County Assessor (405) 713-1200 - Public Access System |
|
|
|
|
|
|
| Real Property Display - Screen Produced 2/27/2026 5:15:14 AM | ||||
|---|---|---|---|---|
| Account: R203561100 | Type: Residential | Location: |
16414 RIVERROCK CIR |
|
| Building Name/Occupant: |
|
CHOCTAW |
||
| Owner Name 1: | SCHULTZ ROGER L & JANICE A |
Parcel PIN#: |
1024-20-356-1100 |
|
| Owner Name 2: | 1/4 section #: |
1024 |
||
| Owner Name 3: | Parent Acct: |
1021-16-867-0445 |
||
| Billing Address: | 16414 RIVERROCK CIR | Tax District: |
|
|
| City, State, Zip | CHOCTAW, OK 73020-6957 | School System: |
Choctaw #4 |
|
|
Country: (If noted) |
Land Size: |
1.0060 Acres |
||
|
Land Value: 76,456 |
|
|||
|
Sect 6-T11N-R1E Qtr NW |
STONEGATE CROSSING SEC 3
Block
005
Lot
011
|
|||
| Full Legal Description: STONEGATE CROSSING SEC 3 BLK 005 LOT 011 |
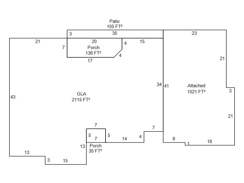
| Photo & Sketch (if available) | Comp Sales (ordered by relevancy) |
|
||||||||||||||||||
|
||||||||||||||||||||
| Value History (*The County Treasurer 405-713-1300 posts & collects actual tax amounts. Contact information HERE) | |||||||||||||
|---|---|---|---|---|---|---|---|---|---|---|---|---|---|
| Year | Market Value | Taxable Mkt Value | Gross Assessed | Exemption | Net Assessed | Millage | Est. Tax | Tax Savings | |||||
|
2025 |
416,000 |
317,639 |
34,939 |
1,000 |
33,939 |
117.21 |
$3,978 |
$1,385 |
|||||
|
2024 |
400,000 |
308,388 |
33,922 |
1,000 |
32,922 |
116.35 |
$3,831 |
$1,289 |
|||||
|
2023 |
395,500 |
299,406 |
32,934 |
1,000 |
31,934 |
118.06 |
$3,770 |
$1,366 |
|||||
|
2022 |
325,000 |
290,686 |
31,975 |
1,000 |
30,975 |
116.14 |
$3,597 |
$555 |
|||||
|
2021 |
286,000 |
282,220 |
31,044 |
1,000 |
30,044 |
116.17 |
$3,490 |
$164 |
|||||
| Property Account Status/Adjustments/Exemptions | ||
|---|---|---|
| Account # | Exemption Description | Amount |
|
R203561100 |
3% Cap Homestead |
0 |
|
R203561100 |
Homestead |
1,000 |
| Property Deed Transaction History (Recorded in the County Clerk's Office) | |||||||
|---|---|---|---|---|---|---|---|
| Date | Type | Book | Page | Price | Grantor | Grantee | |
|
4/23/2003 |
|
Deeds |
$0 |
SCHULTZ ROGER L & JANICE A SWM & SONS INC |
SCHULTZ ROGER L & JANICE A |
||
|
1/10/2003 |
|
Deeds |
$28,000 |
ROYALE DEVELOPERS LLC |
SCHULTZ ROGER L & JANICE A SWM & SONS INC |
||
| Last Mailed Notice of Value (N.O.V.) Information/History | ||||||||
|---|---|---|---|---|---|---|---|---|
| Year | Date | Market Value | Taxable Market Value | Gross Assessed | Exemption | Net Assessed | ||
|
2026 |
02/06/2026 |
432,500 |
327,168 |
35,988 |
1,000 |
34,988 |
||
|
2025 |
01/31/2025 |
416,000 |
317,639 |
34,939 |
1,000 |
33,939 |
||
|
2024 |
01/22/2024 |
400,000 |
308,388 |
33,922 |
1,000 |
32,922 |
||
|
2023 |
01/23/2023 |
395,500 |
299,406 |
32,934 |
1,000 |
31,934 |
||
|
2022 |
02/22/2022 |
325,000 |
290,686 |
31,975 |
1,000 |
30,975 |
||
| Property Building Permit History | |||||||||||
|---|---|---|---|---|---|---|---|---|---|---|---|
| Issued | Permit # | Provided by | Bldg # | Description | Est Construction Cost | Status | |||||
| No Building Permit records returned. | |||||||||||
| Click button on building number to access detailed information: | ||||||
|---|---|---|---|---|---|---|
| Bldg # | Vacant/Improved Land | Bldg Description | Year Built | SqFt | # Stories | |
|
1 |
Improved |
Ranch 1 Story |
2003 |
2,115 |
1 Stories |
|