|
|
|
| Larry Stein Oklahoma County Assessor (405) 713-1200 - Public Access System |
|
|
|
|
|
|
| Real Property Display - Screen Produced 3/20/2026 5:43:11 AM | ||||
|---|---|---|---|---|
| Account: R086731320 | Type: Residential | Location: |
3233 SW 19TH ST |
|
| Building Name/Occupant: |
|
OKLAHOMA CITY |
||
| Owner Name 1: | ZAMORA JESUS ANDRES & ROSA |
Parcel PIN#: |
1845-08-673-1320 |
|
| Owner Name 2: | 1/4 section #: |
1845 |
||
| Owner Name 3: | Parent Acct: |
|
||
| Billing Address: | 3233 SW 19TH ST | Tax District: |
|
|
| City, State, Zip | OKLAHOMA CITY, OK 73108 | School System: |
Oklahoma City #89 |
|
|
Country: (If noted) |
UNITED STATES |
Land Size: |
0.2045 Acres |
|
|
Land Value: 9,445 |
|
|||
|
Sect 12-T11N-R4W Qtr NE |
INDUSTRIAL BLVD REPL
Block
002
Lot
000
|
|||
| Full Legal Description: INDUSTRIAL BLVD REPL 002 000 LOTS 19 & 20 |
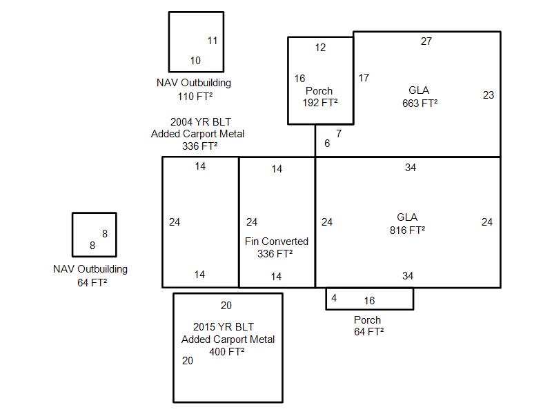
| Photo & Sketch (if available) | Comp Sales (ordered by relevancy) |
|
||||||||||||||||||
|
||||||||||||||||||||
| Value History (*The County Treasurer 405-713-1300 posts & collects actual tax amounts. Contact information HERE) | |||||||||||||
|---|---|---|---|---|---|---|---|---|---|---|---|---|---|
| Year | Market Value | Taxable Mkt Value | Gross Assessed | Exemption | Net Assessed | Millage | Est. Tax | Tax Savings | |||||
|
2025 |
172,500 |
64,180 |
7,059 |
1,000 |
6,059 |
119.02 |
$721 |
$1,537 |
|||||
|
2024 |
149,000 |
62,311 |
6,853 |
1,000 |
5,853 |
119.70 |
$701 |
$1,261 |
|||||
|
2023 |
128,000 |
60,497 |
6,653 |
0 |
6,653 |
118.33 |
$787 |
$879 |
|||||
|
2022 |
116,000 |
57,617 |
6,337 |
0 |
6,337 |
112.69 |
$714 |
$724 |
|||||
|
2021 |
88,500 |
54,874 |
6,035 |
0 |
6,035 |
112.29 |
$678 |
$415 |
|||||
| Property Account Status/Adjustments/Exemptions | ||
|---|---|---|
| Account # | Exemption Description | Amount |
|
R086731320 |
Homestead |
1,000 |
|
R086731320 |
3% Cap Homestead |
0 |
| Property Deed Transaction History (Recorded in the County Clerk's Office) | |||||||
|---|---|---|---|---|---|---|---|
| Date | Type | Book | Page | Price | Grantor | Grantee | |
|
2/15/1989 |
|
Historical |
$10,800 |
ADMR OF VETERANS AFFAIRS |
ZAMORA JESUS ANDRES & ROSA |
||
|
12/11/1987 |
|
Historical |
$0 |
PLUMLEE RONNIE D & BRENDA L |
ADMR OF VETERANS AFFAIRS |
||
|
12/1/1983 |
|
Historical |
$0 |
|
PLUMLEE RONNIE D & BRENDA L |
||
| Last Mailed Notice of Value (N.O.V.) Information/History | ||||||||
|---|---|---|---|---|---|---|---|---|
| Year | Date | Market Value | Taxable Market Value | Gross Assessed | Exemption | Net Assessed | ||
|
2026 |
02/06/2026 |
172,000 |
66,105 |
7,270 |
1,000 |
6,270 |
||
|
2025 |
01/31/2025 |
172,500 |
64,180 |
7,059 |
1,000 |
6,059 |
||
|
2024 |
01/22/2024 |
149,000 |
63,521 |
6,986 |
0 |
6,986 |
||
|
2023 |
01/23/2023 |
128,000 |
60,497 |
6,653 |
0 |
6,653 |
||
|
2022 |
02/22/2022 |
116,000 |
57,617 |
6,336 |
0 |
6,336 |
||
| Property Building Permit History | |||||||||||
|---|---|---|---|---|---|---|---|---|---|---|---|
| Issued | Permit # | Provided by | Bldg # | Description | Est Construction Cost | Status | |||||
| No Building Permit records returned. | |||||||||||
| Click button on building number to access detailed information: | ||||||
|---|---|---|---|---|---|---|
| Bldg # | Vacant/Improved Land | Bldg Description | Year Built | SqFt | # Stories | |
|
1 |
Improved |
Ranch 1 Story |
1947 |
1,479 |
1 Stories |
|