|
|
|
| Larry Stein Oklahoma County Assessor (405) 713-1200 - Public Access System |
|
|
|
|
|
|
| Real Property Display - Screen Produced 4/1/2026 6:06:27 PM | ||||
|---|---|---|---|---|
| Account: R125682160 | Type: Residential | Location: |
2052 RIDGEVIEW RD |
|
| Building Name/Occupant: |
|
MIDWEST CITY |
||
| Owner Name 1: | CRAIG BRENT E & ALACIA |
Parcel PIN#: |
1232-12-568-2160 |
|
| Owner Name 2: | 1/4 section #: |
1232 |
||
| Owner Name 3: | Parent Acct: |
|
||
| Billing Address: | 2052 RIDGEVIEW RD | Tax District: |
|
|
| City, State, Zip | MIDWEST CITY, OK 73130-8219 | School System: |
Choctaw #4 |
|
|
Country: (If noted) |
Land Size: |
0.1848 Acres |
||
|
Land Value: 44,678 |
|
|||
|
Sect 8-T11N-R1W Qtr NW |
OAKWOOD EAST VILLAGE TO MWC
Block
024
Lot
001
|
|||
| Full Legal Description: OAKWOOD EAST VILLAGE TO MWC 024 001 |
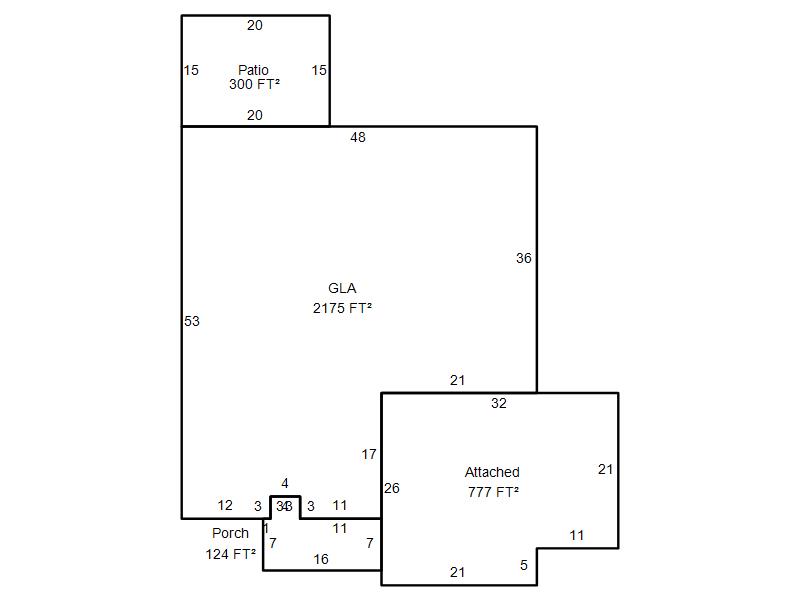
| Photo & Sketch (if available) | Comp Sales (ordered by relevancy) |
|
||||||||||||||||||
|
||||||||||||||||||||
| Value History (*The County Treasurer 405-713-1300 posts & collects actual tax amounts. Contact information HERE) | |||||||||||||
|---|---|---|---|---|---|---|---|---|---|---|---|---|---|
| Year | Market Value | Taxable Mkt Value | Gross Assessed | Exemption | Net Assessed | Millage | Est. Tax | Tax Savings | |||||
|
2026 |
289,000 |
225,674 |
24,824 |
1,000 |
23,824 |
127.03 |
$3,026 |
$1,012 |
|||||
|
2025 |
280,500 |
219,101 |
24,100 |
1,000 |
23,100 |
127.03 |
$2,935 |
$985 |
|||||
|
2024 |
278,500 |
212,720 |
23,398 |
1,000 |
22,398 |
127.00 |
$2,845 |
$1,046 |
|||||
|
2023 |
271,500 |
206,525 |
22,717 |
1,000 |
21,717 |
128.50 |
$2,791 |
$1,047 |
|||||
|
2022 |
233,000 |
200,510 |
22,055 |
1,000 |
21,055 |
127.22 |
$2,679 |
$582 |
|||||
| Property Account Status/Adjustments/Exemptions | ||
|---|---|---|
| Account # | Exemption Description | Amount |
|
R125682160 |
3% Cap Homestead |
0 |
|
R125682160 |
Homestead |
1,000 |
| Property Deed Transaction History (Recorded in the County Clerk's Office) | ||||||||||
|---|---|---|---|---|---|---|---|---|---|---|
| Date | Type | Book | Page | Price | Grantor | Grantee | ||||
|
3/29/2002 |
|
Deeds |
$147,000 |
MCMAHAN THOMAS A MCMAHAN DEANNA KAY |
CRAIG BRENT E & ALACIA |
|||||
|
12/18/1998 |
|
Historical |
$0 |
MCMAHAN THOMAS A |
MCMAHAN THOMAS A |
|||||
|
6/1/1998 |
|
Historical |
$125,000 |
HEARTLAND HOMES |
MCMAHAN THOMAS A |
|||||
|
12/8/1997 |
|
Historical |
$15,500 |
FIRST AMERICAN TITLE |
HEARTLAND HOMES |
|||||
|
2/2/1996 |
|
Historical |
$0 |
SOUTHWEST TITLE |
FIRST AMERICAN TITLE & TRUST COMPANY |
|||||
| Last Mailed Notice of Value (N.O.V.) Information/History | ||||||||
|---|---|---|---|---|---|---|---|---|
| Year | Date | Market Value | Taxable Market Value | Gross Assessed | Exemption | Net Assessed | ||
|
2026 |
02/06/2026 |
289,000 |
225,674 |
24,824 |
1,000 |
23,824 |
||
|
2025 |
01/31/2025 |
280,500 |
219,101 |
24,100 |
1,000 |
23,100 |
||
|
2024 |
01/22/2024 |
278,500 |
212,720 |
23,398 |
1,000 |
22,398 |
||
|
2023 |
01/23/2023 |
271,500 |
206,525 |
22,717 |
1,000 |
21,717 |
||
|
2022 |
02/22/2022 |
233,000 |
200,510 |
22,055 |
1,000 |
21,055 |
||
| Property Building Permit History | ||||||
|---|---|---|---|---|---|---|
| Issued | Permit # | Provided by | Bldg # | Description | Est Construction Cost | Status |
|
1/29/1998 |
10213866 |
MIDWEST CITY |
1 |
Main Dwellin |
95,000 |
Inactive |
| Click button on building number to access detailed information: | ||||||
|---|---|---|---|---|---|---|
| Bldg # | Vacant/Improved Land | Bldg Description | Year Built | SqFt | # Stories | |
|
1 |
Improved |
Ranch 1 Story |
1998 |
2,175 |
1 Stories |
|