|
|
|
| Larry Stein Oklahoma County Assessor (405) 713-1200 - Public Access System |
|
|
|
|
|
|
| Real Property Display - Screen Produced 3/22/2026 7:34:08 AM | ||||
|---|---|---|---|---|
| Account: R086738550 | Type: Residential | Location: |
2933 SW 19TH ST |
|
| Building Name/Occupant: |
|
OKLAHOMA CITY |
||
| Owner Name 1: | ZUNIGA MARIA AMPARO |
Parcel PIN#: |
1845-08-673-8550 |
|
| Owner Name 2: | 1/4 section #: |
1845 |
||
| Owner Name 3: | Parent Acct: |
|
||
| Billing Address: | 2929 SW 19TH ST | Tax District: |
|
|
| City, State, Zip | OKLAHOMA CITY, OK 73108-4410 | School System: |
Oklahoma City #89 |
|
|
Country: (If noted) |
Land Size: |
0.1550 Acres |
||
|
Land Value: 7,155 |
|
|||
|
Sect 12-T11N-R4W Qtr NE |
INDUSTRIAL BLVD REPL
Block
011
Lot
000
|
|||
| Full Legal Description: INDUSTRIAL BLVD REPL 011 000 LOTS 24 & 25 |
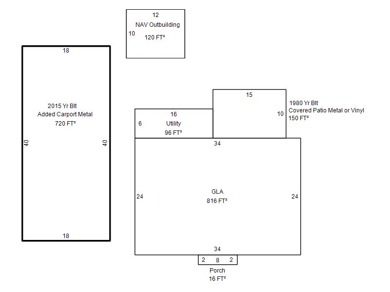
| Photo & Sketch (if available) | Comp Sales (ordered by relevancy) |
|
||||||||||||||||||
|
||||||||||||||||||||
| Value History (*The County Treasurer 405-713-1300 posts & collects actual tax amounts. Contact information HERE) | |||||||||||||
|---|---|---|---|---|---|---|---|---|---|---|---|---|---|
| Year | Market Value | Taxable Mkt Value | Gross Assessed | Exemption | Net Assessed | Millage | Est. Tax | Tax Savings | |||||
|
2025 |
82,000 |
44,321 |
4,875 |
0 |
4,875 |
119.02 |
$580 |
$493 |
|||||
|
2024 |
72,500 |
42,211 |
4,643 |
0 |
4,643 |
119.70 |
$556 |
$399 |
|||||
|
2023 |
60,000 |
40,201 |
4,421 |
0 |
4,421 |
118.33 |
$523 |
$258 |
|||||
|
2022 |
56,500 |
38,287 |
4,211 |
0 |
4,211 |
112.69 |
$475 |
$226 |
|||||
|
2021 |
42,500 |
36,464 |
4,011 |
0 |
4,011 |
112.29 |
$450 |
$75 |
|||||
| Property Account Status/Adjustments/Exemptions | ||
|---|---|---|
| Account # | Exemption Description | Amount |
|
R086738550 |
5% Capped Account |
0 |
| Property Deed Transaction History (Recorded in the County Clerk's Office) | |||||||
|---|---|---|---|---|---|---|---|
| Date | Type | Book | Page | Price | Grantor | Grantee | |
|
4/1/2005 |
|
Deeds |
$31,000 |
RUEDA ADALBERTO & JUANA MARIA |
ZUNIGA MARIA AMPARO |
||
|
9/18/2001 |
|
Deeds |
$14,000 |
MEDINA HILARIO E P MARIA |
RUEDA ADALBERTO & JUANA MARIA |
||
|
12/13/1993 |
|
Historical |
$8,000 |
STONE FLOYA |
MEDINA HILARIO E P MARIA |
||
|
4/1/1984 |
|
Historical |
$0 |
|
STONE FLOYA |
||
| Last Mailed Notice of Value (N.O.V.) Information/History | ||||||||
|---|---|---|---|---|---|---|---|---|
| Year | Date | Market Value | Taxable Market Value | Gross Assessed | Exemption | Net Assessed | ||
|
2026 |
02/06/2026 |
79,000 |
46,537 |
5,118 |
0 |
5,118 |
||
|
2025 |
01/31/2025 |
82,000 |
44,321 |
4,875 |
0 |
4,875 |
||
|
2024 |
01/22/2024 |
72,500 |
42,211 |
4,643 |
0 |
4,643 |
||
|
2023 |
01/23/2023 |
60,000 |
40,201 |
4,421 |
0 |
4,421 |
||
|
2022 |
02/22/2022 |
56,500 |
38,287 |
4,211 |
0 |
4,211 |
||
| Property Building Permit History | |||||||||||
|---|---|---|---|---|---|---|---|---|---|---|---|
| Issued | Permit # | Provided by | Bldg # | Description | Est Construction Cost | Status | |||||
| No Building Permit records returned. | |||||||||||
| Click button on building number to access detailed information: | ||||||
|---|---|---|---|---|---|---|
| Bldg # | Vacant/Improved Land | Bldg Description | Year Built | SqFt | # Stories | |
|
1 |
Improved |
Ranch 1 Story |
1946 |
816 |
1 Stories |
|