|
|
|
| Larry Stein Oklahoma County Assessor (405) 713-1200 - Public Access System |
|
|
|
|
|
|
| Real Property Display - Screen Produced 3/16/2026 7:38:04 AM | ||||
|---|---|---|---|---|
| Account: R086738820 | Type: Residential | Location: |
2934 SW 18TH ST |
|
| Building Name/Occupant: |
|
OKLAHOMA CITY |
||
| Owner Name 1: | MARTINEZ DANIEL |
Parcel PIN#: |
1845-08-673-8820 |
|
| Owner Name 2: | MARTINEZ ROMELIA | 1/4 section #: |
1845 |
|
| Owner Name 3: | Parent Acct: |
|
||
| Billing Address: | 2327 SW 21ST ST | Tax District: |
|
|
| City, State, Zip | OKLAHOMA CITY, OK 73108 | School System: |
Oklahoma City #89 |
|
|
Country: (If noted) |
Land Size: |
0.1550 Acres |
||
|
Land Value: 7,155 |
|
|||
|
Sect 12-T11N-R4W Qtr NE |
INDUSTRIAL BLVD REPL
Block
011
Lot
000
|
|||
| Full Legal Description: INDUSTRIAL BLVD REPL 011 000 LOTS 34 & 35 |
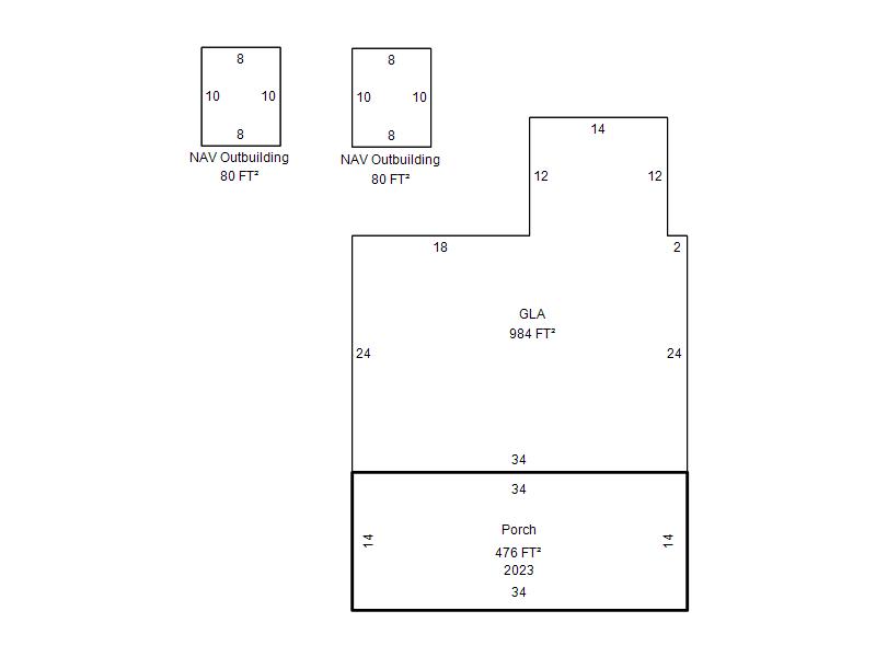
| Photo & Sketch (if available) | Comp Sales (ordered by relevancy) |
|
||||||||||||||||||
|
||||||||||||||||||||
| Value History (*The County Treasurer 405-713-1300 posts & collects actual tax amounts. Contact information HERE) | |||||||||||||
|---|---|---|---|---|---|---|---|---|---|---|---|---|---|
| Year | Market Value | Taxable Mkt Value | Gross Assessed | Exemption | Net Assessed | Millage | Est. Tax | Tax Savings | |||||
|
2025 |
81,000 |
43,147 |
4,745 |
0 |
4,745 |
119.02 |
$565 |
$496 |
|||||
|
2024 |
66,500 |
38,712 |
4,257 |
0 |
4,257 |
119.70 |
$510 |
$366 |
|||||
|
2023 |
54,000 |
36,869 |
4,055 |
0 |
4,055 |
118.33 |
$480 |
$223 |
|||||
|
2022 |
45,304 |
35,114 |
3,861 |
0 |
3,861 |
112.69 |
$435 |
$126 |
|||||
|
2021 |
37,927 |
33,442 |
3,678 |
0 |
3,678 |
112.29 |
$413 |
$55 |
|||||
| Property Account Status/Adjustments/Exemptions | ||
|---|---|---|
| Account # | Exemption Description | Amount |
|
R086738820 |
5% Capped Account |
0 |
| Property Deed Transaction History (Recorded in the County Clerk's Office) | |||||||
|---|---|---|---|---|---|---|---|
| Date | Type | Book | Page | Price | Grantor | Grantee | |
|
8/1/2020 |
|
Hmstd Off & |
$0 |
BECERRA JAVIER |
MARTINEZ DANIEL |
||
|
4/5/1999 |
|
Historical |
$12,000 |
SAENZ DIANNA |
BECERRA JAVIER |
||
|
7/29/1998 |
|
Historical |
$13,000 |
GONZALEZ ERNEST |
SAENZ DIANNA |
||
|
2/18/1998 |
|
Historical |
$0 |
GONZALES ERNEST & CYNTHIA |
GONZALEZ ERNEST |
||
|
11/11/1911 |
|
Historical |
$0 |
|
GONZALES ERNEST & CYNTHIA |
||
| Last Mailed Notice of Value (N.O.V.) Information/History | ||||||||
|---|---|---|---|---|---|---|---|---|
| Year | Date | Market Value | Taxable Market Value | Gross Assessed | Exemption | Net Assessed | ||
|
2026 |
02/06/2026 |
79,500 |
45,304 |
4,983 |
0 |
4,983 |
||
|
2025 |
03/28/2025 |
81,000 |
43,147 |
4,745 |
0 |
4,745 |
||
|
2024 |
01/22/2024 |
66,500 |
38,712 |
4,257 |
0 |
4,257 |
||
|
2023 |
01/23/2023 |
54,000 |
36,869 |
4,055 |
0 |
4,055 |
||
|
2022 |
02/22/2022 |
45,304 |
35,114 |
3,861 |
0 |
3,861 |
||
| Property Building Permit History | ||||||
|---|---|---|---|---|---|---|
| Issued | Permit # | Provided by | Bldg # | Description | Est Construction Cost | Status |
|
6/5/2018 |
|
|
1 |
Fire Remodel |
|
Inactive |
|
2/26/2018 |
|
|
|
Burn - Trip |
3,500 |
Inactive |
| Click button on building number to access detailed information: | ||||||
|---|---|---|---|---|---|---|
| Bldg # | Vacant/Improved Land | Bldg Description | Year Built | SqFt | # Stories | |
|
1 |
Improved |
Ranch 1 Story |
1946 |
984 |
1 Stories |
|