|
|
|
| Larry Stein Oklahoma County Assessor (405) 713-1200 - Public Access System |
|
|
|
|
|
|
| Real Property Display - Screen Produced 3/18/2026 5:29:46 AM | ||||
|---|---|---|---|---|
| Account: R088416550 | Type: Residential | Location: |
3505 SW 22ND ST |
|
| Building Name/Occupant: |
|
OKLAHOMA CITY |
||
| Owner Name 1: | LONGORIA ROBERTO |
Parcel PIN#: |
1848-08-841-6550 |
|
| Owner Name 2: | 1/4 section #: |
1848 |
||
| Owner Name 3: | Parent Acct: |
|
||
| Billing Address: | 3505 SW 22ND ST | Tax District: |
|
|
| City, State, Zip | OKLAHOMA CITY, OK 73108-5003 | School System: |
Oklahoma City #89 |
|
|
Country: (If noted) |
Land Size: |
0.1697 Acres |
||
|
Land Value: 7,836 |
|
|||
|
Sect 12-T11N-R4W Qtr NW |
ROCKWOOD ADDITION
Block
034
Lot
000
|
|||
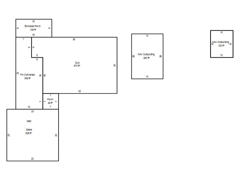
| Full Legal Description: ROCKWOOD ADDITION 034 000 E3FT LOT 44 & ALL LOTS 45 & 46 & W3FT LOT 47 |
| Photo & Sketch (if available) | Comp Sales (ordered by relevancy) |
|
||||||||||||||||||
|
||||||||||||||||||||
| Value History (*The County Treasurer 405-713-1300 posts & collects actual tax amounts. Contact information HERE) | |||||||||||||
|---|---|---|---|---|---|---|---|---|---|---|---|---|---|
| Year | Market Value | Taxable Mkt Value | Gross Assessed | Exemption | Net Assessed | Millage | Est. Tax | Tax Savings | |||||
|
2025 |
117,000 |
51,250 |
5,637 |
2,000 |
3,637 |
119.02 |
$433 |
$1,099 |
|||||
|
2024 |
104,500 |
51,250 |
5,637 |
2,000 |
3,637 |
119.70 |
$435 |
$941 |
|||||
|
2023 |
88,500 |
51,250 |
5,637 |
2,000 |
3,637 |
118.33 |
$430 |
$722 |
|||||
|
2022 |
79,000 |
51,250 |
5,637 |
2,000 |
3,637 |
112.69 |
$410 |
$569 |
|||||
|
2021 |
55,000 |
51,250 |
5,637 |
2,000 |
3,637 |
112.29 |
$408 |
$271 |
|||||
| Property Account Status/Adjustments/Exemptions | ||
|---|---|---|
| Account # | Exemption Description | Amount |
|
R088416550 |
Freeze Senior Valuation |
0 |
|
R088416550 |
Homestead |
1,000 |
|
R088416550 |
Senior Additional Homestead |
1,000 |
|
R088416550 |
3% Cap Homestead |
0 |
| Property Deed Transaction History (Recorded in the County Clerk's Office) | |||||||
|---|---|---|---|---|---|---|---|
| Date | Type | Book | Page | Price | Grantor | Grantee | |
|
4/11/2014 |
|
Deeds |
$0 |
LONGORIA ROBERTO & MARIA G |
LONGORIA ROBERTO |
||
|
3/18/1991 |
|
Historical |
$9,700 |
SECRETARY OF HOUSING |
LONGORIA ROBERTO & MARIA G |
||
|
12/17/1990 |
|
Historical |
$0 |
MARTINEZ ELIZANDRO & MARIA C |
SECRETARY OF HOUSING |
||
|
7/1/1985 |
|
Historical |
$36,500 |
|
MARTINEZ ELIZANDRO & MARIA C |
||
| Last Mailed Notice of Value (N.O.V.) Information/History | ||||||||
|---|---|---|---|---|---|---|---|---|
| Year | Date | Market Value | Taxable Market Value | Gross Assessed | Exemption | Net Assessed | ||
|
2025 |
01/31/2025 |
117,000 |
51,250 |
5,637 |
2,000 |
3,637 |
||
|
2024 |
01/22/2024 |
104,500 |
51,250 |
5,637 |
2,000 |
3,637 |
||
|
2023 |
01/23/2023 |
88,500 |
51,250 |
5,637 |
2,000 |
3,637 |
||
|
2022 |
02/22/2022 |
79,000 |
51,250 |
5,637 |
2,000 |
3,637 |
||
|
2021 |
02/24/2021 |
55,000 |
51,250 |
5,637 |
2,000 |
3,637 |
||
| Property Building Permit History | |||||||||||
|---|---|---|---|---|---|---|---|---|---|---|---|
| Issued | Permit # | Provided by | Bldg # | Description | Est Construction Cost | Status | |||||
| No Building Permit records returned. | |||||||||||
| Click button on building number to access detailed information: | ||||||
|---|---|---|---|---|---|---|
| Bldg # | Vacant/Improved Land | Bldg Description | Year Built | SqFt | # Stories | |
|
1 |
Improved |
Ranch 1 Story |
1964 |
870 |
1 Stories |
|