|
|
|
| Larry Stein Oklahoma County Assessor (405) 713-1200 - Public Access System |
|
|
|
|
|
|
| Real Property Display - Screen Produced 3/20/2026 5:50:00 AM | ||||
|---|---|---|---|---|
| Account: R088417710 | Type: Residential | Location: |
3321 SW 22ND ST |
|
| Building Name/Occupant: |
|
OKLAHOMA CITY |
||
| Owner Name 1: | SOTO OSCAR & BERTHA |
Parcel PIN#: |
1848-08-841-7710 |
|
| Owner Name 2: | 1/4 section #: |
1848 |
||
| Owner Name 3: | Parent Acct: |
|
||
| Billing Address: | 3321 SW 22ND ST | Tax District: |
|
|
| City, State, Zip | OKLAHOMA CITY, OK 73108-4249 | School System: |
Oklahoma City #89 |
|
|
Country: (If noted) |
Land Size: |
0.1697 Acres |
||
|
Land Value: 7,836 |
|
|||
|
Sect 12-T11N-R4W Qtr NW |
ROCKWOOD ADDITION
Block
036
Lot
000
|
|||
| Full Legal Description: ROCKWOOD ADDITION 036 000 E14FT LOT 35 & ALL 36 & W17FT LOT 37 |
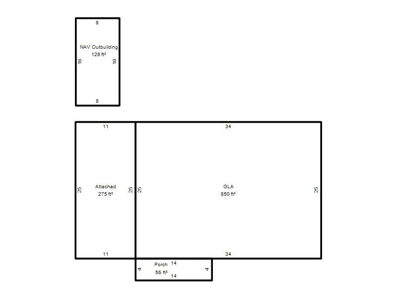
| Photo & Sketch (if available) | Comp Sales (ordered by relevancy) |
|
||||||||||||||||||
|
||||||||||||||||||||
| Value History (*The County Treasurer 405-713-1300 posts & collects actual tax amounts. Contact information HERE) | |||||||||||||
|---|---|---|---|---|---|---|---|---|---|---|---|---|---|
| Year | Market Value | Taxable Mkt Value | Gross Assessed | Exemption | Net Assessed | Millage | Est. Tax | Tax Savings | |||||
|
2025 |
104,000 |
49,791 |
5,476 |
0 |
5,476 |
119.02 |
$652 |
$710 |
|||||
|
2024 |
100,000 |
47,420 |
5,215 |
0 |
5,215 |
119.70 |
$624 |
$692 |
|||||
|
2023 |
82,000 |
45,162 |
4,967 |
0 |
4,967 |
118.33 |
$588 |
$479 |
|||||
|
2022 |
72,000 |
43,012 |
4,731 |
0 |
4,731 |
112.69 |
$533 |
$359 |
|||||
|
2021 |
52,000 |
40,964 |
4,505 |
0 |
4,505 |
112.29 |
$506 |
$136 |
|||||
| Property Account Status/Adjustments/Exemptions | ||
|---|---|---|
| Account # | Exemption Description | Amount |
|
R088417710 |
5% Capped Account |
0 |
| Property Deed Transaction History (Recorded in the County Clerk's Office) | |||||||
|---|---|---|---|---|---|---|---|
| Date | Type | Book | Page | Price | Grantor | Grantee | |
|
10/28/1988 |
|
Historical |
$13,500 |
ADMR OF VETERANS AFFAIRS |
SOTO OSCAR & BERTHA |
||
|
5/5/1988 |
|
Historical |
$0 |
SOTO OSCAR & BERTHA |
ADMR OF VETERANS AFFAIRS |
||
|
4/1/1986 |
|
Historical |
$0 |
|
SOTO OSCAR & BERTHA |
||
| Last Mailed Notice of Value (N.O.V.) Information/History | ||||||||
|---|---|---|---|---|---|---|---|---|
| Year | Date | Market Value | Taxable Market Value | Gross Assessed | Exemption | Net Assessed | ||
|
2026 |
02/06/2026 |
102,500 |
52,280 |
5,750 |
0 |
5,750 |
||
|
2025 |
01/31/2025 |
104,000 |
49,791 |
5,476 |
0 |
5,476 |
||
|
2024 |
01/22/2024 |
100,000 |
47,420 |
5,215 |
0 |
5,215 |
||
|
2023 |
01/23/2023 |
82,000 |
45,162 |
4,967 |
0 |
4,967 |
||
|
2022 |
02/22/2022 |
72,000 |
43,012 |
4,730 |
0 |
4,730 |
||
| Property Building Permit History | |||||||||||
|---|---|---|---|---|---|---|---|---|---|---|---|
| Issued | Permit # | Provided by | Bldg # | Description | Est Construction Cost | Status | |||||
| No Building Permit records returned. | |||||||||||
| Click button on building number to access detailed information: | ||||||
|---|---|---|---|---|---|---|
| Bldg # | Vacant/Improved Land | Bldg Description | Year Built | SqFt | # Stories | |
|
1 |
Improved |
Ranch 1 Story |
1964 |
850 |
1 Stories |
|