|
|
|
| Larry Stein Oklahoma County Assessor (405) 713-1200 - Public Access System |
|
|
|
|
|
|
| Real Property Display - Screen Produced 3/20/2026 6:07:35 AM | ||||
|---|---|---|---|---|
| Account: R088417850 | Type: Residential | Location: |
3308 SW 22ND ST |
|
| Building Name/Occupant: |
|
OKLAHOMA CITY |
||
| Owner Name 1: | DIEHL CECIL |
Parcel PIN#: |
1848-08-841-7850 |
|
| Owner Name 2: | 1/4 section #: |
1848 |
||
| Owner Name 3: | Parent Acct: |
|
||
| Billing Address: | 3308 SW 22ND ST | Tax District: |
|
|
| City, State, Zip | OKLAHOMA CITY, OK 73108-4250 | School System: |
Oklahoma City #89 |
|
|
Country: (If noted) |
Land Size: |
0.1492 Acres |
||
|
Land Value: 6,890 |
|
|||
|
Sect 12-T11N-R4W Qtr NW |
ROCKWOOD ADDITION
Block
037
Lot
000
|
|||
| Full Legal Description: ROCKWOOD ADDITION 037 000 LOTS 5 & 6 |
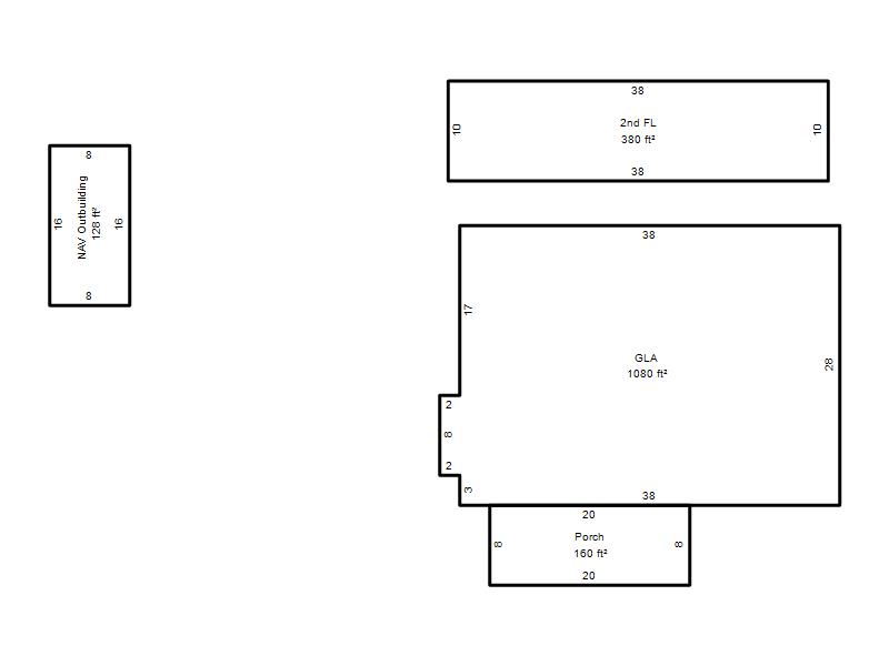
| Photo & Sketch (if available) | Comp Sales (ordered by relevancy) |
|
||||||||||||||||||
|
||||||||||||||||||||
| Value History (*The County Treasurer 405-713-1300 posts & collects actual tax amounts. Contact information HERE) | |||||||||||||
|---|---|---|---|---|---|---|---|---|---|---|---|---|---|
| Year | Market Value | Taxable Mkt Value | Gross Assessed | Exemption | Net Assessed | Millage | Est. Tax | Tax Savings | |||||
|
2025 |
98,000 |
22,563 |
2,481 |
2,000 |
481 |
119.02 |
$57 |
$1,226 |
|||||
|
2024 |
92,000 |
22,563 |
2,481 |
2,000 |
481 |
119.70 |
$58 |
$1,154 |
|||||
|
2023 |
77,000 |
22,563 |
2,481 |
2,000 |
481 |
118.33 |
$57 |
$945 |
|||||
|
2022 |
67,500 |
22,563 |
2,481 |
2,000 |
481 |
112.69 |
$54 |
$782 |
|||||
|
2021 |
48,500 |
22,563 |
2,481 |
2,000 |
481 |
112.29 |
$54 |
$545 |
|||||
| Property Account Status/Adjustments/Exemptions | ||
|---|---|---|
| Account # | Exemption Description | Amount |
|
R088417850 |
Freeze Senior Valuation |
0 |
|
R088417850 |
Senior Additional Homestead |
1,000 |
|
R088417850 |
3% Cap Homestead |
0 |
|
R088417850 |
Homestead |
1,000 |
| Property Deed Transaction History (Recorded in the County Clerk's Office) | |||||||
|---|---|---|---|---|---|---|---|
| Date | Type | Book | Page | Price | Grantor | Grantee | |
|
9/1/1983 |
|
Historical |
$0 |
|
DIEHL CECIL |
||
| Last Mailed Notice of Value (N.O.V.) Information/History | ||||||||
|---|---|---|---|---|---|---|---|---|
| Year | Date | Market Value | Taxable Market Value | Gross Assessed | Exemption | Net Assessed | ||
|
2025 |
01/31/2025 |
98,000 |
22,563 |
2,481 |
2,000 |
481 |
||
|
2024 |
01/22/2024 |
92,000 |
22,563 |
2,481 |
2,000 |
481 |
||
|
2023 |
01/23/2023 |
77,000 |
22,563 |
2,481 |
2,000 |
481 |
||
|
2022 |
02/22/2022 |
67,500 |
22,563 |
2,481 |
2,000 |
481 |
||
|
2020 |
02/21/2020 |
52,000 |
22,563 |
2,481 |
2,000 |
481 |
||
| Property Building Permit History | |||||||||||
|---|---|---|---|---|---|---|---|---|---|---|---|
| Issued | Permit # | Provided by | Bldg # | Description | Est Construction Cost | Status | |||||
| No Building Permit records returned. | |||||||||||
| Click button on building number to access detailed information: | ||||||
|---|---|---|---|---|---|---|
| Bldg # | Vacant/Improved Land | Bldg Description | Year Built | SqFt | # Stories | |
|
1 |
Improved |
1½ Story Fin |
1953 |
1,460 |
1.5 Stories |
|