|
|
|
| Larry Stein Oklahoma County Assessor (405) 713-1200 - Public Access System |
|
|
|
|
|
|
| Real Property Display - Screen Produced 3/16/2026 11:03:57 AM | ||||
|---|---|---|---|---|
| Account: R088421070 | Type: Residential | Location: |
3408 SW 21ST ST |
|
| Building Name/Occupant: |
|
OKLAHOMA CITY |
||
| Owner Name 1: | AMERICAN DREAM LLC |
Parcel PIN#: |
1848-08-842-1070 |
|
| Owner Name 2: | 1/4 section #: |
1848 |
||
| Owner Name 3: | Parent Acct: |
|
||
| Billing Address: | 16307 SONOMA PARK DR | Tax District: |
|
|
| City, State, Zip | EDMOND, OK 73013-2091 | School System: |
Oklahoma City #89 |
|
|
Country: (If noted) |
Land Size: |
0.1856 Acres |
||
|
Land Value: 8,570 |
|
|||
|
Sect 12-T11N-R4W Qtr NW |
ROCKWOOD REPLAT
Block
001
Lot
008
|
|||
| Full Legal Description: ROCKWOOD REPLAT 001 008 |
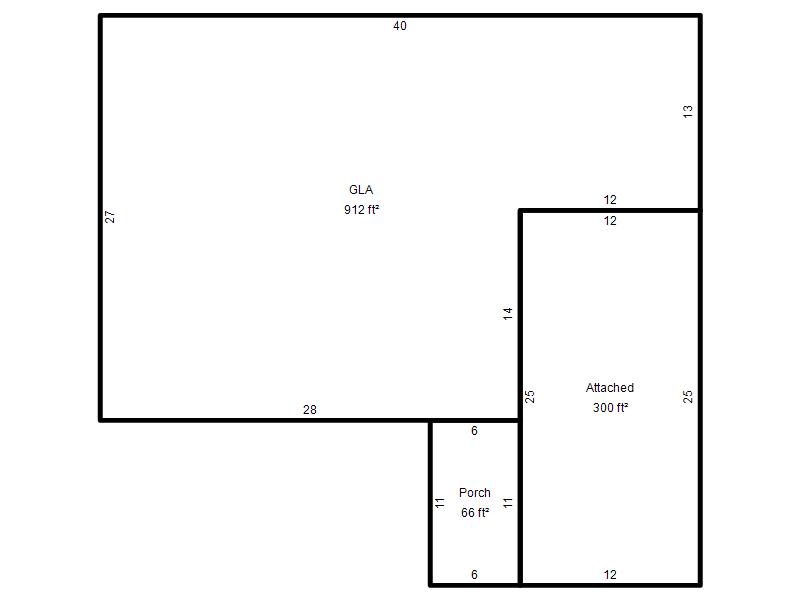
| Photo & Sketch (if available) | Comp Sales (ordered by relevancy) |
|
||||||||||||||||||
|
||||||||||||||||||||
| Value History (*The County Treasurer 405-713-1300 posts & collects actual tax amounts. Contact information HERE) | |||||||||||||
|---|---|---|---|---|---|---|---|---|---|---|---|---|---|
| Year | Market Value | Taxable Mkt Value | Gross Assessed | Exemption | Net Assessed | Millage | Est. Tax | Tax Savings | |||||
|
2025 |
112,000 |
112,000 |
12,320 |
0 |
12,320 |
119.02 |
$1,466 |
$0 |
|||||
|
2024 |
108,000 |
108,000 |
11,880 |
0 |
11,880 |
119.70 |
$1,422 |
$0 |
|||||
|
2023 |
88,500 |
47,278 |
5,199 |
0 |
5,199 |
118.33 |
$615 |
$537 |
|||||
|
2022 |
78,000 |
45,027 |
4,952 |
0 |
4,952 |
112.69 |
$558 |
$409 |
|||||
|
2021 |
56,000 |
42,883 |
4,716 |
0 |
4,716 |
112.29 |
$530 |
$162 |
|||||
| Property Account Status/Adjustments/Exemptions | ||
|---|---|---|
| Account # | Exemption Description | Amount |
|
R088421070 |
5% Capped Account |
0 |
| Property Deed Transaction History (Recorded in the County Clerk's Office) | |||||||
|---|---|---|---|---|---|---|---|
| Date | Type | Book | Page | Price | Grantor | Grantee | |
|
6/12/2023 |
|
Other |
$0 |
MCGUIRE JOANNE E |
AMERICAN DREAM LLC |
||
|
3/17/2005 |
|
Deeds |
$0 |
MCGUIRE DANNY J & JOANNE E |
MCGUIRE JOANNE E |
||
|
9/1/1974 |
|
Historical |
$0 |
|
MCGUIRE DANNY J & JOANNE E |
||
| Last Mailed Notice of Value (N.O.V.) Information/History | ||||||||
|---|---|---|---|---|---|---|---|---|
| Year | Date | Market Value | Taxable Market Value | Gross Assessed | Exemption | Net Assessed | ||
|
2025 |
01/31/2025 |
112,000 |
112,000 |
12,320 |
0 |
12,320 |
||
|
2024 |
01/22/2024 |
108,000 |
108,000 |
11,880 |
0 |
11,880 |
||
|
2023 |
01/23/2023 |
88,500 |
47,278 |
5,199 |
0 |
5,199 |
||
|
2022 |
02/22/2022 |
78,000 |
45,027 |
4,951 |
0 |
4,951 |
||
|
2021 |
02/24/2021 |
56,000 |
42,883 |
4,717 |
0 |
4,717 |
||
| Property Building Permit History | |||||||||||
|---|---|---|---|---|---|---|---|---|---|---|---|
| Issued | Permit # | Provided by | Bldg # | Description | Est Construction Cost | Status | |||||
| No Building Permit records returned. | |||||||||||
| Click button on building number to access detailed information: | ||||||
|---|---|---|---|---|---|---|
| Bldg # | Vacant/Improved Land | Bldg Description | Year Built | SqFt | # Stories | |
|
1 |
Improved |
Ranch 1 Story |
1965 |
912 |
1 Stories |
|