|
|
|
| Larry Stein Oklahoma County Assessor (405) 713-1200 - Public Access System |
|
|
|
|
|
|
| Real Property Display - Screen Produced 4/2/2026 8:30:55 PM | ||||
|---|---|---|---|---|
| Account: R088893285 | Type: Residential | Location: |
3600 SW 39TH ST |
|
| Building Name/Occupant: |
|
OKLAHOMA CITY |
||
| Owner Name 1: | HODGINS RONNIE LEE |
Parcel PIN#: |
1851-08-889-3285 |
|
| Owner Name 2: | 1/4 section #: |
1851 |
||
| Owner Name 3: | Parent Acct: |
|
||
| Billing Address: | 3600 SW 39TH ST | Tax District: |
|
|
| City, State, Zip | OKLAHOMA CITY, OK 73119-2918 | School System: |
Oklahoma City #89 |
|
|
Country: (If noted) |
Land Size: |
0.1607 Acres |
||
|
Land Value: 11,410 |
|
|||
|
Sect 13-T11N-R4W Qtr SW |
HUGHES PARK ADD
Block
007
Lot
000
|
|||
| Full Legal Description: HUGHES PARK ADD 007 000 LOTS 1 & 2 |
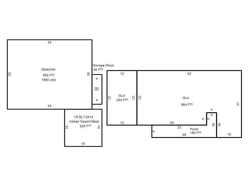
| Photo & Sketch (if available) | Comp Sales (ordered by relevancy) |
|
||||||||||||||||||
|
||||||||||||||||||||
| Value History (*The County Treasurer 405-713-1300 posts & collects actual tax amounts. Contact information HERE) | |||||||||||||
|---|---|---|---|---|---|---|---|---|---|---|---|---|---|
| Year | Market Value | Taxable Mkt Value | Gross Assessed | Exemption | Net Assessed | Millage | Est. Tax | Tax Savings | |||||
|
2026 |
115,500 |
45,687 |
5,025 |
1,000 |
4,025 |
119.02 |
$479 |
$1,033 |
|||||
|
2025 |
90,000 |
44,357 |
4,879 |
1,000 |
3,879 |
119.02 |
$462 |
$717 |
|||||
|
2024 |
70,500 |
43,066 |
4,736 |
1,000 |
3,736 |
119.70 |
$447 |
$481 |
|||||
|
2023 |
71,500 |
41,812 |
4,598 |
1,000 |
3,598 |
118.33 |
$426 |
$505 |
|||||
|
2022 |
60,000 |
40,595 |
4,465 |
1,000 |
3,465 |
112.69 |
$391 |
$353 |
|||||
| Property Account Status/Adjustments/Exemptions | ||
|---|---|---|
| Account # | Exemption Description | Amount |
|
R088893285 |
3% Cap Homestead |
0 |
|
R088893285 |
Homestead |
1,000 |
| Property Deed Transaction History (Recorded in the County Clerk's Office) | |||||||
|---|---|---|---|---|---|---|---|
| Date | Type | Book | Page | Price | Grantor | Grantee | |
|
2/6/1991 |
|
Historical |
$0 |
HODGINS RONNIE LEE & DONNA J |
HODGINS RONNIE LEE |
||
|
2/25/1988 |
|
Historical |
$0 |
FEDERAL NATIONAL |
HODGINS RONNIE LEE & DONNA J |
||
|
12/4/1987 |
|
Historical |
$0 |
SHORES ALDEN G & BECKY S |
FEDERAL NATIONAL |
||
|
11/1/1979 |
|
Historical |
$0 |
|
SHORES ALDEN G & BECKY S |
||
| Last Mailed Notice of Value (N.O.V.) Information/History | ||||||||
|---|---|---|---|---|---|---|---|---|
| Year | Date | Market Value | Taxable Market Value | Gross Assessed | Exemption | Net Assessed | ||
|
2026 |
02/06/2026 |
115,500 |
45,687 |
5,025 |
1,000 |
4,025 |
||
|
2025 |
01/31/2025 |
90,000 |
44,357 |
4,879 |
1,000 |
3,879 |
||
|
2024 |
01/22/2024 |
70,500 |
43,066 |
4,736 |
1,000 |
3,736 |
||
|
2023 |
01/23/2023 |
71,500 |
41,812 |
4,598 |
1,000 |
3,598 |
||
|
2022 |
02/22/2022 |
60,000 |
40,595 |
4,465 |
1,000 |
3,465 |
||
| Property Building Permit History | ||||||
|---|---|---|---|---|---|---|
| Issued | Permit # | Provided by | Bldg # | Description | Est Construction Cost | Status |
|
8/18/1995 |
10198804 |
OKLAHOMA CITY |
1 |
Garage |
7,000 |
Inactive |
| Click button on building number to access detailed information: | ||||||
|---|---|---|---|---|---|---|
| Bldg # | Vacant/Improved Land | Bldg Description | Year Built | SqFt | # Stories | |
|
1 |
Improved |
Ranch 1 Story |
1937 |
1,218 |
1 Stories |
|