|
|
|
| Larry Stein Oklahoma County Assessor (405) 713-1200 - Public Access System |
|
|
|
|
|
|
| Real Property Display - Screen Produced 3/20/2026 5:43:12 AM | ||||
|---|---|---|---|---|
| Account: R089139800 | Type: Residential | Location: |
3313 SW 44TH ST |
|
| Building Name/Occupant: |
|
OKLAHOMA CITY |
||
| Owner Name 1: | ALEJOS ADOLFO |
Parcel PIN#: |
1851-08-913-9800 |
|
| Owner Name 2: | 1/4 section #: |
1851 |
||
| Owner Name 3: | Parent Acct: |
|
||
| Billing Address: | 3313 SW 44TH ST | Tax District: |
|
|
| City, State, Zip | OKLAHOMA CITY, OK 73119-4314 | School System: |
Oklahoma City #89 |
|
|
Country: (If noted) |
Land Size: |
0.3214 Acres |
||
|
Land Value: 24,500 |
|
|||
|
Sect 13-T11N-R4W Qtr SW |
SADLERS INDUSTRIAL HT
Block
016
Lot
000
|
|||
| Full Legal Description: SADLERS INDUSTRIAL HT 016 000 LOTS 41 THRU 44 |
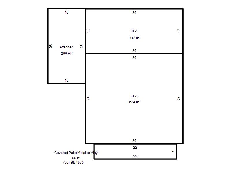
| Photo & Sketch (if available) | Comp Sales (ordered by relevancy) |
|
||||||||||||||||||
|
||||||||||||||||||||
| Value History (*The County Treasurer 405-713-1300 posts & collects actual tax amounts. Contact information HERE) | |||||||||||||
|---|---|---|---|---|---|---|---|---|---|---|---|---|---|
| Year | Market Value | Taxable Mkt Value | Gross Assessed | Exemption | Net Assessed | Millage | Est. Tax | Tax Savings | |||||
|
2025 |
88,000 |
88,000 |
9,680 |
0 |
9,680 |
119.02 |
$1,152 |
$0 |
|||||
|
2024 |
69,000 |
56,144 |
6,175 |
0 |
6,175 |
119.70 |
$739 |
$169 |
|||||
|
2023 |
54,000 |
53,471 |
5,881 |
0 |
5,881 |
118.33 |
$696 |
$7 |
|||||
|
2022 |
53,500 |
50,925 |
5,601 |
0 |
5,601 |
112.69 |
$631 |
$32 |
|||||
|
2021 |
48,500 |
48,500 |
5,335 |
0 |
5,335 |
112.29 |
$599 |
$0 |
|||||
| Property Account Status/Adjustments/Exemptions | ||||||
|---|---|---|---|---|---|---|
| Account # | Exemption Description | Amount | ||||
| No adjustment/exemption records returned. | ||||||
| Property Deed Transaction History (Recorded in the County Clerk's Office) | ||||||||||
|---|---|---|---|---|---|---|---|---|---|---|
| Date | Type | Book | Page | Price | Grantor | Grantee | ||||
|
6/5/2025 |
|
Deeds |
$45,000 |
MARTINEZ JESUS SEGUNDO |
ALEJOS ADOLFO |
|||||
|
12/9/2024 |
|
Deeds |
$40,000 |
GILL BILLY F TRS |
MARTINEZ JESUS SEGUNDO |
|||||
|
3/14/2019 |
|
Deeds |
$35,000 |
MATSON GENE |
GILL BILLY F TRS |
|||||
|
11/20/2018 |
|
Hmstd Off & |
$0 |
CARR BILLY R |
MATSON GENE |
|||||
|
11/9/2007 |
|
Deeds |
$30,000 |
GASAWAY LINDON C |
CARR BILLY R |
|||||
| Last Mailed Notice of Value (N.O.V.) Information/History | ||||||||
|---|---|---|---|---|---|---|---|---|
| Year | Date | Market Value | Taxable Market Value | Gross Assessed | Exemption | Net Assessed | ||
|
2025 |
01/31/2025 |
88,000 |
88,000 |
9,680 |
0 |
9,680 |
||
|
2024 |
01/22/2024 |
69,000 |
56,144 |
6,175 |
0 |
6,175 |
||
|
2023 |
01/23/2023 |
54,000 |
53,471 |
5,881 |
0 |
5,881 |
||
|
2022 |
02/22/2022 |
53,500 |
50,925 |
5,601 |
0 |
5,601 |
||
|
2020 |
02/21/2020 |
49,000 |
49,000 |
5,390 |
0 |
5,390 |
||
| Property Building Permit History | |||||||||||
|---|---|---|---|---|---|---|---|---|---|---|---|
| Issued | Permit # | Provided by | Bldg # | Description | Est Construction Cost | Status | |||||
| No Building Permit records returned. | |||||||||||
| Click button on building number to access detailed information: | ||||||
|---|---|---|---|---|---|---|
| Bldg # | Vacant/Improved Land | Bldg Description | Year Built | SqFt | # Stories | |
|
1 |
Improved |
Ranch 1 Story |
1946 |
936 |
1 Stories |
|