|
|
|
| Larry Stein Oklahoma County Assessor (405) 713-1200 - Public Access System |
|
|
|
|
|
|
| Real Property Display - Screen Produced 3/15/2026 4:13:26 AM | ||||
|---|---|---|---|---|
| Account: R074671715 | Type: Residential | Location: |
3832 SW 39TH ST |
|
| Building Name/Occupant: |
|
OKLAHOMA CITY |
||
| Owner Name 1: | VAZQUEZ GUADALUPE DOLORES SILVA |
Parcel PIN#: |
1854-07-467-1715 |
|
| Owner Name 2: | 1/4 section #: |
1854 |
||
| Owner Name 3: | Parent Acct: |
|
||
| Billing Address: | 1200 BANNER RD NW | Tax District: |
|
|
| City, State, Zip | OKARCHE, OK 73762-1025 | School System: |
Oklahoma City #89 |
|
|
Country: (If noted) |
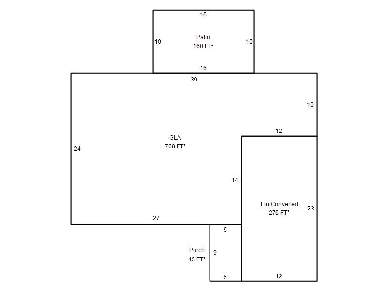
Land Size: |
0.1607 Acres |
||
|
Land Value: 10,150 |
|
|||
|
Sect 14-T11N-R4W Qtr SE |
CROCKER YOUNG
Block
004
Lot
009
|
|||
| Full Legal Description: CROCKER YOUNG 004 009 |
| Photo & Sketch (if available) | Comp Sales (ordered by relevancy) |
|
||||||||||||||||||
|
||||||||||||||||||||
| Value History (*The County Treasurer 405-713-1300 posts & collects actual tax amounts. Contact information HERE) | |||||||||||||
|---|---|---|---|---|---|---|---|---|---|---|---|---|---|
| Year | Market Value | Taxable Mkt Value | Gross Assessed | Exemption | Net Assessed | Millage | Est. Tax | Tax Savings | |||||
|
2025 |
86,000 |
55,088 |
6,059 |
0 |
6,059 |
119.02 |
$721 |
$405 |
|||||
|
2024 |
63,000 |
52,465 |
5,770 |
0 |
5,770 |
119.70 |
$691 |
$139 |
|||||
|
2023 |
72,000 |
49,967 |
5,495 |
0 |
5,495 |
118.33 |
$650 |
$287 |
|||||
|
2022 |
62,000 |
47,588 |
5,234 |
0 |
5,234 |
112.69 |
$590 |
$179 |
|||||
|
2021 |
52,500 |
45,322 |
4,985 |
0 |
4,985 |
112.29 |
$560 |
$89 |
|||||
| Property Account Status/Adjustments/Exemptions | ||
|---|---|---|
| Account # | Exemption Description | Amount |
|
R074671715 |
5% Capped Account |
0 |
| Property Deed Transaction History (Recorded in the County Clerk's Office) | |||||||
|---|---|---|---|---|---|---|---|
| Date | Type | Book | Page | Price | Grantor | Grantee | |
|
6/27/2000 |
|
Other |
$0 |
SECRETARY OF HOUSING & URBAN DEVELOPMENT C/O 1ST PRESTON FOR |
VAZQUEZ GUADALUPE DOLORES SILVA |
||
|
1/4/2000 |
|
Other |
$0 |
BURGETT BILL D & DOROTHY S |
SECRETARY OF HOUSING & URBAN DEVELOPMENT |
||
|
12/8/1993 |
|
Historical |
$29,000 |
WOOD BARRY W & DEBRA LYNNE |
BURGETT BILL D & DOROTHY S |
||
|
4/1/1986 |
|
Historical |
$0 |
|
WOOD BARRY W & DEBRA LYNNE |
||
| Last Mailed Notice of Value (N.O.V.) Information/History | ||||||||
|---|---|---|---|---|---|---|---|---|
| Year | Date | Market Value | Taxable Market Value | Gross Assessed | Exemption | Net Assessed | ||
|
2026 |
02/06/2026 |
86,500 |
57,842 |
6,361 |
0 |
6,361 |
||
|
2025 |
01/31/2025 |
86,000 |
55,088 |
6,059 |
0 |
6,059 |
||
|
2024 |
01/22/2024 |
63,000 |
52,465 |
5,770 |
0 |
5,770 |
||
|
2023 |
01/23/2023 |
72,000 |
49,967 |
5,495 |
0 |
5,495 |
||
|
2022 |
02/22/2022 |
62,000 |
47,588 |
5,234 |
0 |
5,234 |
||
| Property Building Permit History | ||||||
|---|---|---|---|---|---|---|
| Issued | Permit # | Provided by | Bldg # | Description | Est Construction Cost | Status |
|
10/8/2001 |
10196775 |
OKLAHOMA CITY |
1 |
Remodeled |
2,000 |
Inactive |
| Click button on building number to access detailed information: | ||||||
|---|---|---|---|---|---|---|
| Bldg # | Vacant/Improved Land | Bldg Description | Year Built | SqFt | # Stories | |
|
1 |
Improved |
Ranch 1 Story |
1955 |
768 |
1 Stories |
|