|
|
|
| Larry Stein Oklahoma County Assessor (405) 713-1200 - Public Access System |
|
|
|
|
|
|
| Real Property Display - Screen Produced 3/11/2026 11:40:19 PM | ||||
|---|---|---|---|---|
| Account: R206881210 | Type: Residential | Location: |
295 MOUNDS RD |
|
| Building Name/Occupant: |
|
HARRAH |
||
| Owner Name 1: | HAGEN MICHAEL J & HELEN J |
Parcel PIN#: |
1005-20-688-1210 |
|
| Owner Name 2: | 1/4 section #: |
1005 |
||
| Owner Name 3: | Parent Acct: |
1005-26-702-1000 |
||
| Billing Address: | 295 MOUNDS RD | Tax District: |
|
|
| City, State, Zip | HARRAH, OK 73045-6602 | School System: |
Harrah #7 |
|
|
Country: (If noted) |
Land Size: |
0.6731 Acres |
||
|
Land Value: 61,576 |
|
|||
|
Sect 2-T11N-R1E Qtr NE |
FALL CREEK ESTATES
Block
004
Lot
003
|
|||
| Full Legal Description: FALL CREEK ESTATES BLK 004 LOT 003 |
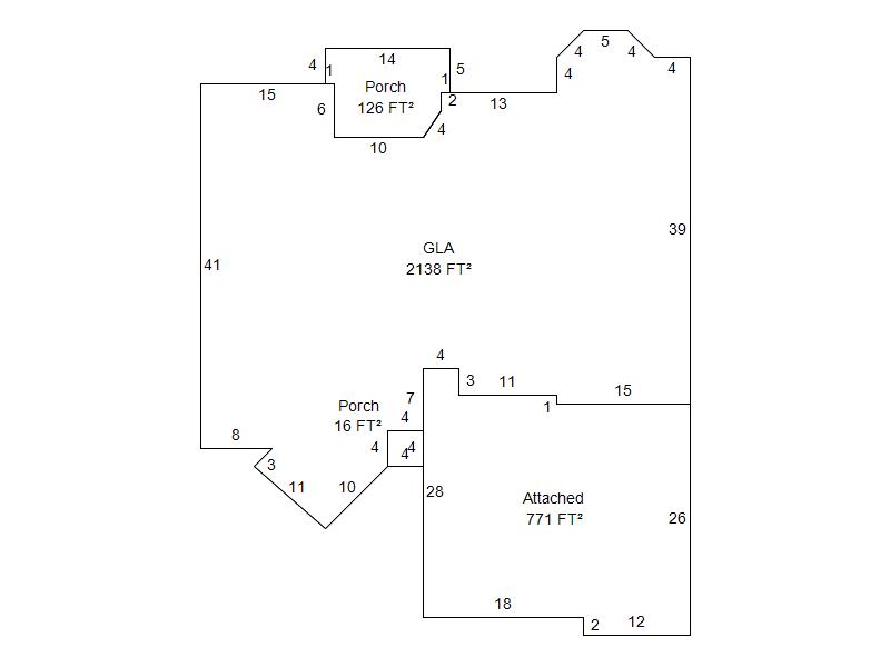
| Photo & Sketch (if available) | Comp Sales (ordered by relevancy) |
|
||||||||||||||||||
|
||||||||||||||||||||
| Value History (*The County Treasurer 405-713-1300 posts & collects actual tax amounts. Contact information HERE) | |||||||||||||
|---|---|---|---|---|---|---|---|---|---|---|---|---|---|
| Year | Market Value | Taxable Mkt Value | Gross Assessed | Exemption | Net Assessed | Millage | Est. Tax | Tax Savings | |||||
|
2025 |
323,500 |
257,356 |
28,308 |
1,000 |
27,308 |
107.54 |
$2,937 |
$890 |
|||||
|
2024 |
315,500 |
249,861 |
27,484 |
1,000 |
26,484 |
110.62 |
$2,930 |
$909 |
|||||
|
2023 |
298,500 |
242,584 |
26,684 |
1,000 |
25,684 |
97.88 |
$2,514 |
$700 |
|||||
|
2022 |
264,500 |
235,519 |
25,906 |
1,000 |
24,906 |
99.50 |
$2,478 |
$417 |
|||||
|
2021 |
238,500 |
228,660 |
25,152 |
1,000 |
24,152 |
99.52 |
$2,404 |
$207 |
|||||
| Property Account Status/Adjustments/Exemptions | ||
|---|---|---|
| Account # | Exemption Description | Amount |
|
R206881210 |
3% Cap Homestead |
0 |
|
R206881210 |
Homestead |
1,000 |
| Property Deed Transaction History (Recorded in the County Clerk's Office) | |||||||
|---|---|---|---|---|---|---|---|
| Date | Type | Book | Page | Price | Grantor | Grantee | |
|
6/24/2016 |
|
Deeds |
$224,000 |
TUBENS ANTHONY |
HAGEN MICHAEL J & HELEN J |
||
|
12/8/2014 |
|
Deeds |
$209,500 |
RCL CONSTRUCTION LLC |
TUBENS ANTHONY |
||
|
8/8/2012 |
|
Deeds |
$22,000 |
FALL CREEK DEVELOPMENT LLC |
RCL CONSTRUCTION LLC |
||
|
5/19/2007 |
|
Mult Parcel |
$1,550,000 |
MIDWEST DEVELOPMENT LLC |
FALL CREEK DEVELOPMENT LLC |
||
| Last Mailed Notice of Value (N.O.V.) Information/History | ||||||||
|---|---|---|---|---|---|---|---|---|
| Year | Date | Market Value | Taxable Market Value | Gross Assessed | Exemption | Net Assessed | ||
|
2026 |
02/06/2026 |
335,500 |
265,076 |
29,158 |
1,000 |
28,158 |
||
|
2025 |
01/31/2025 |
323,500 |
257,356 |
28,308 |
1,000 |
27,308 |
||
|
2024 |
01/22/2024 |
315,500 |
249,861 |
27,484 |
1,000 |
26,484 |
||
|
2023 |
01/23/2023 |
298,500 |
242,584 |
26,684 |
1,000 |
25,684 |
||
|
2022 |
02/22/2022 |
264,500 |
235,519 |
25,906 |
1,000 |
24,906 |
||
| Property Building Permit History | ||||||
|---|---|---|---|---|---|---|
| Issued | Permit # | Provided by | Bldg # | Description | Est Construction Cost | Status |
|
12/11/2012 |
10446302 |
COUNTY |
1 |
Main Dwellin |
0 |
Inactive |
| Click button on building number to access detailed information: | ||||||
|---|---|---|---|---|---|---|
| Bldg # | Vacant/Improved Land | Bldg Description | Year Built | SqFt | # Stories | |
|
1 |
Improved |
Ranch 1 Story |
2013 |
2,138 |
1 Stories |
|