|
|
|
| Larry Stein Oklahoma County Assessor (405) 713-1200 - Public Access System |
|
|
|
|
|
|
| Real Property Display - Screen Produced 3/17/2026 4:40:01 AM | ||||
|---|---|---|---|---|
| Account: R120661570 | Type: Residential | Location: |
3737 WINDSWEST CT |
|
| Building Name/Occupant: |
|
OKLAHOMA CITY |
||
| Owner Name 1: | TMSV INVESTMENT GROUP LLC |
Parcel PIN#: |
1870-12-066-1570 |
|
| Owner Name 2: | 1/4 section #: |
1870 |
||
| Owner Name 3: | Parent Acct: |
|
||
| Billing Address: | PO BOX 851917 | Tax District: |
|
|
| City, State, Zip | YUKON, OK 73085 | School System: |
Western Heights #41 |
|
|
Country: (If noted) |
Land Size: |
0.0907 Acres |
||
|
Land Value: 17,705 |
|
|||
|
Sect 18-T11N-R4W Qtr SE |
WINDS WEST
Block
004
Lot
003
|
|||
| Full Legal Description: WINDS WEST 004 003 |
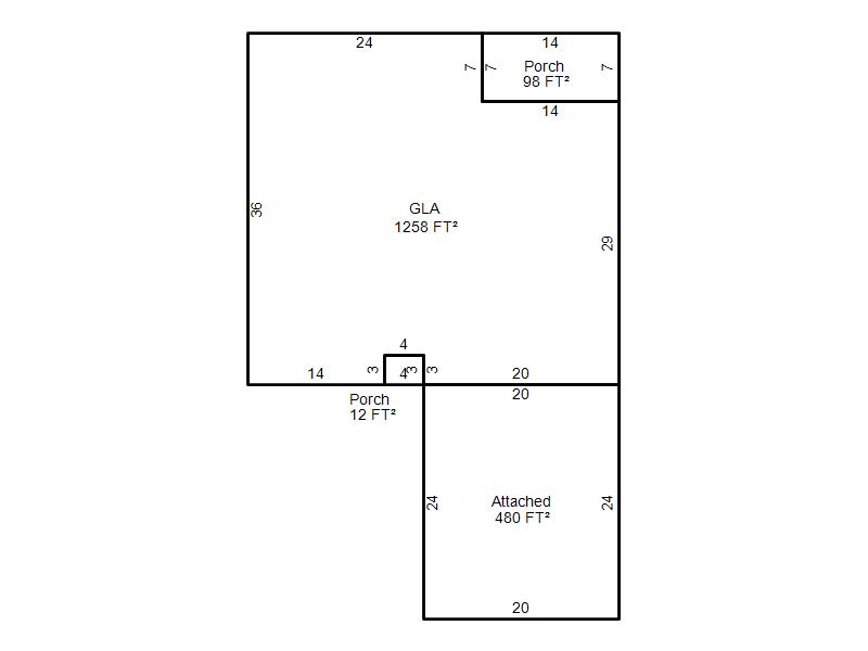
| Photo & Sketch (if available) | Comp Sales (ordered by relevancy) |
|
||||||||||||||||||
|
||||||||||||||||||||
| Value History (*The County Treasurer 405-713-1300 posts & collects actual tax amounts. Contact information HERE) | |||||||||||||
|---|---|---|---|---|---|---|---|---|---|---|---|---|---|
| Year | Market Value | Taxable Mkt Value | Gross Assessed | Exemption | Net Assessed | Millage | Est. Tax | Tax Savings | |||||
|
2025 |
128,500 |
110,454 |
12,149 |
0 |
12,149 |
117.97 |
$1,433 |
$234 |
|||||
|
2024 |
133,000 |
105,195 |
11,571 |
0 |
11,571 |
118.45 |
$1,371 |
$362 |
|||||
|
2023 |
129,500 |
100,186 |
11,019 |
0 |
11,019 |
116.31 |
$1,282 |
$375 |
|||||
|
2022 |
97,000 |
95,416 |
10,495 |
0 |
10,495 |
117.67 |
$1,235 |
$21 |
|||||
|
2021 |
95,500 |
90,873 |
9,996 |
0 |
9,996 |
120.74 |
$1,207 |
$61 |
|||||
| Property Account Status/Adjustments/Exemptions | ||||||
|---|---|---|---|---|---|---|
| Account # | Exemption Description | Amount | ||||
| No adjustment/exemption records returned. | ||||||
| Property Deed Transaction History (Recorded in the County Clerk's Office) | ||||||||||
|---|---|---|---|---|---|---|---|---|---|---|
| Date | Type | Book | Page | Price | Grantor | Grantee | ||||
|
1/19/2022 |
|
Hmstd Off & |
$0 |
MATHAI TOM T |
TMSV INVESTMENT GROUP LLC |
|||||
|
8/20/2021 |
|
Hmstd Off & |
$0 |
TMSV INVESTMENT GROUP LLC |
MATHAI TOM T |
|||||
|
1/24/2018 |
|
Hmstd Off & |
$0 |
VARGHESE MATHAI SHEEBA |
TMSV INVESTMENT GROUP LLC |
|||||
|
8/24/2016 |
|
Other |
$0 |
SECRETARY OF HOUSING & URBAN DEV |
VARGHESE MATHAI SHEEBA |
|||||
|
12/1/2015 |
|
Other |
$0 |
JPMORGAN CHASE BANK NA |
SECRETARY OF HOUSING & URBAN DEV |
|||||
| Last Mailed Notice of Value (N.O.V.) Information/History | ||||||||
|---|---|---|---|---|---|---|---|---|
| Year | Date | Market Value | Taxable Market Value | Gross Assessed | Exemption | Net Assessed | ||
|
2026 |
02/06/2026 |
137,000 |
115,976 |
12,756 |
0 |
12,756 |
||
|
2025 |
01/31/2025 |
128,500 |
110,454 |
12,149 |
0 |
12,149 |
||
|
2024 |
01/22/2024 |
133,000 |
105,195 |
11,571 |
0 |
11,571 |
||
|
2023 |
01/23/2023 |
129,500 |
100,186 |
11,019 |
0 |
11,019 |
||
|
2022 |
02/22/2022 |
97,000 |
95,416 |
10,495 |
0 |
10,495 |
||
| Property Building Permit History | |||||||||||
|---|---|---|---|---|---|---|---|---|---|---|---|
| Issued | Permit # | Provided by | Bldg # | Description | Est Construction Cost | Status | |||||
| No Building Permit records returned. | |||||||||||
| Click button on building number to access detailed information: | ||||||
|---|---|---|---|---|---|---|
| Bldg # | Vacant/Improved Land | Bldg Description | Year Built | SqFt | # Stories | |
|
1 |
Improved |
Townhouse One Story |
1982 |
1,258 |
1 Stories |
|