|
|
|
| Larry Stein Oklahoma County Assessor (405) 713-1200 - Public Access System |
|
|
|
|
|
|
| Real Property Display - Screen Produced 3/15/2026 5:40:52 AM | ||||
|---|---|---|---|---|
| Account: R120663170 | Type: Residential | Location: |
3837 SOUTHWIND AVE |
|
| Building Name/Occupant: |
|
OKLAHOMA CITY |
||
| Owner Name 1: | HOBSON JOANNA |
Parcel PIN#: |
1870-12-066-3170 |
|
| Owner Name 2: | 1/4 section #: |
1870 |
||
| Owner Name 3: | Parent Acct: |
|
||
| Billing Address: | 3837 SOUTHWIND AVE | Tax District: |
|
|
| City, State, Zip | OKLAHOMA CITY, OK 73179-3834 | School System: |
Western Heights #41 |
|
|
Country: (If noted) |
Land Size: |
0.0785 Acres |
||
|
Land Value: 15,322 |
|
|||
|
Sect 18-T11N-R4W Qtr SE |
WINDS WEST
Block
011
Lot
010
|
|||
| Full Legal Description: WINDS WEST 011 010 |
| Photo & Sketch (if available) | Comp Sales (ordered by relevancy) |
|
||||||||||||||||||
|
||||||||||||||||||||
| Value History (*The County Treasurer 405-713-1300 posts & collects actual tax amounts. Contact information HERE) | |||||||||||||
|---|---|---|---|---|---|---|---|---|---|---|---|---|---|
| Year | Market Value | Taxable Mkt Value | Gross Assessed | Exemption | Net Assessed | Millage | Est. Tax | Tax Savings | |||||
|
2025 |
127,500 |
89,304 |
9,823 |
1,000 |
8,823 |
117.97 |
$1,041 |
$614 |
|||||
|
2024 |
128,000 |
86,703 |
9,536 |
1,000 |
8,536 |
118.45 |
$1,011 |
$657 |
|||||
|
2023 |
127,500 |
84,178 |
9,258 |
1,000 |
8,258 |
116.31 |
$961 |
$671 |
|||||
|
2022 |
95,500 |
81,727 |
8,989 |
1,000 |
7,989 |
117.67 |
$940 |
$296 |
|||||
|
2021 |
89,000 |
79,347 |
8,727 |
1,000 |
7,727 |
120.74 |
$933 |
$249 |
|||||
| Property Account Status/Adjustments/Exemptions | ||
|---|---|---|
| Account # | Exemption Description | Amount |
|
R120663170 |
3% Cap Homestead |
0 |
|
R120663170 |
Homestead |
1,000 |
| Property Deed Transaction History (Recorded in the County Clerk's Office) | |||||||
|---|---|---|---|---|---|---|---|
| Date | Type | Book | Page | Price | Grantor | Grantee | |
|
3/6/2003 |
|
Deeds |
$66,000 |
KARR AKE KATHRYN E |
HOBSON JOANNA |
||
|
2/10/2003 |
|
Deeds |
$0 |
MCENTIRE KATHRYN E |
KARR AKE KATHRYN E |
||
|
11/5/1987 |
|
Historical |
$35,000 |
SECRETARY OF HOUSING |
MCENTIRE KATHRYN E |
||
|
3/11/1987 |
|
Historical |
$0 |
SOUTH WIND PROPERTIES INC |
SECRETARY OF HOUSING |
||
|
8/1/1985 |
|
Historical |
$0 |
|
SOUTH WIND PROPERTIES INC |
||
| Last Mailed Notice of Value (N.O.V.) Information/History | ||||||||
|---|---|---|---|---|---|---|---|---|
| Year | Date | Market Value | Taxable Market Value | Gross Assessed | Exemption | Net Assessed | ||
|
2026 |
02/06/2026 |
128,000 |
91,983 |
10,117 |
1,000 |
9,117 |
||
|
2025 |
01/31/2025 |
127,500 |
89,304 |
9,823 |
1,000 |
8,823 |
||
|
2024 |
01/22/2024 |
128,000 |
86,703 |
9,536 |
1,000 |
8,536 |
||
|
2023 |
01/23/2023 |
127,500 |
84,178 |
9,258 |
1,000 |
8,258 |
||
|
2022 |
02/22/2022 |
95,500 |
81,727 |
8,988 |
1,000 |
7,988 |
||
| Property Building Permit History | |||||||||||
|---|---|---|---|---|---|---|---|---|---|---|---|
| Issued | Permit # | Provided by | Bldg # | Description | Est Construction Cost | Status | |||||
| No Building Permit records returned. | |||||||||||
| Click button on building number to access detailed information: | ||||||
|---|---|---|---|---|---|---|
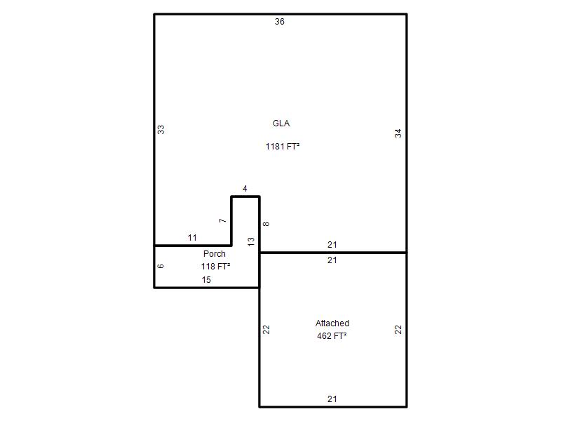
| Bldg # | Vacant/Improved Land | Bldg Description | Year Built | SqFt | # Stories | |
|
1 |
Improved |
Townhouse One Story |
1983 |
1,181 |
1 Stories |
|