|
|
|
| Larry Stein Oklahoma County Assessor (405) 713-1200 - Public Access System |
|
|
|
|
|
|
| Real Property Display - Screen Produced 3/17/2026 4:15:00 AM | ||||
|---|---|---|---|---|
| Account: R120663830 | Type: Residential | Location: |
3701 SUMMERWIND CT |
|
| Building Name/Occupant: |
|
OKLAHOMA CITY |
||
| Owner Name 1: | LONG PAMELA G |
Parcel PIN#: |
1870-12-066-3830 |
|
| Owner Name 2: | 1/4 section #: |
1870 |
||
| Owner Name 3: | Parent Acct: |
|
||
| Billing Address: | 3701 SUMMERWIND CT | Tax District: |
|
|
| City, State, Zip | OKLAHOMA CITY, OK 73179-3839 | School System: |
Western Heights #41 |
|
|
Country: (If noted) |
Land Size: |
0.2185 Acres |
||
|
Land Value: 42,859 |
|
|||
|
Sect 18-T11N-R4W Qtr SE |
WINDS WEST
Block
015
Lot
008
|
|||
| Full Legal Description: WINDS WEST 015 008 |
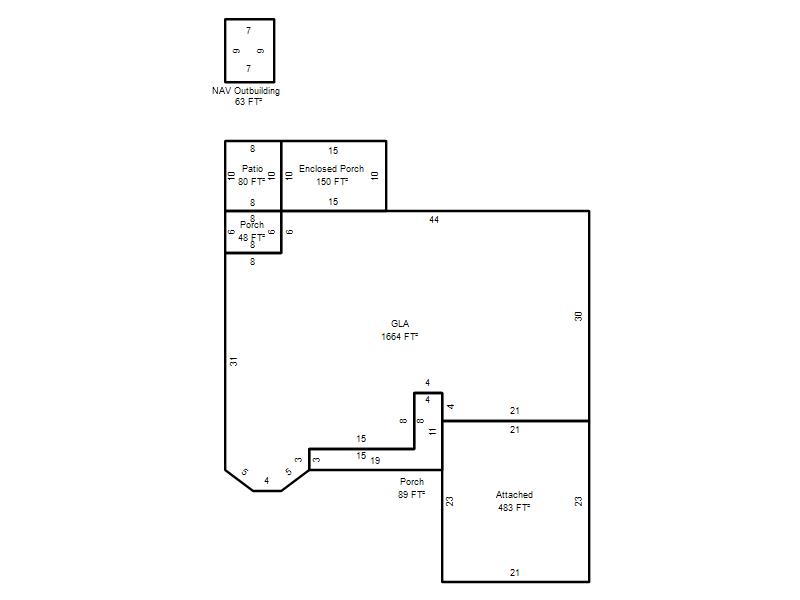
| Photo & Sketch (if available) | Comp Sales (ordered by relevancy) |
|
||||||||||||||||||
|
||||||||||||||||||||
| Value History (*The County Treasurer 405-713-1300 posts & collects actual tax amounts. Contact information HERE) | |||||||||||||
|---|---|---|---|---|---|---|---|---|---|---|---|---|---|
| Year | Market Value | Taxable Mkt Value | Gross Assessed | Exemption | Net Assessed | Millage | Est. Tax | Tax Savings | |||||
|
2025 |
238,500 |
178,076 |
19,587 |
1,000 |
18,587 |
117.97 |
$2,193 |
$902 |
|||||
|
2024 |
223,000 |
172,890 |
19,017 |
1,000 |
18,017 |
118.45 |
$2,134 |
$771 |
|||||
|
2023 |
202,000 |
167,855 |
18,463 |
0 |
18,463 |
116.31 |
$2,148 |
$437 |
|||||
|
2022 |
183,000 |
159,862 |
17,584 |
0 |
17,584 |
117.67 |
$2,069 |
$299 |
|||||
|
2021 |
161,000 |
152,250 |
16,747 |
0 |
16,747 |
120.74 |
$2,022 |
$116 |
|||||
| Property Account Status/Adjustments/Exemptions | ||||||
|---|---|---|---|---|---|---|
| Account # | Exemption Description | Amount | ||||
| No adjustment/exemption records returned. | ||||||
| Property Deed Transaction History (Recorded in the County Clerk's Office) | ||||||||||
|---|---|---|---|---|---|---|---|---|---|---|
| Date | Type | Book | Page | Price | Grantor | Grantee | ||||
|
6/25/2015 |
|
Deeds |
$132,000 |
SCOTT COURTNEY D JR & SUSAN R |
LONG PAMELA G |
|||||
|
11/30/2010 |
|
Deeds |
$110,000 |
DREIER KAYE L |
SCOTT COURTNEY D JR & SUSAN R |
|||||
|
3/18/1999 |
|
Historical |
$0 |
DREIER FRASER J |
DREIER KAYE L |
|||||
|
9/14/1988 |
|
Historical |
$50,000 |
AMERICAN SAVINGS |
DREIER FRASER J |
|||||
|
5/27/1988 |
|
Historical |
$65,000 |
MYERS STEVE C & DEBRA K |
AMERICAN SAVINGS |
|||||
| Last Mailed Notice of Value (N.O.V.) Information/History | ||||||||
|---|---|---|---|---|---|---|---|---|
| Year | Date | Market Value | Taxable Market Value | Gross Assessed | Exemption | Net Assessed | ||
|
2026 |
02/06/2026 |
234,500 |
183,418 |
20,175 |
1,000 |
19,175 |
||
|
2025 |
01/31/2025 |
238,500 |
178,076 |
19,587 |
1,000 |
18,587 |
||
|
2024 |
01/22/2024 |
223,000 |
172,890 |
19,017 |
1,000 |
18,017 |
||
|
2023 |
01/23/2023 |
202,000 |
167,855 |
18,463 |
0 |
18,463 |
||
|
2022 |
02/22/2022 |
183,000 |
159,862 |
17,584 |
0 |
17,584 |
||
| Property Building Permit History | |||||||||||
|---|---|---|---|---|---|---|---|---|---|---|---|
| Issued | Permit # | Provided by | Bldg # | Description | Est Construction Cost | Status | |||||
| No Building Permit records returned. | |||||||||||
| Click button on building number to access detailed information: | ||||||
|---|---|---|---|---|---|---|
| Bldg # | Vacant/Improved Land | Bldg Description | Year Built | SqFt | # Stories | |
|
1 |
Improved |
Ranch 1 Story |
1983 |
1,664 |
1 Stories |
|