|
|
|
| Larry Stein Oklahoma County Assessor (405) 713-1200 - Public Access System |
|
|
|
|
|
|
| Real Property Display - Screen Produced 3/12/2026 1:54:18 PM | ||||
|---|---|---|---|---|
| Account: R168652990 | Type: Industrial | Location: |
5101 S COUNCIL RD, Unit 100 |
|
| Building Name/Occupant: |
REEL POWER/ AMERICAN TIRE DISTRIBUTORS |
OKLAHOMA CITY |
||
| Owner Name 1: | STAG 5101 SOUTH COUNCIL ROAD LLC |
Parcel PIN#: |
1873-16-865-2990 |
|
| Owner Name 2: | 1/4 section #: |
1873 |
||
| Owner Name 3: | Parent Acct: |
|
||
| Billing Address: | 1 FEDERAL ST FL 23 | Tax District: |
|
|
| City, State, Zip | BOSTON, MA 02110-2031 | School System: |
Western Heights #41 |
|
|
Country: (If noted) |
Land Size: |
25.5728 Acres |
||
|
Land Value: 2,441,152 |
|
|||
|
Sect 19-T11N-R4W Qtr NE |
MUSTANG TOWNSHIP
Block
000
Lot
000
|
|||
| Full Legal Description: MUSTANG TOWNSHIP 000 000 PT NE4 SEC 19 11N 4W BEG 1210.87FT W OF SE/C NE4 TH NE477.27FT TH NELY ALONG A CURVE 547.10FT ELY108.44FT NE94.97FT N381.25FT NE82.02FT N382.03FT W950.04FT SW165.83FT SWLY175.50FT TH S TO S LINE NE4 TH E TO BEG EX BEG 813.47FT N & 114.83FT W OF SE/C NE4 TH SW20.81FT RIGHT ON CURVE NW45.88FT NW127.60FT RIGHT ON CURVE NW39.67FT NW33.07FT LEFT ON CURVE NW58.16FT NW384.37FT RIGHT ON CURVE NW51.55FT NW162.40FT LEFT ON CURVE SW103.88FT RIGHT ON CURVE SW156.37FT SW245.33FT N100.73FT NE175.50FT NE165.83FT E950.04FT S381.93FT SW82.02FT S53.67FT TO BEG & EX A TR BEG 1318.83FT E OF SW/C NE4 TH E107.71FT NE102.64FT RIGHT ON CURVE NW192.88FT S75.41FT TO BEG CONT .24ACRS MORE OR LESS |
| No comparable sales report available. | ||||||||||||||||||||||
|
||||||||||||||||||||||
| Value History (*The County Treasurer 405-713-1300 posts & collects actual tax amounts. Contact information HERE) | |||||||||||||
|---|---|---|---|---|---|---|---|---|---|---|---|---|---|
| Year | Market Value | Taxable Mkt Value | Gross Assessed | Exemption | Net Assessed | Millage | Est. Tax | Tax Savings | |||||
|
2025 |
17,114,346 |
14,518,481 |
1,597,032 |
0 |
1,597,032 |
117.97 |
$188,402 |
$33,686 |
|||||
|
2024 |
13,827,125 |
13,827,125 |
1,520,983 |
0 |
1,520,983 |
118.45 |
$180,161 |
$0 |
|||||
|
2023 |
14,184,571 |
13,327,700 |
1,466,046 |
0 |
1,466,046 |
116.31 |
$170,516 |
$10,963 |
|||||
|
2022 |
14,185,474 |
12,693,048 |
1,396,234 |
0 |
1,396,234 |
117.67 |
$164,295 |
$19,318 |
|||||
|
2021 |
12,088,618 |
12,088,618 |
1,329,747 |
0 |
1,329,747 |
120.74 |
$160,554 |
$0 |
|||||
| Property Account Status/Adjustments/Exemptions | ||
|---|---|---|
| Account # | Exemption Description | Amount |
|
R168652990 |
5% Capped Account |
0 |
| Property Deed Transaction History (Recorded in the County Clerk's Office) | |||||||
|---|---|---|---|---|---|---|---|
| Date | Type | Book | Page | Price | Grantor | Grantee | |
|
5/8/2015 |
|
Deeds |
$12,100,000 |
BCP OKC LLC |
STAG 5101 SOUTH COUNCIL ROAD LLC |
||
|
7/15/2014 |
|
Deeds |
$1,250,000 |
ANDERSON KEITH L TRS ANDERSON KEITH L LIVING TRUST |
BCP OKC LLC |
||
|
10/12/2009 |
|
Hmstd Off & |
$0 |
ANDERSON KEITH L |
ANDERSON KEITH L TRS ANDERSON KEITH L LIVING TRUST |
||
|
8/21/2005 |
|
Deeds |
$790,000 |
COUNCIL RD PROPERTY CO LLC |
ANDERSON KEITH L |
||
|
11/23/1998 |
|
Historical |
$562,500 |
|
COUNCIL RD PROPERTY CO LLC |
||
| Last Mailed Notice of Value (N.O.V.) Information/History | ||||||||
|---|---|---|---|---|---|---|---|---|
| Year | Date | Market Value | Taxable Market Value | Gross Assessed | Exemption | Net Assessed | ||
|
2025 |
03/28/2025 |
17,114,346 |
14,518,481 |
1,597,032 |
0 |
1,597,032 |
||
|
2024 |
03/12/2024 |
13,827,125 |
13,827,125 |
1,520,983 |
0 |
1,520,983 |
||
|
2023 |
03/13/2023 |
14,184,571 |
13,327,700 |
1,466,046 |
0 |
1,466,046 |
||
|
2022 |
03/09/2022 |
14,185,474 |
12,693,048 |
1,396,234 |
0 |
1,396,234 |
||
|
2017 |
03/03/2017 |
12,070,136 |
12,070,136 |
1,327,714 |
|
|
||
| Property Building Permit History | ||||||
|---|---|---|---|---|---|---|
| Issued | Permit # | Provided by | Bldg # | Description | Est Construction Cost | Status |
|
4/6/2016 |
10484172 |
OKLAHOMA CITY |
1 |
Remodeled |
500,000 |
Inactive |
|
9/23/2014 |
10466121 |
OKLAHOMA CITY |
1 |
Commercial |
8,500,000 |
Inactive |
| Click button on building number to access detailed information: | ||||||
|---|---|---|---|---|---|---|
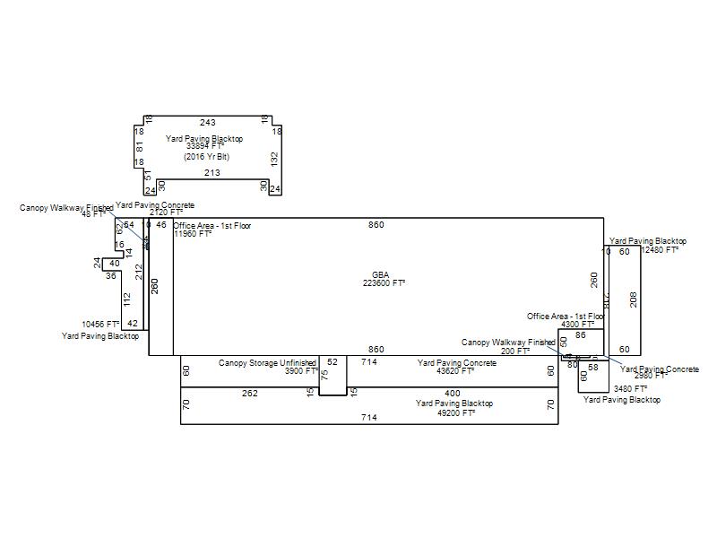
| Bldg # | Vacant/Improved Land | Bldg Description | Year Built | SqFt | # Stories | |
|
1 |
Improved |
Distribution Warehouse |
2015 |
223,600 |
1 Stories |
|