|
|
|
| Larry Stein Oklahoma County Assessor (405) 713-1200 - Public Access System |
|
|
|
|
|
|
| Real Property Display - Screen Produced 3/14/2026 10:57:51 AM | ||||
|---|---|---|---|---|
| Account: R197911060 | Type: Residential | Location: |
16783 SE 18TH ST |
|
| Building Name/Occupant: |
|
CHOCTAW |
||
| Owner Name 1: | BEST MICHAEL DEE & MARY LYNNE TRS |
Parcel PIN#: |
1025-19-791-1060 |
|
| Owner Name 2: | BEST MICHAEL D & MARY L JOINT REV LIV TRUST | 1/4 section #: |
1025 |
|
| Owner Name 3: | Parent Acct: |
|
||
| Billing Address: | 16783 SE 18TH ST | Tax District: |
|
|
| City, State, Zip | CHOCTAW, OK 73020-6471 | School System: |
Choctaw #4 |
|
|
Country: (If noted) |
Land Size: |
0.9800 Acres |
||
|
Land Value: 32,340 |
|
|||
|
Sect 7-T11N-R1E Qtr NE |
MORAN ACRES REPLAT
Block
002
Lot
005
|
|||
| Full Legal Description: MORAN ACRES REPLAT BLK 002 LOT 005 |
| No comparable sales report available. | ||||||||||||||||||||||
|
||||||||||||||||||||||
| Value History (*The County Treasurer 405-713-1300 posts & collects actual tax amounts. Contact information HERE) | |||||||||||||
|---|---|---|---|---|---|---|---|---|---|---|---|---|---|
| Year | Market Value | Taxable Mkt Value | Gross Assessed | Exemption | Net Assessed | Millage | Est. Tax | Tax Savings | |||||
|
2025 |
357,381 |
230,856 |
25,393 |
1,000 |
24,393 |
117.21 |
$2,859 |
$1,749 |
|||||
|
2024 |
297,044 |
224,133 |
24,654 |
1,000 |
23,654 |
116.35 |
$2,752 |
$1,050 |
|||||
|
2023 |
296,765 |
217,605 |
23,936 |
1,000 |
22,936 |
118.06 |
$2,708 |
$1,146 |
|||||
|
2022 |
289,071 |
211,267 |
23,238 |
1,000 |
22,238 |
116.14 |
$2,583 |
$1,110 |
|||||
|
2021 |
205,114 |
205,114 |
22,562 |
1,000 |
21,562 |
116.17 |
$2,505 |
$116 |
|||||
| Property Account Status/Adjustments/Exemptions | ||
|---|---|---|
| Account # | Exemption Description | Amount |
|
R197911060 |
3% Cap Homestead |
0 |
|
R197911060 |
Homestead |
1,000 |
| Property Deed Transaction History (Recorded in the County Clerk's Office) | |||||||
|---|---|---|---|---|---|---|---|
| Date | Type | Book | Page | Price | Grantor | Grantee | |
|
10/24/2023 |
|
Deeds |
$0 |
BEST MICHAEL D & MARY L |
BEST MICHAEL DEE & MARY LYNNE TRS |
||
|
5/1/1979 |
|
Historical |
$0 |
|
BEST MICHAEL D & MARY L |
||
| Last Mailed Notice of Value (N.O.V.) Information/History | ||||||||
|---|---|---|---|---|---|---|---|---|
| Year | Date | Market Value | Taxable Market Value | Gross Assessed | Exemption | Net Assessed | ||
|
2026 |
02/06/2026 |
320,099 |
237,781 |
26,155 |
1,000 |
25,155 |
||
|
2025 |
01/31/2025 |
357,381 |
230,856 |
25,393 |
1,000 |
24,393 |
||
|
2024 |
01/22/2024 |
297,044 |
224,133 |
24,654 |
1,000 |
23,654 |
||
|
2023 |
01/23/2023 |
296,765 |
217,605 |
23,936 |
1,000 |
22,936 |
||
|
2022 |
02/22/2022 |
289,071 |
211,267 |
23,238 |
1,000 |
22,238 |
||
| Property Building Permit History | |||||||||||
|---|---|---|---|---|---|---|---|---|---|---|---|
| Issued | Permit # | Provided by | Bldg # | Description | Est Construction Cost | Status | |||||
| No Building Permit records returned. | |||||||||||
| Click button on building number to access detailed information: | ||||||
|---|---|---|---|---|---|---|
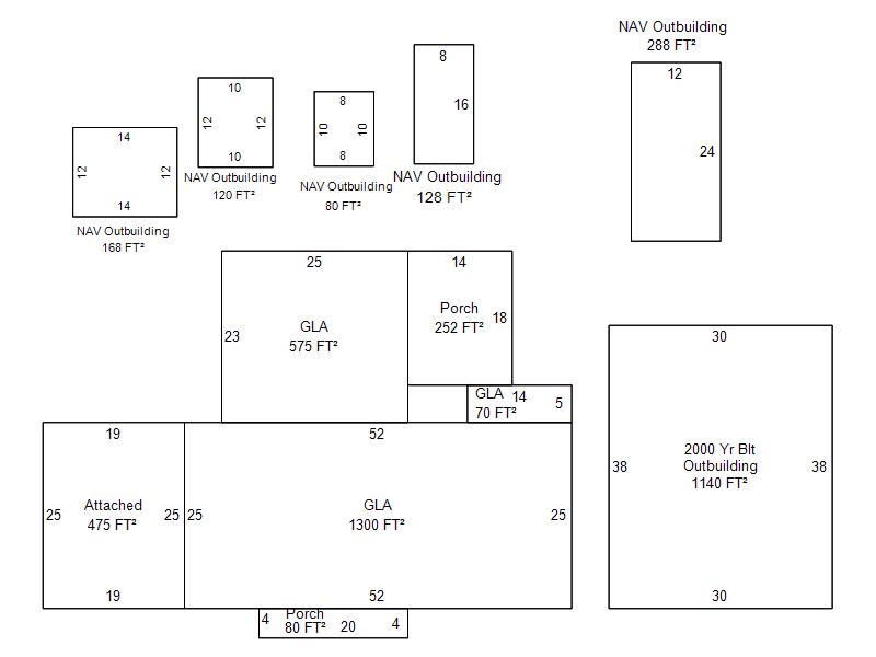
| Bldg # | Vacant/Improved Land | Bldg Description | Year Built | SqFt | # Stories | |
|
1 |
Improved |
Ranch 1 Story |
1975 |
1,945 |
1 Stories |
|
|
2 |
Improved |
Ranch 1 Story |
1989 |
744 |
1 Stories |
|