|
|
|
| Larry Stein Oklahoma County Assessor (405) 713-1200 - Public Access System |
|
|
|
|
|
|
| Real Property Display - Screen Produced 3/15/2026 7:29:08 AM | ||||
|---|---|---|---|---|
| Account: R206731590 | Type: Residential | Location: |
4712 MILLSTONE DR |
|
| Building Name/Occupant: |
|
OKLAHOMA CITY |
||
| Owner Name 1: | SPARKMAN STEPHEN T & HEATHER R |
Parcel PIN#: |
1876-20-673-1590 |
|
| Owner Name 2: | 1/4 section #: |
1876 |
||
| Owner Name 3: | Parent Acct: |
1876-16-865-3000 |
||
| Billing Address: | PO BOX 1054 | Tax District: |
|
|
| City, State, Zip | MUSTANG, OK 73064-8054 | School System: |
Mustang #69 |
|
|
Country: (If noted) |
Land Size: |
0.2011 Acres |
||
|
Land Value: 42,924 |
|
|||
|
Sect 19-T11N-R4W Qtr NW |
FIELDSTONE SEC 1
Block
004
Lot
004
|
|||
| Full Legal Description: FIELDSTONE SEC 1 004 004 |
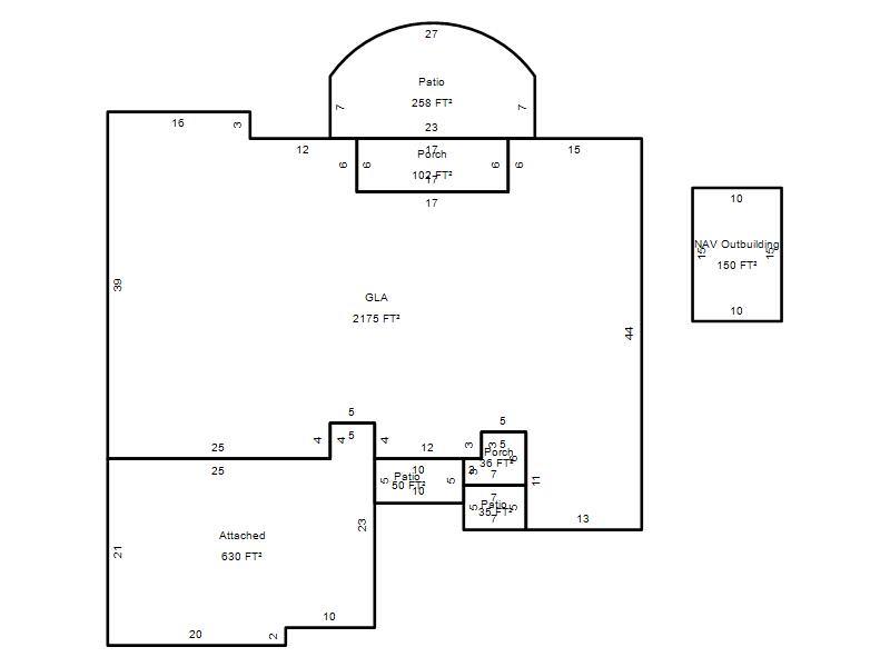
| Photo & Sketch (if available) | Comp Sales (ordered by relevancy) |
|
||||||||||||||||||
|
||||||||||||||||||||
| Value History (*The County Treasurer 405-713-1300 posts & collects actual tax amounts. Contact information HERE) | |||||||||||||
|---|---|---|---|---|---|---|---|---|---|---|---|---|---|
| Year | Market Value | Taxable Mkt Value | Gross Assessed | Exemption | Net Assessed | Millage | Est. Tax | Tax Savings | |||||
|
2025 |
317,500 |
251,561 |
27,670 |
1,000 |
26,670 |
125.59 |
$3,350 |
$1,037 |
|||||
|
2024 |
286,000 |
244,234 |
26,865 |
1,000 |
25,865 |
124.15 |
$3,211 |
$695 |
|||||
|
2023 |
300,000 |
237,121 |
26,082 |
1,000 |
25,082 |
121.69 |
$3,052 |
$963 |
|||||
|
2022 |
253,000 |
230,215 |
25,323 |
1,000 |
24,323 |
123.46 |
$3,003 |
$433 |
|||||
|
2021 |
232,000 |
223,510 |
24,586 |
1,000 |
23,586 |
122.90 |
$2,899 |
$238 |
|||||
| Property Account Status/Adjustments/Exemptions | ||
|---|---|---|
| Account # | Exemption Description | Amount |
|
R206731590 |
3% Cap Homestead |
0 |
|
R206731590 |
Homestead |
1,000 |
| Property Deed Transaction History (Recorded in the County Clerk's Office) | |||||||
|---|---|---|---|---|---|---|---|
| Date | Type | Book | Page | Price | Grantor | Grantee | |
|
9/7/2007 |
|
Deeds |
$186,000 |
FREEMAN HOMES INC |
SPARKMAN STEPHEN T & HEATHER R |
||
|
3/28/2006 |
|
Deeds |
$28,000 |
JDM DEVELOPMENT LLC |
FREEMAN HOMES INC |
||
| Last Mailed Notice of Value (N.O.V.) Information/History | ||||||||
|---|---|---|---|---|---|---|---|---|
| Year | Date | Market Value | Taxable Market Value | Gross Assessed | Exemption | Net Assessed | ||
|
2026 |
02/06/2026 |
298,000 |
259,107 |
28,501 |
1,000 |
27,501 |
||
|
2025 |
01/31/2025 |
317,500 |
251,561 |
27,670 |
1,000 |
26,670 |
||
|
2024 |
01/22/2024 |
286,000 |
244,234 |
26,865 |
1,000 |
25,865 |
||
|
2023 |
01/23/2023 |
300,000 |
237,121 |
26,082 |
1,000 |
25,082 |
||
|
2022 |
02/22/2022 |
253,000 |
230,215 |
25,323 |
1,000 |
24,323 |
||
| Property Building Permit History | ||||||
|---|---|---|---|---|---|---|
| Issued | Permit # | Provided by | Bldg # | Description | Est Construction Cost | Status |
|
3/31/2006 |
10322137 |
OKLAHOMA CITY |
1 |
Main Dwellin |
165,000 |
Inactive |
| Click button on building number to access detailed information: | ||||||
|---|---|---|---|---|---|---|
| Bldg # | Vacant/Improved Land | Bldg Description | Year Built | SqFt | # Stories | |
|
1 |
Improved |
Ranch 1 Story |
2006 |
2,175 |
1 Stories |
|