|
|
|
| Larry Stein Oklahoma County Assessor (405) 713-1200 - Public Access System |
|
|
|
|
|
|
| Real Property Display - Screen Produced 3/12/2026 11:33:31 PM | ||||
|---|---|---|---|---|
| Account: R208041130 | Type: Residential | Location: |
4605 HUNTER BLVD |
|
| Building Name/Occupant: |
|
OKLAHOMA CITY |
||
| Owner Name 1: | DEINHARDT VERNON A JR |
Parcel PIN#: |
1876-20-804-1130 |
|
| Owner Name 2: | 1/4 section #: |
1876 |
||
| Owner Name 3: | Parent Acct: |
1876-14-185-4000 |
||
| Billing Address: | 4605 HUNTER BLVD | Tax District: |
|
|
| City, State, Zip | OKLAHOMA CITY, OK 73179-7016 | School System: |
Mustang #69 |
|
|
Country: (If noted) |
Land Size: |
0.1666 Acres |
||
|
Land Value: 30,770 |
|
|||
|
Sect 19-T11N-R4W Qtr NW |
BRIGHTON POINTE PH I
Block
002
Lot
010
|
|||
| Full Legal Description: BRIGHTON POINTE PH I 002 010 |
| Photo & Sketch (if available) | Comp Sales (ordered by relevancy) |
|
||||||||||||||||||
|
||||||||||||||||||||
| Value History (*The County Treasurer 405-713-1300 posts & collects actual tax amounts. Contact information HERE) | |||||||||||||
|---|---|---|---|---|---|---|---|---|---|---|---|---|---|
| Year | Market Value | Taxable Mkt Value | Gross Assessed | Exemption | Net Assessed | Millage | Est. Tax | Tax Savings | |||||
|
2025 |
208,500 |
163,363 |
17,969 |
0 |
17,969 |
125.59 |
$2,257 |
$624 |
|||||
|
2024 |
207,500 |
155,584 |
17,113 |
0 |
17,113 |
124.15 |
$2,125 |
$709 |
|||||
|
2023 |
180,000 |
148,176 |
16,299 |
0 |
16,299 |
121.69 |
$1,983 |
$426 |
|||||
|
2022 |
162,500 |
141,120 |
15,523 |
0 |
15,523 |
123.46 |
$1,916 |
$290 |
|||||
|
2021 |
141,500 |
134,400 |
14,784 |
0 |
14,784 |
122.90 |
$1,817 |
$96 |
|||||
| Property Account Status/Adjustments/Exemptions | ||
|---|---|---|
| Account # | Exemption Description | Amount |
|
R208041130 |
5% Capped Account |
0 |
| Property Deed Transaction History (Recorded in the County Clerk's Office) | |||||||
|---|---|---|---|---|---|---|---|
| Date | Type | Book | Page | Price | Grantor | Grantee | |
|
2/16/2010 |
|
Deeds |
$118,000 |
RAUSCH COLEMAN HOMES OKC LLC |
DEINHARDT VERNON A JR |
||
|
5/11/2007 |
|
Mult Parcel |
$1,588,000 |
ERC LAND DEV GROUP LLC |
RAUSCH COLEMAN HOMES OKC LLC |
||
| Last Mailed Notice of Value (N.O.V.) Information/History | ||||||||
|---|---|---|---|---|---|---|---|---|
| Year | Date | Market Value | Taxable Market Value | Gross Assessed | Exemption | Net Assessed | ||
|
2026 |
02/06/2026 |
204,000 |
171,531 |
18,867 |
0 |
18,867 |
||
|
2025 |
01/31/2025 |
208,500 |
163,363 |
17,969 |
0 |
17,969 |
||
|
2024 |
01/22/2024 |
207,500 |
155,584 |
17,113 |
0 |
17,113 |
||
|
2023 |
01/23/2023 |
180,000 |
148,176 |
16,299 |
0 |
16,299 |
||
|
2022 |
02/22/2022 |
162,500 |
141,120 |
15,523 |
0 |
15,523 |
||
| Property Building Permit History | ||||||
|---|---|---|---|---|---|---|
| Issued | Permit # | Provided by | Bldg # | Description | Est Construction Cost | Status |
|
10/30/2009 |
10389742 |
OKLAHOMA CITY |
1 |
Main Dwellin |
100,000 |
Inactive |
| Click button on building number to access detailed information: | ||||||
|---|---|---|---|---|---|---|
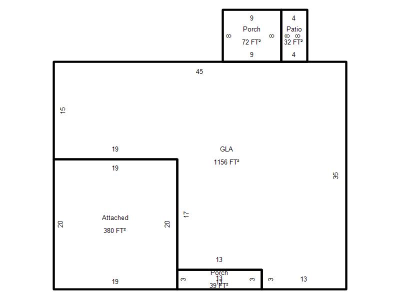
| Bldg # | Vacant/Improved Land | Bldg Description | Year Built | SqFt | # Stories | |
|
1 |
Improved |
Ranch 1 Story |
2010 |
1,156 |
1 Stories |
|