|
|
|
| Larry Stein Oklahoma County Assessor (405) 713-1200 - Public Access System |
|
|
|
|
|
|
| Real Property Display - Screen Produced 3/15/2026 7:38:59 AM | ||||
|---|---|---|---|---|
| Account: R210281650 | Type: Residential | Location: |
8516 SW 48TH ST |
|
| Building Name/Occupant: |
|
OKLAHOMA CITY |
||
| Owner Name 1: | DEMERS ERIC JOSEPH ALPHONSE |
Parcel PIN#: |
1876-21-028-1650 |
|
| Owner Name 2: | DEMERS LEAH JACLYN KERR | 1/4 section #: |
1876 |
|
| Owner Name 3: | Parent Acct: |
1876-16-865-3025 |
||
| Billing Address: | 8516 SW 48TH ST | Tax District: |
|
|
| City, State, Zip | OKLAHOMA CITY, OK 73179 | School System: |
Mustang #69 |
|
|
Country: (If noted) |
Land Size: |
0.1515 Acres |
||
|
Land Value: 29,040 |
|
|||
|
Sect 19-T11N-R4W Qtr NW |
BRIGHTON POINTE PH II
Block
013
Lot
004
|
|||
| Full Legal Description: BRIGHTON POINTE PH II 013 004 |
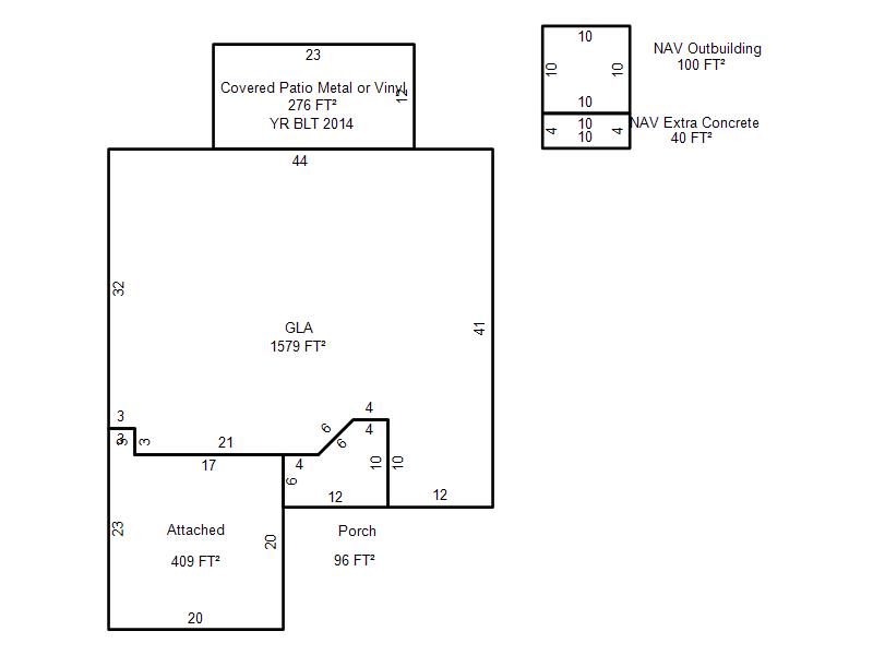
| Photo & Sketch (if available) | Comp Sales (ordered by relevancy) |
|
||||||||||||||||||
|
||||||||||||||||||||
| Value History (*The County Treasurer 405-713-1300 posts & collects actual tax amounts. Contact information HERE) | |||||||||||||
|---|---|---|---|---|---|---|---|---|---|---|---|---|---|
| Year | Market Value | Taxable Mkt Value | Gross Assessed | Exemption | Net Assessed | Millage | Est. Tax | Tax Savings | |||||
|
2025 |
253,500 |
245,306 |
26,982 |
0 |
26,982 |
125.59 |
$3,389 |
$113 |
|||||
|
2024 |
247,000 |
233,625 |
25,698 |
0 |
25,698 |
124.15 |
$3,190 |
$183 |
|||||
|
2023 |
222,500 |
222,500 |
24,475 |
0 |
24,475 |
121.69 |
$2,978 |
$0 |
|||||
|
2022 |
200,500 |
167,580 |
18,433 |
0 |
18,433 |
123.46 |
$2,276 |
$447 |
|||||
|
2021 |
170,000 |
159,600 |
17,556 |
0 |
17,556 |
122.90 |
$2,158 |
$141 |
|||||
| Property Account Status/Adjustments/Exemptions | ||
|---|---|---|
| Account # | Exemption Description | Amount |
|
R210281650 |
5% Capped Account |
0 |
| Property Deed Transaction History (Recorded in the County Clerk's Office) | |||||||
|---|---|---|---|---|---|---|---|
| Date | Type | Book | Page | Price | Grantor | Grantee | |
|
5/16/2022 |
|
Deeds |
$0 |
DEMERS ERIC JOSEPH ALPHONSE |
DEMERS ERIC JOSEPH ALPHONSE |
||
|
5/6/2022 |
|
Deeds |
$225,000 |
TALBERT JESSICA T & BRADLEY R |
DEMERS ERIC JOSEPH ALPHONSE |
||
|
5/19/2017 |
|
Deeds |
$151,500 |
MILLER DAVID G & TRACY L |
TALBERT JESSICA T & BRADLEY R |
||
|
7/31/2013 |
|
Deeds |
$139,000 |
RAUSCH COLEMAN HOMES OKC LLC |
MILLER DAVID G & TRACY L |
||
|
9/30/2010 |
|
Mult Parcel |
$820,000 |
ERC LAND DEVELOPMENT GROUP LLC |
RAUSCH COLEMAN HOMES OKC LLC |
||
| Last Mailed Notice of Value (N.O.V.) Information/History | ||||||||
|---|---|---|---|---|---|---|---|---|
| Year | Date | Market Value | Taxable Market Value | Gross Assessed | Exemption | Net Assessed | ||
|
2026 |
02/06/2026 |
251,000 |
251,000 |
27,610 |
0 |
27,610 |
||
|
2025 |
01/31/2025 |
253,500 |
245,306 |
26,982 |
0 |
26,982 |
||
|
2024 |
01/22/2024 |
247,000 |
233,625 |
25,698 |
0 |
25,698 |
||
|
2023 |
01/23/2023 |
222,500 |
222,500 |
24,475 |
0 |
24,475 |
||
|
2022 |
02/22/2022 |
200,500 |
167,580 |
18,433 |
0 |
18,433 |
||
| Property Building Permit History | ||||||
|---|---|---|---|---|---|---|
| Issued | Permit # | Provided by | Bldg # | Description | Est Construction Cost | Status |
|
3/20/2013 |
10451917 |
OKLAHOMA CITY |
1 |
Other |
100,000 |
Inactive |
| Click button on building number to access detailed information: | ||||||
|---|---|---|---|---|---|---|
| Bldg # | Vacant/Improved Land | Bldg Description | Year Built | SqFt | # Stories | |
|
1 |
Improved |
Ranch 1 Story |
2013 |
1,579 |
1 Stories |
|