|
|
|
| Larry Stein Oklahoma County Assessor (405) 713-1200 - Public Access System |
|
|
|
|
|
|
| Real Property Display - Screen Produced 3/15/2026 5:23:30 AM | ||||
|---|---|---|---|---|
| Account: R113443945 | Type: Residential | Location: |
2928 SW 51ST ST |
|
| Building Name/Occupant: |
|
OKLAHOMA CITY |
||
| Owner Name 1: | GARCIA NORMA L |
Parcel PIN#: |
1893-11-344-3945 |
|
| Owner Name 2: | 1/4 section #: |
1893 |
||
| Owner Name 3: | Parent Acct: |
|
||
| Billing Address: | 215 SE 26TH ST | Tax District: |
|
|
| City, State, Zip | OKLAHOMA CITY, OK 73129 | School System: |
Oklahoma City #89 |
|
|
Country: (If noted) |
Land Size: |
0.2138 Acres |
||
|
Land Value: 15,830 |
|
|||
|
Sect 24-T11N-R4W Qtr NE |
ROGER GIVENS 2ND AIRLINE
Block
015
Lot
003
|
|||
| Full Legal Description: ROGER GIVENS 2ND AIRLINE 015 003 |
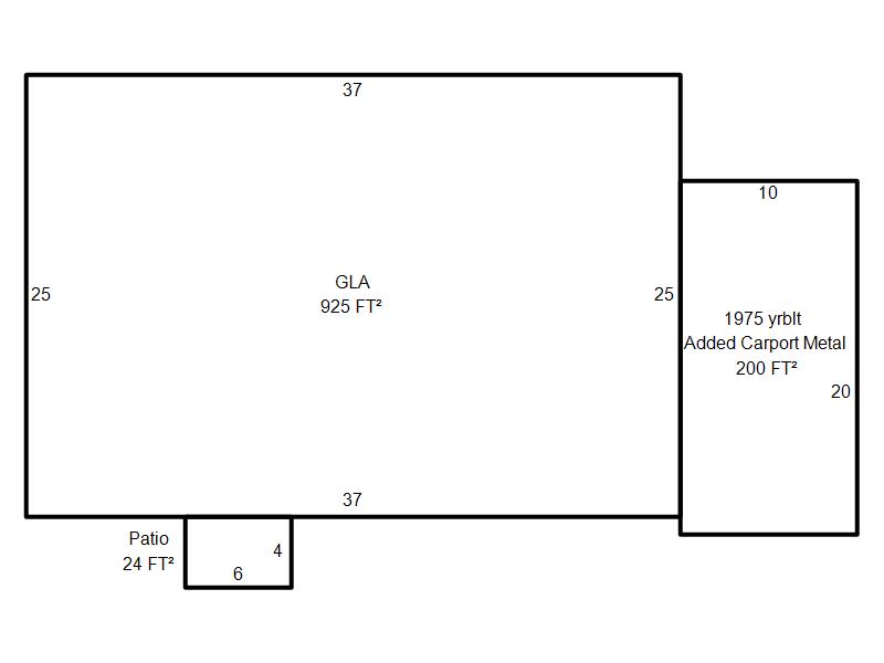
| Photo & Sketch (if available) | Comp Sales (ordered by relevancy) |
|
||||||||||||||||||
|
||||||||||||||||||||
| Value History (*The County Treasurer 405-713-1300 posts & collects actual tax amounts. Contact information HERE) | |||||||||||||
|---|---|---|---|---|---|---|---|---|---|---|---|---|---|
| Year | Market Value | Taxable Mkt Value | Gross Assessed | Exemption | Net Assessed | Millage | Est. Tax | Tax Savings | |||||
|
2025 |
86,000 |
71,193 |
7,830 |
0 |
7,830 |
119.02 |
$932 |
$194 |
|||||
|
2024 |
77,500 |
67,803 |
7,458 |
0 |
7,458 |
119.70 |
$893 |
$128 |
|||||
|
2023 |
67,500 |
64,575 |
7,103 |
0 |
7,103 |
118.33 |
$841 |
$38 |
|||||
|
2022 |
61,500 |
61,500 |
6,765 |
0 |
6,765 |
112.69 |
$762 |
$0 |
|||||
|
2021 |
51,500 |
26,911 |
2,959 |
0 |
2,959 |
112.29 |
$332 |
$304 |
|||||
| Property Account Status/Adjustments/Exemptions | ||
|---|---|---|
| Account # | Exemption Description | Amount |
|
R113443945 |
5% Capped Account |
0 |
| Property Deed Transaction History (Recorded in the County Clerk's Office) | ||||||||||
|---|---|---|---|---|---|---|---|---|---|---|
| Date | Type | Book | Page | Price | Grantor | Grantee | ||||
|
6/14/2021 |
|
Other |
$0 |
BLAIR LOUISA REV TRUST |
GARCIA NORMA L |
|||||
|
10/26/2004 |
|
Deeds |
$0 |
BEDFORD LOUISE |
BLAIR LOUISA REV TRUST |
|||||
|
4/8/1998 |
|
Hmstd Off & |
$0 |
BEDFORD RAYMOND A |
BEDFORD LOUISE |
|||||
|
9/20/1996 |
|
Historical |
$7,500 |
BEDFORD LOUISA |
BEDFORD RAYMOND A |
|||||
|
10/30/1987 |
|
Historical |
$0 |
BEDFORD JAY & LOUISA |
BEDFORD LOUISA |
|||||
| Last Mailed Notice of Value (N.O.V.) Information/History | ||||||||
|---|---|---|---|---|---|---|---|---|
| Year | Date | Market Value | Taxable Market Value | Gross Assessed | Exemption | Net Assessed | ||
|
2026 |
02/06/2026 |
88,500 |
74,752 |
8,222 |
0 |
8,222 |
||
|
2025 |
01/31/2025 |
86,000 |
71,193 |
7,830 |
0 |
7,830 |
||
|
2024 |
01/22/2024 |
77,500 |
67,803 |
7,458 |
0 |
7,458 |
||
|
2023 |
01/23/2023 |
67,500 |
64,575 |
7,103 |
0 |
7,103 |
||
|
2022 |
02/22/2022 |
61,500 |
61,500 |
6,765 |
0 |
6,765 |
||
| Property Building Permit History | |||||||||||
|---|---|---|---|---|---|---|---|---|---|---|---|
| Issued | Permit # | Provided by | Bldg # | Description | Est Construction Cost | Status | |||||
| No Building Permit records returned. | |||||||||||
| Click button on building number to access detailed information: | ||||||
|---|---|---|---|---|---|---|
| Bldg # | Vacant/Improved Land | Bldg Description | Year Built | SqFt | # Stories | |
|
1 |
Improved |
Ranch 1 Story |
1954 |
925 |
1 Stories |
|