|
|
|
| Larry Stein Oklahoma County Assessor (405) 713-1200 - Public Access System |
|
|
|
|
|
|
| Real Property Display - Screen Produced 3/17/2026 3:53:54 AM | ||||
|---|---|---|---|---|
| Account: R074506955 | Type: Residential | Location: |
2917 SW 62ND ST |
|
| Building Name/Occupant: |
|
OKLAHOMA CITY |
||
| Owner Name 1: | MATRIX REAL ESTATE LLC |
Parcel PIN#: |
1897-07-450-6955 |
|
| Owner Name 2: | 1/4 section #: |
1897 |
||
| Owner Name 3: | Parent Acct: |
|
||
| Billing Address: | 8520 S PENNSYLVANIA AVE | Tax District: |
|
|
| City, State, Zip | OKLAHOMA CITY, OK 73159 | School System: |
Oklahoma City #89 |
|
|
Country: (If noted) |
Land Size: |
0.1780 Acres |
||
|
Land Value: 26,357 |
|
|||
|
Sect 25-T11N-R4W Qtr NE |
HILLCREST HEIGHTS ADD
Block
094
Lot
041
|
|||
| Full Legal Description: HILLCREST HEIGHTS ADD 094 041 |
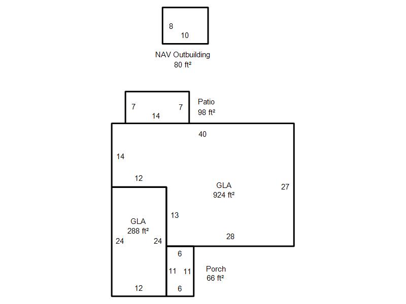
| Photo & Sketch (if available) | Comp Sales (ordered by relevancy) |
|
||||||||||||||||||
|
||||||||||||||||||||
| Value History (*The County Treasurer 405-713-1300 posts & collects actual tax amounts. Contact information HERE) | |||||||||||||
|---|---|---|---|---|---|---|---|---|---|---|---|---|---|
| Year | Market Value | Taxable Mkt Value | Gross Assessed | Exemption | Net Assessed | Millage | Est. Tax | Tax Savings | |||||
| No PropertyValuation records returned. | |||||||||||||
| Property Account Status/Adjustments/Exemptions | ||
|---|---|---|
| Account # | Exemption Description | Amount |
|
R074506955 |
5% Capped Account |
0 |
| Property Deed Transaction History (Recorded in the County Clerk's Office) | |||||||
|---|---|---|---|---|---|---|---|
| Date | Type | Book | Page | Price | Grantor | Grantee | |
|
5/1/2020 |
|
Hmstd Off & |
$0 |
POLITE PROPERTY MANAGEMENT LLC |
MATRIX REAL ESTATE LLC |
||
|
1/24/2017 |
|
Deeds |
$50,500 |
TRISTAN MARIA GUADALUPE |
POLITE PROPERTY MANAGEMENT LLC |
||
|
11/16/2005 |
|
Deeds |
$65,000 |
LANGLEY AILEEN O |
TRISTAN MARIA GUADALUPE |
||
|
5/1/1980 |
|
Historical |
$0 |
|
LANGLEY AILEEN O |
||
| Last Mailed Notice of Value (N.O.V.) Information/History | ||||||||
|---|---|---|---|---|---|---|---|---|
| Year | Date | Market Value | Taxable Market Value | Gross Assessed | Exemption | Net Assessed | ||
| No Notice of Value N.O.V. records returned. | ||||||||
| Property Building Permit History | ||||||
|---|---|---|---|---|---|---|
| Issued | Permit # | Provided by | Bldg # | Description | Est Construction Cost | Status |
|
5/16/2025 |
|
|
|
Remodeled |
|
Active |
| Click button on building number to access detailed information: | ||||||
|---|---|---|---|---|---|---|
| Bldg # | Vacant/Improved Land | Bldg Description | Year Built | SqFt | # Stories | |
|
1 |
Improved |
Ranch 1 Story |
1966 |
1,212 |
1 Stories |
|