|
|
|
| Larry Stein Oklahoma County Assessor (405) 713-1200 - Public Access System |
|
|
|
|
|
|
| Real Property Display - Screen Produced 3/17/2026 4:30:25 AM | ||||
|---|---|---|---|---|
| Account: R074507165 | Type: Residential | Location: |
2921 SW 63RD ST |
|
| Building Name/Occupant: |
|
OKLAHOMA CITY |
||
| Owner Name 1: | RAK PROPERTIES |
Parcel PIN#: |
1897-07-450-7165 |
|
| Owner Name 2: | 1/4 section #: |
1897 |
||
| Owner Name 3: | Parent Acct: |
|
||
| Billing Address: | PO BOX 12920 | Tax District: |
|
|
| City, State, Zip | OKLAHOMA CITY, OK 73157-2920 | School System: |
Oklahoma City #89 |
|
|
Country: (If noted) |
Land Size: |
0.1591 Acres |
||
|
Land Value: 23,562 |
|
|||
|
Sect 25-T11N-R4W Qtr NE |
HILLCREST HEIGHTS ADD
Block
095
Lot
039
|
|||
| Full Legal Description: HILLCREST HEIGHTS ADD 095 039 |
| Photo & Sketch (if available) | Comp Sales (ordered by relevancy) |
|
||||||||||||||||||
|
||||||||||||||||||||
| Value History (*The County Treasurer 405-713-1300 posts & collects actual tax amounts. Contact information HERE) | |||||||||||||
|---|---|---|---|---|---|---|---|---|---|---|---|---|---|
| Year | Market Value | Taxable Mkt Value | Gross Assessed | Exemption | Net Assessed | Millage | Est. Tax | Tax Savings | |||||
|
2025 |
136,500 |
96,995 |
10,669 |
0 |
10,669 |
119.02 |
$1,270 |
$517 |
|||||
|
2024 |
110,000 |
92,377 |
10,160 |
0 |
10,160 |
119.70 |
$1,216 |
$232 |
|||||
|
2023 |
112,500 |
87,979 |
9,676 |
0 |
9,676 |
118.33 |
$1,145 |
$319 |
|||||
|
2022 |
103,500 |
83,790 |
9,216 |
0 |
9,216 |
112.69 |
$1,039 |
$244 |
|||||
|
2021 |
86,000 |
79,800 |
8,778 |
0 |
8,778 |
112.29 |
$986 |
$77 |
|||||
| Property Account Status/Adjustments/Exemptions | ||
|---|---|---|
| Account # | Exemption Description | Amount |
|
R074507165 |
5% Capped Account |
0 |
| Property Deed Transaction History (Recorded in the County Clerk's Office) | |||||||
|---|---|---|---|---|---|---|---|
| Date | Type | Book | Page | Price | Grantor | Grantee | |
|
5/11/2017 |
|
Deeds |
$62,000 |
BUCHANAN GLENDA M |
RAK PROPERTIES |
||
|
6/7/1996 |
|
Historical |
$38,500 |
MINTER STEVEN B & KAREN S |
BUCHANAN GLENDA M |
||
|
8/30/1990 |
|
Historical |
$38,000 |
PEAK DAVID R & KARRIE L |
MINTER STEVEN B & KAREN S |
||
|
2/25/1988 |
|
Historical |
$0 |
PEAK FLOYD OREL & BARBARA W |
PEAK DAVID R & KARRIE L |
||
|
6/1/1984 |
|
Historical |
$45,200 |
|
PEAK FLOYD OREL & BARBARA W |
||
| Last Mailed Notice of Value (N.O.V.) Information/History | ||||||||
|---|---|---|---|---|---|---|---|---|
| Year | Date | Market Value | Taxable Market Value | Gross Assessed | Exemption | Net Assessed | ||
|
2026 |
02/06/2026 |
134,500 |
101,844 |
11,202 |
0 |
11,202 |
||
|
2025 |
01/31/2025 |
136,500 |
96,995 |
10,669 |
0 |
10,669 |
||
|
2024 |
01/22/2024 |
110,000 |
92,377 |
10,160 |
0 |
10,160 |
||
|
2023 |
01/23/2023 |
112,500 |
87,979 |
9,676 |
0 |
9,676 |
||
|
2022 |
02/22/2022 |
103,500 |
83,790 |
9,216 |
0 |
9,216 |
||
| Property Building Permit History | |||||||||||
|---|---|---|---|---|---|---|---|---|---|---|---|
| Issued | Permit # | Provided by | Bldg # | Description | Est Construction Cost | Status | |||||
| No Building Permit records returned. | |||||||||||
| Click button on building number to access detailed information: | ||||||
|---|---|---|---|---|---|---|
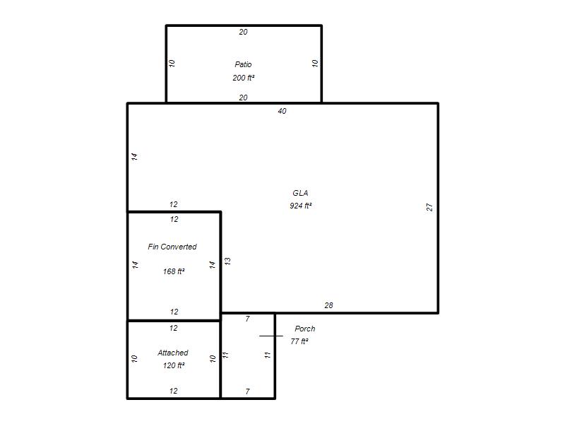
| Bldg # | Vacant/Improved Land | Bldg Description | Year Built | SqFt | # Stories | |
|
1 |
Improved |
Ranch 1 Story |
1967 |
924 |
1 Stories |
|