|
|
|
| Larry Stein Oklahoma County Assessor (405) 713-1200 - Public Access System |
|
|
|
|
|
|
| Real Property Display - Screen Produced 3/17/2026 4:57:31 AM | ||||
|---|---|---|---|---|
| Account: R074507285 | Type: Residential | Location: |
3040 SW 63RD ST |
|
| Building Name/Occupant: |
|
OKLAHOMA CITY |
||
| Owner Name 1: | VARGAS MARIBEL |
Parcel PIN#: |
1897-07-450-7285 |
|
| Owner Name 2: | C/O GRADY GRANDSTAFF | 1/4 section #: |
1897 |
|
| Owner Name 3: | Parent Acct: |
|
||
| Billing Address: | 3613 N COUNTRY CLUB RD | Tax District: |
|
|
| City, State, Zip | NEWCASTLE, OK 73065-6310 | School System: |
Oklahoma City #89 |
|
|
Country: (If noted) |
Land Size: |
0.1736 Acres |
||
|
Land Value: 25,704 |
|
|||
|
Sect 25-T11N-R4W Qtr NE |
HILLCREST HEIGHTS ADD
Block
096
Lot
020
|
|||
| Full Legal Description: HILLCREST HEIGHTS ADD 096 020 |
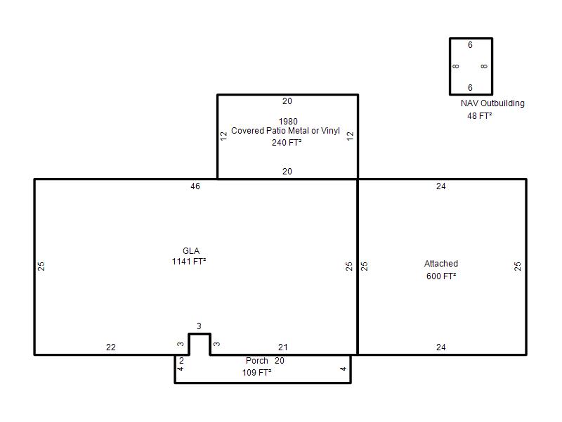
| Photo & Sketch (if available) | Comp Sales (ordered by relevancy) |
|
||||||||||||||||||
|
||||||||||||||||||||
| Value History (*The County Treasurer 405-713-1300 posts & collects actual tax amounts. Contact information HERE) | |||||||||||||
|---|---|---|---|---|---|---|---|---|---|---|---|---|---|
| Year | Market Value | Taxable Mkt Value | Gross Assessed | Exemption | Net Assessed | Millage | Est. Tax | Tax Savings | |||||
|
2025 |
152,000 |
112,312 |
12,354 |
0 |
12,354 |
119.02 |
$1,470 |
$520 |
|||||
|
2024 |
123,000 |
106,964 |
11,765 |
0 |
11,765 |
119.70 |
$1,408 |
$211 |
|||||
|
2023 |
129,000 |
101,871 |
11,205 |
0 |
11,205 |
118.33 |
$1,326 |
$353 |
|||||
|
2022 |
117,000 |
97,020 |
10,672 |
0 |
10,672 |
112.69 |
$1,203 |
$248 |
|||||
|
2021 |
99,000 |
92,400 |
10,164 |
0 |
10,164 |
112.29 |
$1,141 |
$82 |
|||||
| Property Account Status/Adjustments/Exemptions | ||
|---|---|---|
| Account # | Exemption Description | Amount |
|
R074507285 |
5% Capped Account |
0 |
| Property Deed Transaction History (Recorded in the County Clerk's Office) | ||||||||||
|---|---|---|---|---|---|---|---|---|---|---|
| Date | Type | Book | Page | Price | Grantor | Grantee | ||||
|
2/28/2014 |
|
Deeds |
$90,000 |
GRANDSTAFF GRADY S & JANET F TRS GRANDSTAFF GRADY & JANET RE |
VARGAS MARIBEL |
|||||
|
10/14/2011 |
|
Deeds |
$0 |
GRANDSTAFF GRADY |
GRANDSTAFF GRADY S & JANET F TRS GRANDSTAFF GRADY & JANET RE |
|||||
|
6/8/2004 |
|
Deeds |
$0 |
GRANDSTAFF ELVA P |
GRANDSTAFF GRADY |
|||||
|
6/1/2004 |
|
Deeds |
$0 |
GRANSTAFF ELVA P |
GRANDSTAFF ELVA P GRANDSTAFF GRADY |
|||||
|
10/25/1993 |
|
Historical |
$45,000 |
PAXTON ALICE JEANE |
GRANSTAFF ELVA P |
|||||
| Last Mailed Notice of Value (N.O.V.) Information/History | ||||||||
|---|---|---|---|---|---|---|---|---|
| Year | Date | Market Value | Taxable Market Value | Gross Assessed | Exemption | Net Assessed | ||
|
2026 |
02/06/2026 |
151,000 |
117,927 |
12,971 |
0 |
12,971 |
||
|
2025 |
01/31/2025 |
152,000 |
112,312 |
12,354 |
0 |
12,354 |
||
|
2024 |
01/22/2024 |
123,000 |
106,964 |
11,765 |
0 |
11,765 |
||
|
2023 |
01/23/2023 |
129,000 |
101,871 |
11,205 |
0 |
11,205 |
||
|
2022 |
02/22/2022 |
117,000 |
97,020 |
10,672 |
0 |
10,672 |
||
| Property Building Permit History | |||||||||||
|---|---|---|---|---|---|---|---|---|---|---|---|
| Issued | Permit # | Provided by | Bldg # | Description | Est Construction Cost | Status | |||||
| No Building Permit records returned. | |||||||||||
| Click button on building number to access detailed information: | ||||||
|---|---|---|---|---|---|---|
| Bldg # | Vacant/Improved Land | Bldg Description | Year Built | SqFt | # Stories | |
|
1 |
Improved |
Ranch 1 Story |
1967 |
1,141 |
1 Stories |
|