|
|
|
| Larry Stein Oklahoma County Assessor (405) 713-1200 - Public Access System |
|
|
|
|
|
|
| Real Property Display - Screen Produced 3/12/2026 11:23:41 PM | ||||
|---|---|---|---|---|
| Account: R074507875 | Type: Residential | Location: |
6053 S DREXEL AVE |
|
| Building Name/Occupant: |
|
OKLAHOMA CITY |
||
| Owner Name 1: | HECTOR ENTERPRISES LLP |
Parcel PIN#: |
1897-07-450-7875 |
|
| Owner Name 2: | 1/4 section #: |
1897 |
||
| Owner Name 3: | Parent Acct: |
|
||
| Billing Address: | 1613 SW 113TH PL | Tax District: |
|
|
| City, State, Zip | OKLAHOMA CITY, OK 73170 | School System: |
Oklahoma City #89 |
|
|
Country: (If noted) |
Land Size: |
0.1707 Acres |
||
|
Land Value: 25,286 |
|
|||
|
Sect 25-T11N-R4W Qtr NE |
HILLCREST HEIGHTS ADD
Block
101
Lot
000
|
|||
| Full Legal Description: HILLCREST HEIGHTS ADD 101 000 LOT 14 EX A TRI TR OFF WLY SIDE BEING 8.93FT ON SLY END |
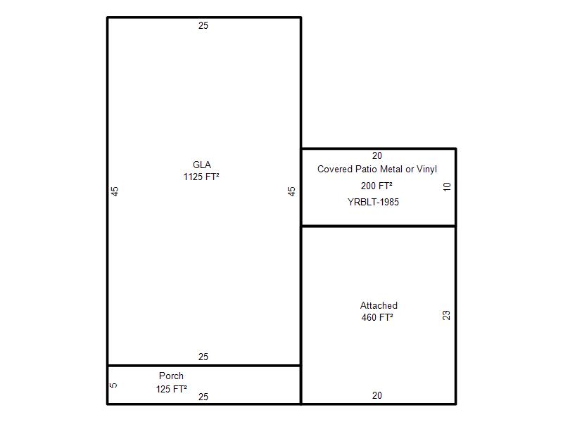
| Photo & Sketch (if available) | Comp Sales (ordered by relevancy) |
|
||||||||||||||||||
|
||||||||||||||||||||
| Value History (*The County Treasurer 405-713-1300 posts & collects actual tax amounts. Contact information HERE) | |||||||||||||
|---|---|---|---|---|---|---|---|---|---|---|---|---|---|
| Year | Market Value | Taxable Mkt Value | Gross Assessed | Exemption | Net Assessed | Millage | Est. Tax | Tax Savings | |||||
|
2025 |
141,000 |
100,824 |
11,090 |
0 |
11,090 |
119.02 |
$1,320 |
$526 |
|||||
|
2024 |
113,500 |
96,023 |
10,561 |
0 |
10,561 |
119.70 |
$1,264 |
$230 |
|||||
|
2023 |
117,500 |
91,451 |
10,059 |
0 |
10,059 |
118.33 |
$1,190 |
$339 |
|||||
|
2022 |
106,500 |
87,097 |
9,580 |
0 |
9,580 |
112.69 |
$1,080 |
$241 |
|||||
|
2021 |
89,500 |
82,950 |
9,124 |
0 |
9,124 |
112.29 |
$1,025 |
$81 |
|||||
| Property Account Status/Adjustments/Exemptions | ||
|---|---|---|
| Account # | Exemption Description | Amount |
|
R074507875 |
5% Capped Account |
0 |
| Property Deed Transaction History (Recorded in the County Clerk's Office) | |||||||
|---|---|---|---|---|---|---|---|
| Date | Type | Book | Page | Price | Grantor | Grantee | |
|
3/31/2011 |
|
Deeds |
$61,000 |
PARSON BRADY G & BOBBIE J TRS PARSON BRADY G FAMILY TRUST |
HECTOR ENTERPRISES LLP |
||
|
1/30/2007 |
|
Deeds |
$0 |
PARSONS BRADY G & BOBBIE J |
PARSON BRADY G & BOBBIE J TRS PARSON BRADY G FAMILY TRUST |
||
|
7/1/1978 |
|
Historical |
$0 |
|
PARSONS BRADY G & BOBBIE J |
||
| Last Mailed Notice of Value (N.O.V.) Information/History | ||||||||
|---|---|---|---|---|---|---|---|---|
| Year | Date | Market Value | Taxable Market Value | Gross Assessed | Exemption | Net Assessed | ||
|
2026 |
02/06/2026 |
138,500 |
105,865 |
11,644 |
0 |
11,644 |
||
|
2025 |
01/31/2025 |
141,000 |
100,824 |
11,090 |
0 |
11,090 |
||
|
2024 |
01/22/2024 |
113,500 |
96,023 |
10,561 |
0 |
10,561 |
||
|
2023 |
01/23/2023 |
117,500 |
91,451 |
10,059 |
0 |
10,059 |
||
|
2022 |
02/22/2022 |
106,500 |
87,097 |
9,580 |
0 |
9,580 |
||
| Property Building Permit History | |||||||||||
|---|---|---|---|---|---|---|---|---|---|---|---|
| Issued | Permit # | Provided by | Bldg # | Description | Est Construction Cost | Status | |||||
| No Building Permit records returned. | |||||||||||
| Click button on building number to access detailed information: | ||||||
|---|---|---|---|---|---|---|
| Bldg # | Vacant/Improved Land | Bldg Description | Year Built | SqFt | # Stories | |
|
1 |
Improved |
Ranch 1 Story |
1963 |
1,125 |
1 Stories |
|