|
|
|
| Larry Stein Oklahoma County Assessor (405) 713-1200 - Public Access System |
|
|
|
|
|
|
| Real Property Display - Screen Produced 3/17/2026 4:37:43 AM | ||||
|---|---|---|---|---|
| Account: R143581195 | Type: Residential | Location: |
3213 SW 65TH PL |
|
| Building Name/Occupant: |
|
OKLAHOMA CITY |
||
| Owner Name 1: | 3213 65 LLC |
Parcel PIN#: |
1898-14-358-1195 |
|
| Owner Name 2: | 1/4 section #: |
1898 |
||
| Owner Name 3: | Parent Acct: |
|
||
| Billing Address: | 816 SW 36TH ST | Tax District: |
|
|
| City, State, Zip | OKLAHOMA CITY , OK 73109 | School System: |
Western Heights #41 |
|
|
Country: (If noted) |
Land Size: |
0.1598 Acres |
||
|
Land Value: 16,843 |
|
|||
|
Sect 25-T11N-R4W Qtr SE |
MADOLE HILL CREST GREEN #1
Block
003
Lot
004
|
|||
| Full Legal Description: MADOLE HILL CREST GREEN #1 003 004 |
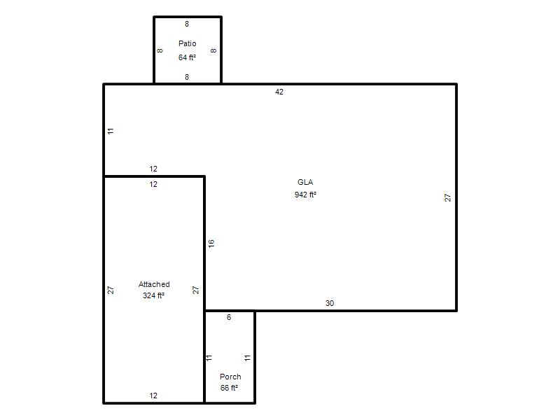
| Photo & Sketch (if available) | Comp Sales (ordered by relevancy) |
|
||||||||||||||||||
|
||||||||||||||||||||
| Value History (*The County Treasurer 405-713-1300 posts & collects actual tax amounts. Contact information HERE) | |||||||||||||
|---|---|---|---|---|---|---|---|---|---|---|---|---|---|
| Year | Market Value | Taxable Mkt Value | Gross Assessed | Exemption | Net Assessed | Millage | Est. Tax | Tax Savings | |||||
|
2025 |
116,000 |
85,509 |
9,405 |
0 |
9,405 |
117.97 |
$1,110 |
$396 |
|||||
|
2024 |
104,500 |
81,438 |
8,957 |
0 |
8,957 |
118.45 |
$1,061 |
$300 |
|||||
|
2023 |
96,500 |
77,560 |
8,531 |
0 |
8,531 |
116.31 |
$992 |
$242 |
|||||
|
2022 |
87,000 |
73,867 |
8,124 |
0 |
8,124 |
117.67 |
$956 |
$170 |
|||||
|
2021 |
73,000 |
70,350 |
7,738 |
0 |
7,738 |
120.74 |
$934 |
$35 |
|||||
| Property Account Status/Adjustments/Exemptions | ||
|---|---|---|
| Account # | Exemption Description | Amount |
|
R143581195 |
5% Capped Account |
0 |
| Property Deed Transaction History (Recorded in the County Clerk's Office) | ||||||||||
|---|---|---|---|---|---|---|---|---|---|---|
| Date | Type | Book | Page | Price | Grantor | Grantee | ||||
|
12/11/2009 |
|
Deeds |
$10,000 |
SELF PROPERTIES LLC |
3213 65 LLC |
|||||
|
8/12/2004 |
|
Deeds |
$40,000 |
KEYSER DONALD J |
SELF PROPERTIES LLC |
|||||
|
5/6/1998 |
|
Historical |
$42,000 |
BECKER DONALD R CO TRS ETAL |
KEYSER DONALD J |
|||||
|
6/19/1995 |
|
Historical |
$0 |
BECKER DONALD R CO TRS ETAL |
BECKER DONALD R CO TRS ETAL |
|||||
|
12/30/1993 |
|
Historical |
$0 |
BECKER DONALD R CO TRS ETAL |
BECKER DONALD R CO TRS ETAL |
|||||
| Last Mailed Notice of Value (N.O.V.) Information/History | ||||||||
|---|---|---|---|---|---|---|---|---|
| Year | Date | Market Value | Taxable Market Value | Gross Assessed | Exemption | Net Assessed | ||
|
2026 |
02/06/2026 |
115,000 |
89,784 |
9,875 |
0 |
9,875 |
||
|
2025 |
01/31/2025 |
116,000 |
85,509 |
9,405 |
0 |
9,405 |
||
|
2024 |
01/22/2024 |
104,500 |
81,438 |
8,957 |
0 |
8,957 |
||
|
2023 |
01/23/2023 |
96,500 |
77,560 |
8,531 |
0 |
8,531 |
||
|
2022 |
02/22/2022 |
87,000 |
73,867 |
8,124 |
0 |
8,124 |
||
| Property Building Permit History | |||||||||||
|---|---|---|---|---|---|---|---|---|---|---|---|
| Issued | Permit # | Provided by | Bldg # | Description | Est Construction Cost | Status | |||||
| No Building Permit records returned. | |||||||||||
| Click button on building number to access detailed information: | ||||||
|---|---|---|---|---|---|---|
| Bldg # | Vacant/Improved Land | Bldg Description | Year Built | SqFt | # Stories | |
|
1 |
Improved |
Ranch 1 Story |
1961 |
942 |
1 Stories |
|