|
|
|
| Larry Stein Oklahoma County Assessor (405) 713-1200 - Public Access System |
|
|
|
|
|
|
| Real Property Display - Screen Produced 3/15/2026 9:20:05 AM | ||||
|---|---|---|---|---|
| Account: R143581215 | Type: Residential | Location: |
3229 SW 65TH PL |
|
| Building Name/Occupant: |
|
OKLAHOMA CITY |
||
| Owner Name 1: | MOSIER LETA LYNN |
Parcel PIN#: |
1898-14-358-1215 |
|
| Owner Name 2: | 1/4 section #: |
1898 |
||
| Owner Name 3: | Parent Acct: |
|
||
| Billing Address: | 3229 SW 65TH PL | Tax District: |
|
|
| City, State, Zip | OKLAHOMA CITY, OK 73159-2203 | School System: |
Western Heights #41 |
|
|
Country: (If noted) |
Land Size: |
0.1598 Acres |
||
|
Land Value: 16,843 |
|
|||
|
Sect 25-T11N-R4W Qtr SE |
MADOLE HILL CREST GREEN #1
Block
003
Lot
008
|
|||
| Full Legal Description: MADOLE HILL CREST GREEN #1 003 008 |
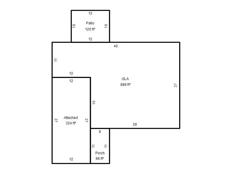
| Photo & Sketch (if available) | Comp Sales (ordered by relevancy) |
|
||||||||||||||||||
|
||||||||||||||||||||
| Value History (*The County Treasurer 405-713-1300 posts & collects actual tax amounts. Contact information HERE) | |||||||||||||
|---|---|---|---|---|---|---|---|---|---|---|---|---|---|
| Year | Market Value | Taxable Mkt Value | Gross Assessed | Exemption | Net Assessed | Millage | Est. Tax | Tax Savings | |||||
|
2025 |
117,000 |
77,089 |
8,478 |
1,000 |
7,478 |
117.97 |
$882 |
$636 |
|||||
|
2024 |
107,000 |
74,844 |
8,232 |
1,000 |
7,232 |
118.45 |
$857 |
$537 |
|||||
|
2023 |
96,000 |
72,665 |
7,992 |
1,000 |
6,992 |
116.31 |
$813 |
$415 |
|||||
|
2022 |
86,500 |
70,549 |
7,760 |
1,000 |
6,760 |
117.67 |
$795 |
$324 |
|||||
|
2021 |
74,500 |
68,495 |
7,534 |
1,000 |
6,534 |
120.74 |
$789 |
$200 |
|||||
| Property Account Status/Adjustments/Exemptions | ||
|---|---|---|
| Account # | Exemption Description | Amount |
|
R143581215 |
3% Cap Homestead |
0 |
|
R143581215 |
Homestead |
1,000 |
| Property Deed Transaction History (Recorded in the County Clerk's Office) | ||||||||||
|---|---|---|---|---|---|---|---|---|---|---|
| Date | Type | Book | Page | Price | Grantor | Grantee | ||||
|
5/4/2007 |
|
Deeds |
$72,500 |
JARNAGIN APRIL DAWN |
MOSIER LETA LYNN |
|||||
|
4/20/2007 |
|
Deeds |
$0 |
KNAPP PHYLLIS M |
JARNAGIN APRIL DAWN |
|||||
|
2/18/2004 |
|
Deeds |
$0 |
JARNAGIN PHYLLIS M |
JARNAGIN APRIL D |
|||||
|
2/2/2004 |
|
Hmstd Off & |
$0 |
JARNAGIN STEVE L |
JARNAGIN APRIL DAWN |
|||||
|
10/3/1996 |
|
Deeds |
$0 |
JARNAGIN STEVEN LEE & PHYLLIS |
JARNAGIN STEVE L |
|||||
| Last Mailed Notice of Value (N.O.V.) Information/History | ||||||||
|---|---|---|---|---|---|---|---|---|
| Year | Date | Market Value | Taxable Market Value | Gross Assessed | Exemption | Net Assessed | ||
|
2026 |
02/06/2026 |
116,000 |
79,401 |
8,733 |
1,000 |
7,733 |
||
|
2025 |
01/31/2025 |
117,000 |
77,089 |
8,478 |
1,000 |
7,478 |
||
|
2024 |
01/22/2024 |
107,000 |
74,844 |
8,232 |
1,000 |
7,232 |
||
|
2023 |
01/23/2023 |
96,000 |
72,665 |
7,992 |
1,000 |
6,992 |
||
|
2022 |
02/22/2022 |
86,500 |
70,549 |
7,760 |
1,000 |
6,760 |
||
| Property Building Permit History | |||||||||||
|---|---|---|---|---|---|---|---|---|---|---|---|
| Issued | Permit # | Provided by | Bldg # | Description | Est Construction Cost | Status | |||||
| No Building Permit records returned. | |||||||||||
| Click button on building number to access detailed information: | ||||||
|---|---|---|---|---|---|---|
| Bldg # | Vacant/Improved Land | Bldg Description | Year Built | SqFt | # Stories | |
|
1 |
Improved |
Ranch 1 Story |
1960 |
888 |
1 Stories |
|