|
|
|
| Larry Stein Oklahoma County Assessor (405) 713-1200 - Public Access System |
|
|
|
|
|
|
| Real Property Display - Screen Produced 3/15/2026 9:20:26 AM | ||||
|---|---|---|---|---|
| Account: R143581390 | Type: Residential | Location: |
3261 S MADOLE BLVD |
|
| Building Name/Occupant: |
|
OKLAHOMA CITY |
||
| Owner Name 1: | FLORES JESUS VELASCO |
Parcel PIN#: |
1898-14-358-1390 |
|
| Owner Name 2: | 1/4 section #: |
1898 |
||
| Owner Name 3: | Parent Acct: |
|
||
| Billing Address: | 3261 S MADOLE BLVD | Tax District: |
|
|
| City, State, Zip | OKLAHOMA CITY, OK 73159-2336 | School System: |
Western Heights #41 |
|
|
Country: (If noted) |
Land Size: |
0.2169 Acres |
||
|
Land Value: 22,869 |
|
|||
|
Sect 25-T11N-R4W Qtr SE |
MADOLE HILL CREST GREEN #1
Block
005
Lot
008
|
|||
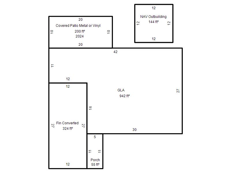
| Full Legal Description: MADOLE HILL CREST GREEN #1 005 008 |
| Photo & Sketch (if available) | Comp Sales (ordered by relevancy) |
|
||||||||||||||||||
|
||||||||||||||||||||
| Value History (*The County Treasurer 405-713-1300 posts & collects actual tax amounts. Contact information HERE) | |||||||||||||
|---|---|---|---|---|---|---|---|---|---|---|---|---|---|
| Year | Market Value | Taxable Mkt Value | Gross Assessed | Exemption | Net Assessed | Millage | Est. Tax | Tax Savings | |||||
|
2025 |
124,000 |
108,237 |
11,905 |
0 |
11,905 |
117.97 |
$1,405 |
$205 |
|||||
|
2024 |
111,000 |
103,083 |
11,338 |
0 |
11,338 |
118.45 |
$1,343 |
$103 |
|||||
|
2023 |
103,000 |
98,175 |
10,799 |
0 |
10,799 |
116.31 |
$1,256 |
$62 |
|||||
|
2022 |
93,500 |
93,500 |
10,285 |
0 |
10,285 |
117.67 |
$1,210 |
$0 |
|||||
|
2021 |
78,000 |
75,600 |
8,316 |
0 |
8,316 |
120.74 |
$1,004 |
$32 |
|||||
| Property Account Status/Adjustments/Exemptions | ||
|---|---|---|
| Account # | Exemption Description | Amount |
|
R143581390 |
5% Capped Account |
0 |
| Property Deed Transaction History (Recorded in the County Clerk's Office) | ||||||||||
|---|---|---|---|---|---|---|---|---|---|---|
| Date | Type | Book | Page | Price | Grantor | Grantee | ||||
|
1/29/2026 |
|
Deeds |
$105,000 |
A & A PROPERTY INVESTMENTS LLC |
FLORES JESUS VELASCO |
|||||
|
4/25/2024 |
|
Hmstd Off & |
$0 |
A & A PROPERTY INVESTMENTS LLC |
A & A PROPERTY INVESTMENTS LLC |
|||||
|
1/13/2021 |
|
Deeds |
$69,000 |
YOUNG TONY |
A & A PROPERTY INVESTMENTS LLC |
|||||
|
1/22/2016 |
|
Deeds |
$0 |
YOUNG TONY |
YOUNG TONY |
|||||
|
9/10/2015 |
|
Deeds |
$0 |
ARNTZEN JULIE A TRS |
YOUNG TONY |
|||||
| Last Mailed Notice of Value (N.O.V.) Information/History | ||||||||
|---|---|---|---|---|---|---|---|---|
| Year | Date | Market Value | Taxable Market Value | Gross Assessed | Exemption | Net Assessed | ||
|
2025 |
01/31/2025 |
124,000 |
108,237 |
11,905 |
0 |
11,905 |
||
|
2024 |
01/22/2024 |
111,000 |
103,083 |
11,338 |
0 |
11,338 |
||
|
2023 |
01/23/2023 |
103,000 |
98,175 |
10,799 |
0 |
10,799 |
||
|
2022 |
02/22/2022 |
93,500 |
93,500 |
10,285 |
0 |
10,285 |
||
|
2021 |
02/24/2021 |
78,000 |
75,600 |
8,316 |
0 |
8,316 |
||
| Property Building Permit History | |||||||||||
|---|---|---|---|---|---|---|---|---|---|---|---|
| Issued | Permit # | Provided by | Bldg # | Description | Est Construction Cost | Status | |||||
| No Building Permit records returned. | |||||||||||
| Click button on building number to access detailed information: | ||||||
|---|---|---|---|---|---|---|
| Bldg # | Vacant/Improved Land | Bldg Description | Year Built | SqFt | # Stories | |
|
1 |
Improved |
Ranch 1 Story |
1961 |
942 |
1 Stories |
|