|
|
|
| Larry Stein Oklahoma County Assessor (405) 713-1200 - Public Access System |
|
|
|
|
|
|
| Real Property Display - Screen Produced 3/15/2026 9:20:26 AM | ||||
|---|---|---|---|---|
| Account: R143581445 | Type: Residential | Location: |
3201 S MADOLE BLVD |
|
| Building Name/Occupant: |
|
OKLAHOMA CITY |
||
| Owner Name 1: | WARD KATHY A TRS |
Parcel PIN#: |
1898-14-358-1445 |
|
| Owner Name 2: | WARD KATHY A REV LIV TRUST | 1/4 section #: |
1898 |
|
| Owner Name 3: | Parent Acct: |
|
||
| Billing Address: | 3201 S MADOLE BLVD | Tax District: |
|
|
| City, State, Zip | OKLAHOMA CITY, OK 73159-2336 | School System: |
Western Heights #41 |
|
|
Country: (If noted) |
Land Size: |
0.1196 Acres |
||
|
Land Value: 12,603 |
|
|||
|
Sect 25-T11N-R4W Qtr SE |
MADOLE HILL CREST GREEN #1
Block
005
Lot
000
|
|||
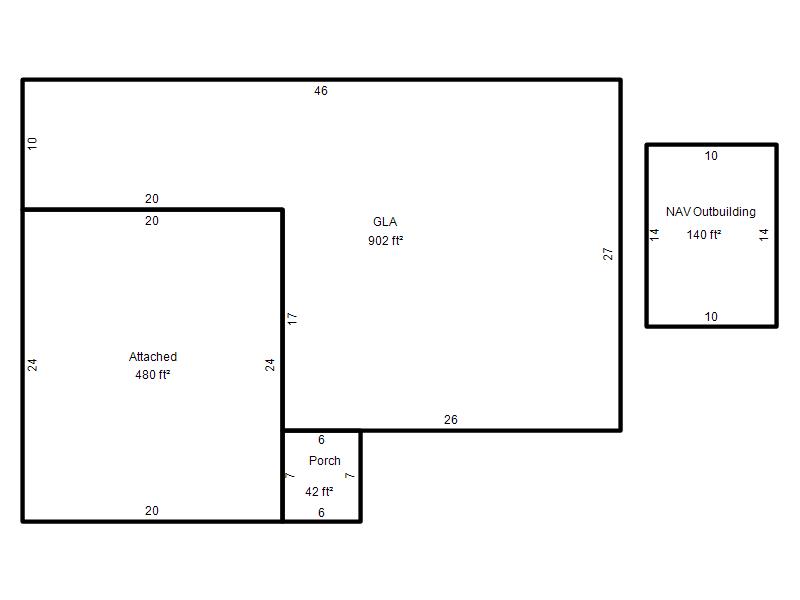
| Full Legal Description: MADOLE HILL CREST GREEN #1 005 000 ALL LOT 19 EXCEPT WLY PRT BEING 39.30FT ON NLY SIDE & 24.83FT ON SLY SIDE |
| Photo & Sketch (if available) | Comp Sales (ordered by relevancy) |
|
||||||||||||||||||
|
||||||||||||||||||||
| Value History (*The County Treasurer 405-713-1300 posts & collects actual tax amounts. Contact information HERE) | |||||||||||||
|---|---|---|---|---|---|---|---|---|---|---|---|---|---|
| Year | Market Value | Taxable Mkt Value | Gross Assessed | Exemption | Net Assessed | Millage | Est. Tax | Tax Savings | |||||
|
2025 |
121,000 |
81,531 |
8,968 |
1,000 |
7,968 |
117.97 |
$940 |
$630 |
|||||
|
2024 |
111,500 |
79,157 |
8,706 |
1,000 |
7,706 |
118.45 |
$913 |
$540 |
|||||
|
2023 |
101,500 |
76,852 |
8,453 |
1,000 |
7,453 |
116.31 |
$867 |
$432 |
|||||
|
2022 |
91,000 |
74,614 |
8,207 |
1,000 |
7,207 |
117.67 |
$848 |
$330 |
|||||
|
2021 |
79,000 |
72,441 |
7,968 |
1,000 |
6,968 |
120.74 |
$841 |
$208 |
|||||
| Property Account Status/Adjustments/Exemptions | ||
|---|---|---|
| Account # | Exemption Description | Amount |
|
R143581445 |
3% Cap Homestead |
0 |
|
R143581445 |
Homestead |
1,000 |
| Property Deed Transaction History (Recorded in the County Clerk's Office) | |||||||
|---|---|---|---|---|---|---|---|
| Date | Type | Book | Page | Price | Grantor | Grantee | |
|
11/2/2011 |
|
Deeds |
$0 |
WARD KATHERINE AUDRENE |
WARD KATHY A TRS |
||
|
8/24/1989 |
|
Historical |
$34,000 |
SKILL FRED H & CINDY L |
WARD KATHERINE AUDRENE |
||
|
5/1/1978 |
|
Historical |
$0 |
|
SKILL FRED H & CINDY L |
||
| Last Mailed Notice of Value (N.O.V.) Information/History | ||||||||
|---|---|---|---|---|---|---|---|---|
| Year | Date | Market Value | Taxable Market Value | Gross Assessed | Exemption | Net Assessed | ||
|
2026 |
02/06/2026 |
120,500 |
83,976 |
9,237 |
1,000 |
8,237 |
||
|
2025 |
01/31/2025 |
121,000 |
81,531 |
8,968 |
1,000 |
7,968 |
||
|
2024 |
01/22/2024 |
111,500 |
79,157 |
8,706 |
1,000 |
7,706 |
||
|
2023 |
01/23/2023 |
101,500 |
76,852 |
8,453 |
1,000 |
7,453 |
||
|
2022 |
02/22/2022 |
91,000 |
74,614 |
8,207 |
1,000 |
7,207 |
||
| Property Building Permit History | |||||||||||
|---|---|---|---|---|---|---|---|---|---|---|---|
| Issued | Permit # | Provided by | Bldg # | Description | Est Construction Cost | Status | |||||
| No Building Permit records returned. | |||||||||||
| Click button on building number to access detailed information: | ||||||
|---|---|---|---|---|---|---|
| Bldg # | Vacant/Improved Land | Bldg Description | Year Built | SqFt | # Stories | |
|
1 |
Improved |
Ranch 1 Story |
1962 |
902 |
1 Stories |
|