|
|
|
| Larry Stein Oklahoma County Assessor (405) 713-1200 - Public Access System |
|
|
|
|
|
|
| Real Property Display - Screen Produced 3/15/2026 2:06:29 PM | ||||
|---|---|---|---|---|
| Account: R143611015 | Type: Residential | Location: |
7408 S BROOKLINE AVE |
|
| Building Name/Occupant: |
|
OKLAHOMA CITY |
||
| Owner Name 1: | WILLIS DANIEL J & SARA L |
Parcel PIN#: |
1898-14-361-1015 |
|
| Owner Name 2: | 1/4 section #: |
1898 |
||
| Owner Name 3: | Parent Acct: |
|
||
| Billing Address: | 7408 S BROOKLINE AVE | Tax District: |
|
|
| City, State, Zip | OKLAHOMA CITY, OK 73159-3626 | School System: |
Western Heights #41 |
|
|
Country: (If noted) |
Land Size: |
0.1625 Acres |
||
|
Land Value: 14,160 |
|
|||
|
Sect 25-T11N-R4W Qtr SE |
MADOLE HILL CREST GREEN #2
Block
001
Lot
002
|
|||
| Full Legal Description: MADOLE HILL CREST GREEN #2 001 002 |
| Photo & Sketch (if available) | Comp Sales (ordered by relevancy) |
|
||||||||||||||||||
|
||||||||||||||||||||
| Value History (*The County Treasurer 405-713-1300 posts & collects actual tax amounts. Contact information HERE) | |||||||||||||
|---|---|---|---|---|---|---|---|---|---|---|---|---|---|
| Year | Market Value | Taxable Mkt Value | Gross Assessed | Exemption | Net Assessed | Millage | Est. Tax | Tax Savings | |||||
|
2025 |
127,500 |
64,487 |
7,093 |
1,000 |
6,093 |
117.97 |
$719 |
$936 |
|||||
|
2024 |
117,000 |
64,487 |
7,093 |
1,000 |
6,093 |
118.45 |
$722 |
$803 |
|||||
|
2023 |
104,000 |
64,487 |
7,093 |
1,000 |
6,093 |
116.31 |
$709 |
$622 |
|||||
|
2022 |
94,000 |
64,487 |
7,093 |
1,000 |
6,093 |
117.67 |
$717 |
$500 |
|||||
|
2021 |
80,500 |
64,487 |
7,093 |
1,000 |
6,093 |
120.74 |
$736 |
$333 |
|||||
| Property Account Status/Adjustments/Exemptions | ||
|---|---|---|
| Account # | Exemption Description | Amount |
|
R143611015 |
3% Cap Homestead |
0 |
|
R143611015 |
Freeze Senior Valuation |
0 |
|
R143611015 |
Homestead |
1,000 |
| Property Deed Transaction History (Recorded in the County Clerk's Office) | |||||||
|---|---|---|---|---|---|---|---|
| Date | Type | Book | Page | Price | Grantor | Grantee | |
|
9/17/2009 |
|
Deeds |
$60,000 |
WILLIS JOE B |
WILLIS DANIEL J & SARA L |
||
|
11/22/1993 |
|
Historical |
$46,500 |
MIKEMAN KIP ALLEN |
WILLIS JOE B |
||
|
8/1/1984 |
|
Historical |
$0 |
|
MIKEMAN KIP ALLEN |
||
| Last Mailed Notice of Value (N.O.V.) Information/History | ||||||||
|---|---|---|---|---|---|---|---|---|
| Year | Date | Market Value | Taxable Market Value | Gross Assessed | Exemption | Net Assessed | ||
|
2025 |
01/31/2025 |
127,500 |
64,487 |
7,093 |
1,000 |
6,093 |
||
|
2024 |
01/22/2024 |
117,000 |
64,487 |
7,093 |
1,000 |
6,093 |
||
|
2023 |
01/23/2023 |
104,000 |
64,487 |
7,093 |
1,000 |
6,093 |
||
|
2022 |
02/22/2022 |
94,000 |
64,487 |
7,093 |
1,000 |
6,093 |
||
|
2021 |
02/24/2021 |
80,500 |
64,487 |
7,093 |
1,000 |
6,093 |
||
| Property Building Permit History | |||||||||||
|---|---|---|---|---|---|---|---|---|---|---|---|
| Issued | Permit # | Provided by | Bldg # | Description | Est Construction Cost | Status | |||||
| No Building Permit records returned. | |||||||||||
| Click button on building number to access detailed information: | ||||||
|---|---|---|---|---|---|---|
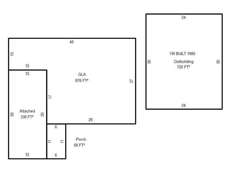
| Bldg # | Vacant/Improved Land | Bldg Description | Year Built | SqFt | # Stories | |
|
1 |
Improved |
Ranch 1 Story |
1962 |
876 |
1 Stories |
|