|
|
|
| Larry Stein Oklahoma County Assessor (405) 713-1200 - Public Access System |
|
|
|
|
|
|
| Real Property Display - Screen Produced 3/15/2026 2:06:43 PM | ||||
|---|---|---|---|---|
| Account: R143611035 | Type: Residential | Location: |
7400 S BROOKLINE AVE |
|
| Building Name/Occupant: |
|
OKLAHOMA CITY |
||
| Owner Name 1: | LILES KENNETH DANIEL SR TRS |
Parcel PIN#: |
1898-14-361-1035 |
|
| Owner Name 2: | ORCUTT LILES DONNA NOREEN TRS | 1/4 section #: |
1898 |
|
| Owner Name 3: | KDL PROTECTION TRUST | Parent Acct: |
|
|
| Billing Address: | 11901 FORREST SPRING DR | Tax District: |
|
|
| City, State, Zip | OKLAHOMA CITY, OK 73173-8119 | School System: |
Western Heights #41 |
|
|
Country: (If noted) |
Land Size: |
0.2455 Acres |
||
|
Land Value: 20,972 |
|
|||
|
Sect 25-T11N-R4W Qtr SE |
MADOLE HILL CREST GREEN #2
Block
001
Lot
004
|
|||
| Full Legal Description: MADOLE HILL CREST GREEN #2 001 004 |
| Photo & Sketch (if available) | Comp Sales (ordered by relevancy) |
|
||||||||||||||||||
|
||||||||||||||||||||
| Value History (*The County Treasurer 405-713-1300 posts & collects actual tax amounts. Contact information HERE) | |||||||||||||
|---|---|---|---|---|---|---|---|---|---|---|---|---|---|
| Year | Market Value | Taxable Mkt Value | Gross Assessed | Exemption | Net Assessed | Millage | Est. Tax | Tax Savings | |||||
|
2025 |
119,000 |
89,338 |
9,826 |
0 |
9,826 |
117.97 |
$1,159 |
$385 |
|||||
|
2024 |
107,500 |
85,084 |
9,358 |
0 |
9,358 |
118.45 |
$1,109 |
$292 |
|||||
|
2023 |
99,500 |
81,033 |
8,913 |
0 |
8,913 |
116.31 |
$1,037 |
$236 |
|||||
|
2022 |
91,000 |
77,175 |
8,489 |
0 |
8,489 |
117.67 |
$999 |
$179 |
|||||
|
2021 |
77,000 |
73,500 |
8,085 |
0 |
8,085 |
120.74 |
$976 |
$46 |
|||||
| Property Account Status/Adjustments/Exemptions | ||
|---|---|---|
| Account # | Exemption Description | Amount |
|
R143611035 |
5% Capped Account |
0 |
| Property Deed Transaction History (Recorded in the County Clerk's Office) | |||||||
|---|---|---|---|---|---|---|---|
| Date | Type | Book | Page | Price | Grantor | Grantee | |
|
6/7/2024 |
|
Hmstd Off & |
$0 |
LILES KENNETH D |
LILES KENNETH DANIEL SR TRS |
||
|
3/14/2018 |
|
Deeds |
$0 |
LILES KENNETH D & CHERYL A |
LILES KENNETH D |
||
|
9/1/1976 |
|
Historical |
$0 |
|
LILES KENNETH D & CHERYL A |
||
| Last Mailed Notice of Value (N.O.V.) Information/History | ||||||||
|---|---|---|---|---|---|---|---|---|
| Year | Date | Market Value | Taxable Market Value | Gross Assessed | Exemption | Net Assessed | ||
|
2026 |
02/06/2026 |
118,500 |
93,804 |
10,318 |
0 |
10,318 |
||
|
2025 |
01/31/2025 |
119,000 |
89,338 |
9,826 |
0 |
9,826 |
||
|
2024 |
01/22/2024 |
107,500 |
85,084 |
9,358 |
0 |
9,358 |
||
|
2023 |
01/23/2023 |
99,500 |
81,033 |
8,913 |
0 |
8,913 |
||
|
2022 |
02/22/2022 |
91,000 |
77,175 |
8,489 |
0 |
8,489 |
||
| Property Building Permit History | |||||||||||
|---|---|---|---|---|---|---|---|---|---|---|---|
| Issued | Permit # | Provided by | Bldg # | Description | Est Construction Cost | Status | |||||
| No Building Permit records returned. | |||||||||||
| Click button on building number to access detailed information: | ||||||
|---|---|---|---|---|---|---|
| Bldg # | Vacant/Improved Land | Bldg Description | Year Built | SqFt | # Stories | |
|
1 |
Improved |
Ranch 1 Story |
1968 |
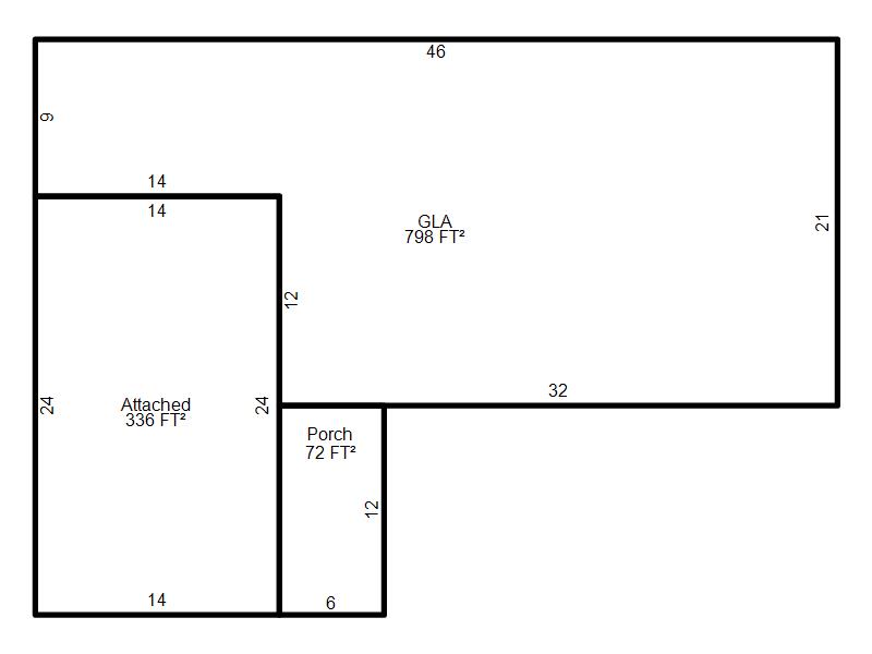
798 |
1 Stories |
|