|
|
|
| Larry Stein Oklahoma County Assessor (405) 713-1200 - Public Access System |
|
|
|
|
|
|
| Real Property Display - Screen Produced 3/15/2026 2:06:29 PM | ||||
|---|---|---|---|---|
| Account: R143611065 | Type: Residential | Location: |
7304 S BROOKLINE AVE |
|
| Building Name/Occupant: |
|
OKLAHOMA CITY |
||
| Owner Name 1: | APOLINAR CLAUDIA |
Parcel PIN#: |
1898-14-361-1065 |
|
| Owner Name 2: | APOLINAR OLIVIA | 1/4 section #: |
1898 |
|
| Owner Name 3: | Parent Acct: |
|
||
| Billing Address: | 7304 S BROOKLINE AVE | Tax District: |
|
|
| City, State, Zip | OKLAHOMA CITY, OK 73159 | School System: |
Western Heights #41 |
|
|
Country: (If noted) |
Land Size: |
0.1731 Acres |
||
|
Land Value: 15,080 |
|
|||
|
Sect 25-T11N-R4W Qtr SE |
MADOLE HILL CREST GREEN #2
Block
001
Lot
007
|
|||
| Full Legal Description: MADOLE HILL CREST GREEN #2 001 007 |
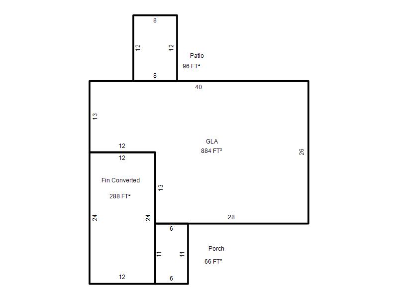
| Photo & Sketch (if available) | Comp Sales (ordered by relevancy) |
|
||||||||||||||||||
|
||||||||||||||||||||
| Value History (*The County Treasurer 405-713-1300 posts & collects actual tax amounts. Contact information HERE) | |||||||||||||
|---|---|---|---|---|---|---|---|---|---|---|---|---|---|
| Year | Market Value | Taxable Mkt Value | Gross Assessed | Exemption | Net Assessed | Millage | Est. Tax | Tax Savings | |||||
|
2025 |
153,500 |
110,397 |
12,143 |
0 |
12,143 |
117.97 |
$1,433 |
$559 |
|||||
|
2024 |
141,000 |
105,140 |
11,564 |
0 |
11,564 |
118.45 |
$1,370 |
$467 |
|||||
|
2023 |
126,500 |
100,134 |
11,014 |
0 |
11,014 |
116.31 |
$1,281 |
$337 |
|||||
|
2022 |
114,000 |
95,366 |
10,489 |
0 |
10,489 |
117.67 |
$1,234 |
$241 |
|||||
|
2021 |
97,000 |
90,825 |
9,990 |
0 |
9,990 |
120.74 |
$1,206 |
$82 |
|||||
| Property Account Status/Adjustments/Exemptions | ||||||
|---|---|---|---|---|---|---|
| Account # | Exemption Description | Amount | ||||
| No adjustment/exemption records returned. | ||||||
| Property Deed Transaction History (Recorded in the County Clerk's Office) | ||||||||||
|---|---|---|---|---|---|---|---|---|---|---|
| Date | Type | Book | Page | Price | Grantor | Grantee | ||||
|
9/8/2025 |
|
Hmstd Off & |
$0 |
APOLINAR OLIVIA |
APOLINAR CLAUDIA |
|||||
|
6/27/2025 |
|
Mult Parcel |
$130,000 |
THOMPSON VERNELL MAY |
APOLINAR OLIVIA |
|||||
|
9/27/2012 |
|
Deeds |
$0 |
THOMPSON VERNELL M & JEFFREY N |
THOMPSON VERNELL MAY |
|||||
|
7/6/2007 |
|
Mult Parcel |
$97,000 |
JOHNSON JERRAL S & REBECCA D |
THOMPSON VERNELL M & JEFFREY N |
|||||
|
4/24/2000 |
|
Deeds |
$0 |
WILSON BEVERLY RUTH |
JOHNSON JERRAL S & REBECCA D |
|||||
| Last Mailed Notice of Value (N.O.V.) Information/History | ||||||||
|---|---|---|---|---|---|---|---|---|
| Year | Date | Market Value | Taxable Market Value | Gross Assessed | Exemption | Net Assessed | ||
|
2026 |
02/06/2026 |
150,500 |
150,500 |
16,555 |
0 |
16,555 |
||
|
2025 |
01/31/2025 |
153,500 |
110,397 |
12,143 |
0 |
12,143 |
||
|
2024 |
01/22/2024 |
141,000 |
105,140 |
11,564 |
0 |
11,564 |
||
|
2023 |
01/23/2023 |
126,500 |
100,134 |
11,014 |
0 |
11,014 |
||
|
2022 |
02/22/2022 |
114,000 |
95,366 |
10,489 |
0 |
10,489 |
||
| Property Building Permit History | |||||||||||
|---|---|---|---|---|---|---|---|---|---|---|---|
| Issued | Permit # | Provided by | Bldg # | Description | Est Construction Cost | Status | |||||
| No Building Permit records returned. | |||||||||||
| Click button on building number to access detailed information: | ||||||
|---|---|---|---|---|---|---|
| Bldg # | Vacant/Improved Land | Bldg Description | Year Built | SqFt | # Stories | |
|
1 |
Improved |
Ranch 1 Story |
1970 |
884 |
1 Stories |
|