|
|
|
| Larry Stein Oklahoma County Assessor (405) 713-1200 - Public Access System |
|
|
|
|
|
|
| Real Property Display - Screen Produced 3/15/2026 2:06:29 PM | ||||
|---|---|---|---|---|
| Account: R143611190 | Type: Residential | Location: |
3029 SW 71ST ST |
|
| Building Name/Occupant: |
|
OKLAHOMA CITY |
||
| Owner Name 1: | HUGHES CLYDE L |
Parcel PIN#: |
1898-14-361-1190 |
|
| Owner Name 2: | 1/4 section #: |
1898 |
||
| Owner Name 3: | Parent Acct: |
|
||
| Billing Address: | 3029 SW 71ST ST | Tax District: |
|
|
| City, State, Zip | OKLAHOMA CITY, OK 73159-3609 | School System: |
Western Heights #41 |
|
|
Country: (If noted) |
Land Size: |
0.1671 Acres |
||
|
Land Value: 14,560 |
|
|||
|
Sect 25-T11N-R4W Qtr SE |
MADOLE HILL CREST GREEN #2
Block
001
Lot
000
|
|||
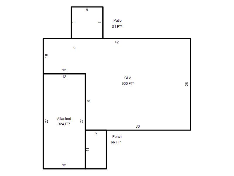
| Full Legal Description: MADOLE HILL CREST GREEN #2 001 000 W3FT LOT 19 BLK 1 & A TRACT 50FT WIDE ADJ LOT 19 ON W BEINGDREXEL AVE NOW VACATED PLUS E3FT LOT 1 BLK 2 |
| Photo & Sketch (if available) | Comp Sales (ordered by relevancy) |
|
||||||||||||||||||
|
||||||||||||||||||||
| Value History (*The County Treasurer 405-713-1300 posts & collects actual tax amounts. Contact information HERE) | |||||||||||||
|---|---|---|---|---|---|---|---|---|---|---|---|---|---|
| Year | Market Value | Taxable Mkt Value | Gross Assessed | Exemption | Net Assessed | Millage | Est. Tax | Tax Savings | |||||
|
2025 |
121,000 |
76,510 |
8,416 |
1,000 |
7,416 |
117.97 |
$875 |
$695 |
|||||
|
2024 |
111,000 |
74,282 |
8,170 |
1,000 |
7,170 |
118.45 |
$849 |
$597 |
|||||
|
2023 |
101,000 |
72,119 |
7,933 |
1,000 |
6,933 |
116.31 |
$806 |
$486 |
|||||
|
2022 |
89,500 |
70,019 |
7,701 |
1,000 |
6,701 |
117.67 |
$789 |
$370 |
|||||
|
2021 |
73,000 |
67,980 |
7,477 |
1,000 |
6,477 |
120.74 |
$782 |
$187 |
|||||
| Property Account Status/Adjustments/Exemptions | ||
|---|---|---|
| Account # | Exemption Description | Amount |
|
R143611190 |
3% Cap Homestead |
0 |
|
R143611190 |
Homestead |
1,000 |
| Property Deed Transaction History (Recorded in the County Clerk's Office) | |||||||
|---|---|---|---|---|---|---|---|
| Date | Type | Book | Page | Price | Grantor | Grantee | |
|
12/1/1984 |
|
Historical |
$44,000 |
|
HUGHES CLYDE L |
||
| Last Mailed Notice of Value (N.O.V.) Information/History | ||||||||
|---|---|---|---|---|---|---|---|---|
| Year | Date | Market Value | Taxable Market Value | Gross Assessed | Exemption | Net Assessed | ||
|
2026 |
02/06/2026 |
120,500 |
78,805 |
8,668 |
1,000 |
7,668 |
||
|
2025 |
01/31/2025 |
121,000 |
76,510 |
8,416 |
1,000 |
7,416 |
||
|
2024 |
01/22/2024 |
111,000 |
74,282 |
8,170 |
1,000 |
7,170 |
||
|
2023 |
01/23/2023 |
101,000 |
72,119 |
7,933 |
1,000 |
6,933 |
||
|
2022 |
02/22/2022 |
89,500 |
70,019 |
7,701 |
1,000 |
6,701 |
||
| Property Building Permit History | |||||||||||
|---|---|---|---|---|---|---|---|---|---|---|---|
| Issued | Permit # | Provided by | Bldg # | Description | Est Construction Cost | Status | |||||
| No Building Permit records returned. | |||||||||||
| Click button on building number to access detailed information: | ||||||
|---|---|---|---|---|---|---|
| Bldg # | Vacant/Improved Land | Bldg Description | Year Built | SqFt | # Stories | |
|
1 |
Improved |
Ranch 1 Story |
1962 |
900 |
1 Stories |
|