|
|
|
| Larry Stein Oklahoma County Assessor (405) 713-1200 - Public Access System |
|
|
|
|
|
|
| Real Property Display - Screen Produced 3/15/2026 2:06:04 PM | ||||
|---|---|---|---|---|
| Account: R143611215 | Type: Residential | Location: |
3109 SW 71ST ST |
|
| Building Name/Occupant: |
|
OKLAHOMA CITY |
||
| Owner Name 1: | MATRIX REAL ESTATE LLC |
Parcel PIN#: |
1898-14-361-1215 |
|
| Owner Name 2: | 1/4 section #: |
1898 |
||
| Owner Name 3: | Parent Acct: |
|
||
| Billing Address: | 8520 S PENNSYLVANIA AVE | Tax District: |
|
|
| City, State, Zip | OKLAHOMA CITY, OK 73159 | School System: |
Western Heights #41 |
|
|
Country: (If noted) |
Land Size: |
0.1641 Acres |
||
|
Land Value: 14,300 |
|
|||
|
Sect 25-T11N-R4W Qtr SE |
MADOLE HILL CREST GREEN #2
Block
002
Lot
003
|
|||
| Full Legal Description: MADOLE HILL CREST GREEN #2 002 003 |
| Photo & Sketch (if available) | Comp Sales (ordered by relevancy) |
|
||||||||||||||||||
|
||||||||||||||||||||
| Value History (*The County Treasurer 405-713-1300 posts & collects actual tax amounts. Contact information HERE) | |||||||||||||
|---|---|---|---|---|---|---|---|---|---|---|---|---|---|
| Year | Market Value | Taxable Mkt Value | Gross Assessed | Exemption | Net Assessed | Millage | Est. Tax | Tax Savings | |||||
|
2025 |
124,500 |
86,146 |
9,475 |
0 |
9,475 |
117.97 |
$1,118 |
$498 |
|||||
|
2024 |
114,500 |
82,044 |
9,024 |
0 |
9,024 |
118.45 |
$1,069 |
$423 |
|||||
|
2023 |
103,500 |
78,138 |
8,594 |
0 |
8,594 |
116.31 |
$1,000 |
$324 |
|||||
|
2022 |
93,500 |
74,418 |
8,185 |
0 |
8,185 |
117.67 |
$963 |
$247 |
|||||
|
2021 |
75,000 |
70,875 |
7,796 |
0 |
7,796 |
120.74 |
$941 |
$55 |
|||||
| Property Account Status/Adjustments/Exemptions | ||
|---|---|---|
| Account # | Exemption Description | Amount |
|
R143611215 |
5% Capped Account |
0 |
| Property Deed Transaction History (Recorded in the County Clerk's Office) | ||||||||||
|---|---|---|---|---|---|---|---|---|---|---|
| Date | Type | Book | Page | Price | Grantor | Grantee | ||||
|
4/10/2020 |
|
Hmstd Off & |
$0 |
FOCUS PROPERTY MANAGEMENT LLC |
MATRIX REAL ESTATE LLC |
|||||
|
11/12/2013 |
|
Deeds |
$39,000 |
MEADE BRADLEY T |
FOCUS PROPERTY MANAGEMENT LLC |
|||||
|
1/23/2008 |
|
Deeds |
$69,000 |
FURRA LISA |
MEADE BRADLEY T |
|||||
|
12/3/2002 |
|
Deeds |
$55,000 |
FLUD RANDY D |
FURRA LISA |
|||||
|
2/26/1996 |
|
Historical |
$0 |
SLIGAR DEWAYNE & ELIZABETH |
FLUD RANDY D |
|||||
| Last Mailed Notice of Value (N.O.V.) Information/History | ||||||||
|---|---|---|---|---|---|---|---|---|
| Year | Date | Market Value | Taxable Market Value | Gross Assessed | Exemption | Net Assessed | ||
|
2026 |
02/06/2026 |
124,000 |
90,453 |
9,949 |
0 |
9,949 |
||
|
2025 |
01/31/2025 |
124,500 |
86,146 |
9,475 |
0 |
9,475 |
||
|
2024 |
01/22/2024 |
114,500 |
82,044 |
9,024 |
0 |
9,024 |
||
|
2023 |
01/23/2023 |
103,500 |
78,138 |
8,594 |
0 |
8,594 |
||
|
2022 |
02/22/2022 |
93,500 |
74,418 |
8,185 |
0 |
8,185 |
||
| Property Building Permit History | |||||||||||
|---|---|---|---|---|---|---|---|---|---|---|---|
| Issued | Permit # | Provided by | Bldg # | Description | Est Construction Cost | Status | |||||
| No Building Permit records returned. | |||||||||||
| Click button on building number to access detailed information: | ||||||
|---|---|---|---|---|---|---|
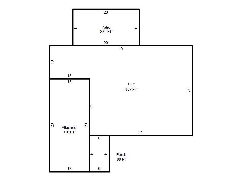
| Bldg # | Vacant/Improved Land | Bldg Description | Year Built | SqFt | # Stories | |
|
1 |
Improved |
Ranch 1 Story |
1961 |
957 |
1 Stories |
|