|
|
|
| Larry Stein Oklahoma County Assessor (405) 713-1200 - Public Access System |
|
|
|
|
|
|
| Real Property Display - Screen Produced 3/15/2026 2:06:29 PM | ||||
|---|---|---|---|---|
| Account: R143611265 | Type: Residential | Location: |
3129 SW 71ST ST |
|
| Building Name/Occupant: |
|
OKLAHOMA CITY |
||
| Owner Name 1: | SPARK BRIXTON LLC |
Parcel PIN#: |
1898-14-361-1265 |
|
| Owner Name 2: | 1/4 section #: |
1898 |
||
| Owner Name 3: | Parent Acct: |
|
||
| Billing Address: | 3140 W BRITTON RD, Unit 204 | Tax District: |
|
|
| City, State, Zip | OKLAHOMA CITY, OK 73120 | School System: |
Western Heights #41 |
|
|
Country: (If noted) |
Land Size: |
0.1641 Acres |
||
|
Land Value: 14,300 |
|
|||
|
Sect 25-T11N-R4W Qtr SE |
MADOLE HILL CREST GREEN #2
Block
002
Lot
008
|
|||
| Full Legal Description: MADOLE HILL CREST GREEN #2 002 008 |
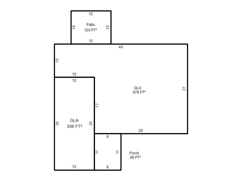
| Photo & Sketch (if available) | Comp Sales (ordered by relevancy) |
|
||||||||||||||||||
|
||||||||||||||||||||
| Value History (*The County Treasurer 405-713-1300 posts & collects actual tax amounts. Contact information HERE) | |||||||||||||
|---|---|---|---|---|---|---|---|---|---|---|---|---|---|
| Year | Market Value | Taxable Mkt Value | Gross Assessed | Exemption | Net Assessed | Millage | Est. Tax | Tax Savings | |||||
|
2025 |
132,000 |
132,000 |
14,520 |
0 |
14,520 |
117.97 |
$1,713 |
$0 |
|||||
|
2024 |
110,000 |
90,825 |
9,990 |
0 |
9,990 |
118.45 |
$1,183 |
$250 |
|||||
|
2023 |
86,500 |
86,500 |
9,515 |
0 |
9,515 |
116.31 |
$1,107 |
$0 |
|||||
|
2022 |
89,000 |
71,111 |
7,821 |
0 |
7,821 |
117.67 |
$920 |
$232 |
|||||
|
2021 |
71,500 |
67,725 |
7,449 |
0 |
7,449 |
120.74 |
$899 |
$50 |
|||||
| Property Account Status/Adjustments/Exemptions | ||
|---|---|---|
| Account # | Exemption Description | Amount |
|
R143611265 |
5% Capped Account |
0 |
| Property Deed Transaction History (Recorded in the County Clerk's Office) | |||||||
|---|---|---|---|---|---|---|---|
| Date | Type | Book | Page | Price | Grantor | Grantee | |
|
8/1/2024 |
|
Deeds |
$132,000 |
EASTMAN ENTERPRISES LLC |
SPARK BRIXTON LLC |
||
|
8/18/2022 |
|
Deeds |
$85,000 |
CARAKER SHERRI D |
EASTMAN ENTERPRISES LLC |
||
|
3/25/2022 |
|
Hmstd Off & |
$0 |
CARAKER ROZELLA L |
CARAKER SHERRI D |
||
|
7/22/1992 |
|
Historical |
$0 |
CARAKER PAUL E & ROZELLA L |
CARAKER ROZELLA L |
||
|
9/1/1984 |
|
Historical |
$39,500 |
|
CARAKER PAUL E & ROZELLA L |
||
| Last Mailed Notice of Value (N.O.V.) Information/History | ||||||||
|---|---|---|---|---|---|---|---|---|
| Year | Date | Market Value | Taxable Market Value | Gross Assessed | Exemption | Net Assessed | ||
|
2025 |
01/31/2025 |
174,000 |
174,000 |
19,140 |
0 |
19,140 |
||
|
2024 |
01/22/2024 |
110,000 |
90,825 |
9,990 |
0 |
9,990 |
||
|
2023 |
01/23/2023 |
86,500 |
86,500 |
9,515 |
0 |
9,515 |
||
|
2022 |
02/22/2022 |
89,000 |
71,111 |
7,821 |
0 |
7,821 |
||
|
2022 |
04/05/2022 |
89,000 |
71,111 |
7,821 |
0 |
7,821 |
||
| Property Building Permit History | |||||||||||
|---|---|---|---|---|---|---|---|---|---|---|---|
| Issued | Permit # | Provided by | Bldg # | Description | Est Construction Cost | Status | |||||
| No Building Permit records returned. | |||||||||||
| Click button on building number to access detailed information: | ||||||
|---|---|---|---|---|---|---|
| Bldg # | Vacant/Improved Land | Bldg Description | Year Built | SqFt | # Stories | |
|
1 |
Improved |
Ranch 1 Story |
1962 |
1,212 |
1 Stories |
|