|
|
|
| Larry Stein Oklahoma County Assessor (405) 713-1200 - Public Access System |
|
|
|
|
|
|
| Real Property Display - Screen Produced 3/15/2026 2:06:04 PM | ||||
|---|---|---|---|---|
| Account: R143611275 | Type: Residential | Location: |
3133 SW 71ST ST |
|
| Building Name/Occupant: |
|
OKLAHOMA CITY |
||
| Owner Name 1: | OLIVAS ALEJANDRA VAZQUEZ |
Parcel PIN#: |
1898-14-361-1275 |
|
| Owner Name 2: | 1/4 section #: |
1898 |
||
| Owner Name 3: | Parent Acct: |
|
||
| Billing Address: | 3133 SW 71ST ST | Tax District: |
|
|
| City, State, Zip | OKLAHOMA CITY, OK 73159-3611 | School System: |
Western Heights #41 |
|
|
Country: (If noted) |
Land Size: |
0.1671 Acres |
||
|
Land Value: 14,560 |
|
|||
|
Sect 25-T11N-R4W Qtr SE |
MADOLE HILL CREST GREEN #2
Block
002
Lot
009
|
|||
| Full Legal Description: MADOLE HILL CREST GREEN #2 002 009 |
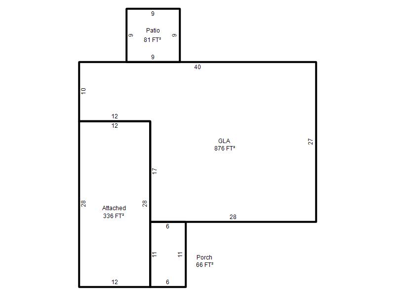
| Photo & Sketch (if available) | Comp Sales (ordered by relevancy) |
|
||||||||||||||||||
|
||||||||||||||||||||
| Value History (*The County Treasurer 405-713-1300 posts & collects actual tax amounts. Contact information HERE) | |||||||||||||
|---|---|---|---|---|---|---|---|---|---|---|---|---|---|
| Year | Market Value | Taxable Mkt Value | Gross Assessed | Exemption | Net Assessed | Millage | Est. Tax | Tax Savings | |||||
|
2025 |
152,500 |
93,320 |
10,264 |
1,000 |
9,264 |
117.97 |
$1,093 |
$886 |
|||||
|
2024 |
141,000 |
90,602 |
9,966 |
1,000 |
8,966 |
118.45 |
$1,062 |
$775 |
|||||
|
2023 |
126,000 |
87,964 |
9,675 |
1,000 |
8,675 |
116.31 |
$1,009 |
$603 |
|||||
|
2022 |
112,000 |
85,402 |
9,393 |
1,000 |
8,393 |
117.67 |
$988 |
$462 |
|||||
|
2021 |
90,000 |
82,915 |
9,120 |
1,000 |
8,120 |
120.74 |
$980 |
$215 |
|||||
| Property Account Status/Adjustments/Exemptions | ||
|---|---|---|
| Account # | Exemption Description | Amount |
|
R143611275 |
3% Cap Homestead |
0 |
|
R143611275 |
Homestead |
1,000 |
| Property Deed Transaction History (Recorded in the County Clerk's Office) | |||||||
|---|---|---|---|---|---|---|---|
| Date | Type | Book | Page | Price | Grantor | Grantee | |
|
8/30/2016 |
|
Deeds |
$82,500 |
R J ABBOTT HOLDINGS LLC |
OLIVAS ALEJANDRA VAZQUEZ |
||
|
7/20/2016 |
|
Hmstd Off & |
$0 |
JACO CHRIS KEITH & KAREN ABBOTT ADAMS BELGARD |
R J ABBOTT HOLDINGS LLC |
||
|
12/3/2014 |
|
Hmstd Off & |
$0 |
ABBOTT REX J |
JACO KAREN L |
||
|
11/12/2014 |
|
Hmstd Off & |
$0 |
JACO KAREN L |
R J ABBOTT HOLDINGS LLC |
||
|
4/1/1976 |
|
Historical |
$0 |
|
ABBOTT REX J |
||
| Last Mailed Notice of Value (N.O.V.) Information/History | ||||||||
|---|---|---|---|---|---|---|---|---|
| Year | Date | Market Value | Taxable Market Value | Gross Assessed | Exemption | Net Assessed | ||
|
2026 |
02/06/2026 |
152,000 |
96,119 |
10,572 |
1,000 |
9,572 |
||
|
2025 |
01/31/2025 |
152,500 |
93,320 |
10,264 |
1,000 |
9,264 |
||
|
2024 |
01/22/2024 |
141,000 |
90,602 |
9,966 |
1,000 |
8,966 |
||
|
2023 |
01/23/2023 |
126,000 |
87,964 |
9,675 |
1,000 |
8,675 |
||
|
2022 |
02/22/2022 |
112,000 |
85,402 |
9,393 |
1,000 |
8,393 |
||
| Property Building Permit History | |||||||||||
|---|---|---|---|---|---|---|---|---|---|---|---|
| Issued | Permit # | Provided by | Bldg # | Description | Est Construction Cost | Status | |||||
| No Building Permit records returned. | |||||||||||
| Click button on building number to access detailed information: | ||||||
|---|---|---|---|---|---|---|
| Bldg # | Vacant/Improved Land | Bldg Description | Year Built | SqFt | # Stories | |
|
1 |
Improved |
Ranch 1 Story |
1962 |
876 |
1 Stories |
|