|
|
|
| Larry Stein Oklahoma County Assessor (405) 713-1200 - Public Access System |
|
|
|
|
|
|
| Real Property Display - Screen Produced 3/15/2026 2:06:42 PM | ||||
|---|---|---|---|---|
| Account: R143611585 | Type: Residential | Location: |
3160 SW 72ND ST |
|
| Building Name/Occupant: |
|
OKLAHOMA CITY |
||
| Owner Name 1: | POWERS CLARENCE ALBERT JR |
Parcel PIN#: |
1898-14-361-1585 |
|
| Owner Name 2: | 1/4 section #: |
1898 |
||
| Owner Name 3: | Parent Acct: |
|
||
| Billing Address: | 139 NEVADA AVE | Tax District: |
|
|
| City, State, Zip | BUFFALO , NY 14211-1674 | School System: |
Western Heights #41 |
|
|
Country: (If noted) |
Land Size: |
0.1671 Acres |
||
|
Land Value: 14,560 |
|
|||
|
Sect 25-T11N-R4W Qtr SE |
MADOLE HILL CREST GREEN #2
Block
003
Lot
000
|
|||
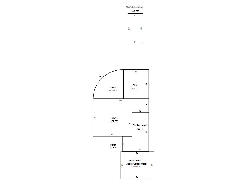
| Full Legal Description: MADOLE HILL CREST GREEN #2 003 000 E10FT LOT 25 & W46FT LOT 26 |
| Photo & Sketch (if available) | Comp Sales (ordered by relevancy) |
|
||||||||||||||||||
|
||||||||||||||||||||
| Value History (*The County Treasurer 405-713-1300 posts & collects actual tax amounts. Contact information HERE) | |||||||||||||
|---|---|---|---|---|---|---|---|---|---|---|---|---|---|
| Year | Market Value | Taxable Mkt Value | Gross Assessed | Exemption | Net Assessed | Millage | Est. Tax | Tax Savings | |||||
|
2025 |
147,500 |
104,809 |
11,528 |
0 |
11,528 |
117.97 |
$1,360 |
$554 |
|||||
|
2024 |
134,500 |
99,819 |
10,979 |
0 |
10,979 |
118.45 |
$1,301 |
$452 |
|||||
|
2023 |
125,500 |
95,066 |
10,456 |
1,000 |
9,456 |
116.31 |
$1,100 |
$506 |
|||||
|
2022 |
115,000 |
92,298 |
10,152 |
1,000 |
9,152 |
117.67 |
$1,077 |
$412 |
|||||
|
2021 |
95,000 |
89,610 |
9,857 |
1,000 |
8,857 |
120.74 |
$1,069 |
$192 |
|||||
| Property Account Status/Adjustments/Exemptions | ||
|---|---|---|
| Account # | Exemption Description | Amount |
|
R143611585 |
5% Capped Account |
0 |
| Property Deed Transaction History (Recorded in the County Clerk's Office) | |||||||
|---|---|---|---|---|---|---|---|
| Date | Type | Book | Page | Price | Grantor | Grantee | |
|
10/20/2025 |
|
Hmstd Off & |
$0 |
POWERS CLARENCE A & WANDA C |
POWERS WANDA C |
||
|
10/20/2025 |
|
Hmstd Off & |
$0 |
POWERS WANDA C |
POWERS CLARENCE ALBERT JR |
||
|
3/1/1977 |
|
Historical |
$0 |
|
POWERS CLARENCE A & WANDA C |
||
| Last Mailed Notice of Value (N.O.V.) Information/History | ||||||||
|---|---|---|---|---|---|---|---|---|
| Year | Date | Market Value | Taxable Market Value | Gross Assessed | Exemption | Net Assessed | ||
|
2026 |
02/06/2026 |
145,500 |
110,049 |
12,104 |
0 |
12,104 |
||
|
2025 |
01/31/2025 |
147,500 |
104,809 |
11,528 |
0 |
11,528 |
||
|
2024 |
01/22/2024 |
134,500 |
97,917 |
10,770 |
1,000 |
9,770 |
||
|
2023 |
01/23/2023 |
125,500 |
95,066 |
10,456 |
1,000 |
9,456 |
||
|
2022 |
02/22/2022 |
115,000 |
92,298 |
10,152 |
1,000 |
9,152 |
||
| Property Building Permit History | ||||||
|---|---|---|---|---|---|---|
| Issued | Permit # | Provided by | Bldg # | Description | Est Construction Cost | Status |
|
11/24/1998 |
10237868 |
OKLAHOMA CITY |
1 |
Carport |
1,800 |
Inactive |
| Click button on building number to access detailed information: | ||||||
|---|---|---|---|---|---|---|
| Bldg # | Vacant/Improved Land | Bldg Description | Year Built | SqFt | # Stories | |
|
1 |
Improved |
Ranch 1 Story |
1962 |
1,254 |
1 Stories |
|