|
|
|
| Larry Stein Oklahoma County Assessor (405) 713-1200 - Public Access System |
|
|
|
|
|
|
| Real Property Display - Screen Produced 3/15/2026 2:06:42 PM | ||||
|---|---|---|---|---|
| Account: R143611645 | Type: Residential | Location: |
3136 SW 72ND ST |
|
| Building Name/Occupant: |
|
OKLAHOMA CITY |
||
| Owner Name 1: | DONAHUE TOM |
Parcel PIN#: |
1898-14-361-1645 |
|
| Owner Name 2: | 1/4 section #: |
1898 |
||
| Owner Name 3: | Parent Acct: |
|
||
| Billing Address: | 3136 SW 72ND ST | Tax District: |
|
|
| City, State, Zip | OKLAHOMA CITY, OK 73159-3616 | School System: |
Western Heights #41 |
|
|
Country: (If noted) |
Land Size: |
0.3734 Acres |
||
|
Land Value: 20,972 |
|
|||
|
Sect 25-T11N-R4W Qtr SE |
MADOLE HILL CREST GREEN #2
Block
003
Lot
032
|
|||
| Full Legal Description: MADOLE HILL CREST GREEN #2 003 032 |
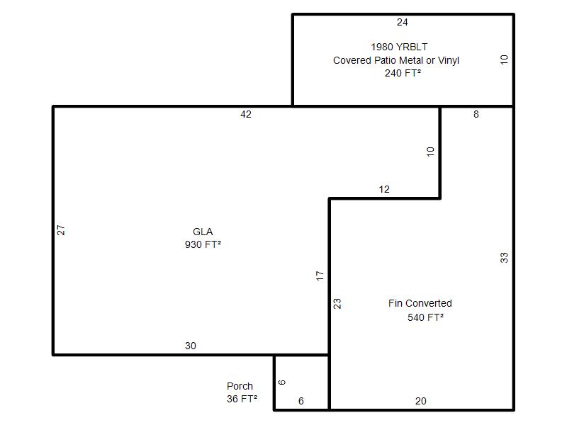
| Photo & Sketch (if available) | Comp Sales (ordered by relevancy) |
|
||||||||||||||||||
|
||||||||||||||||||||
| Value History (*The County Treasurer 405-713-1300 posts & collects actual tax amounts. Contact information HERE) | |||||||||||||
|---|---|---|---|---|---|---|---|---|---|---|---|---|---|
| Year | Market Value | Taxable Mkt Value | Gross Assessed | Exemption | Net Assessed | Millage | Est. Tax | Tax Savings | |||||
|
2025 |
144,000 |
105,930 |
11,651 |
0 |
11,651 |
117.97 |
$1,375 |
$494 |
|||||
|
2024 |
131,000 |
100,886 |
11,097 |
0 |
11,097 |
118.45 |
$1,314 |
$392 |
|||||
|
2023 |
120,000 |
96,082 |
10,568 |
0 |
10,568 |
116.31 |
$1,229 |
$306 |
|||||
|
2022 |
108,000 |
91,507 |
10,065 |
0 |
10,065 |
117.67 |
$1,184 |
$213 |
|||||
|
2021 |
92,500 |
87,150 |
9,586 |
0 |
9,586 |
120.74 |
$1,157 |
$71 |
|||||
| Property Account Status/Adjustments/Exemptions | ||
|---|---|---|
| Account # | Exemption Description | Amount |
|
R143611645 |
5% Capped Account |
0 |
| Property Deed Transaction History (Recorded in the County Clerk's Office) | |||||||
|---|---|---|---|---|---|---|---|
| Date | Type | Book | Page | Price | Grantor | Grantee | |
|
2/12/2010 |
|
Hmstd Off & |
$0 |
DONAHUE DEMA Q C/O DEMA JOHNSON |
DONAHUE TOM |
||
|
9/1/1984 |
|
Historical |
$0 |
|
DONAHUE DEMA Q |
||
| Last Mailed Notice of Value (N.O.V.) Information/History | ||||||||
|---|---|---|---|---|---|---|---|---|
| Year | Date | Market Value | Taxable Market Value | Gross Assessed | Exemption | Net Assessed | ||
|
2026 |
02/06/2026 |
143,000 |
111,226 |
12,234 |
0 |
12,234 |
||
|
2025 |
01/31/2025 |
144,000 |
105,930 |
11,651 |
0 |
11,651 |
||
|
2024 |
01/22/2024 |
131,000 |
100,886 |
11,097 |
0 |
11,097 |
||
|
2023 |
01/23/2023 |
120,000 |
96,082 |
10,568 |
0 |
10,568 |
||
|
2022 |
02/22/2022 |
108,000 |
91,507 |
10,065 |
0 |
10,065 |
||
| Property Building Permit History | |||||||||||
|---|---|---|---|---|---|---|---|---|---|---|---|
| Issued | Permit # | Provided by | Bldg # | Description | Est Construction Cost | Status | |||||
| No Building Permit records returned. | |||||||||||
| Click button on building number to access detailed information: | ||||||
|---|---|---|---|---|---|---|
| Bldg # | Vacant/Improved Land | Bldg Description | Year Built | SqFt | # Stories | |
|
1 |
Improved |
Ranch 1 Story |
1962 |
930 |
1 Stories |
|