|
|
|
| Larry Stein Oklahoma County Assessor (405) 713-1200 - Public Access System |
|
|
|
|
|
|
| Real Property Display - Screen Produced 3/15/2026 4:01:09 AM | ||||
|---|---|---|---|---|
| Account: R123561140 | Type: Residential | Location: |
8708 SW 81ST ST |
|
| Building Name/Occupant: |
|
OKLAHOMA CITY |
||
| Owner Name 1: | FOULK JOHN |
Parcel PIN#: |
1923-12-356-1140 |
|
| Owner Name 2: | FOULK SHELLY | 1/4 section #: |
1923 |
|
| Owner Name 3: | Parent Acct: |
|
||
| Billing Address: | 8708 SW 81ST ST | Tax District: |
|
|
| City, State, Zip | OKLAHOMA CITY, OK 73169-1450 | School System: |
Mustang #69 |
|
|
Country: (If noted) |
Land Size: |
0.5303 Acres |
||
|
Land Value: 46,200 |
|
|||
|
Sect 31-T11N-R4W Qtr SW |
WESTWOOD ESTATES SEC 2
Block
003
Lot
024
|
|||
| Full Legal Description: WESTWOOD ESTATES SEC 2 003 024 |
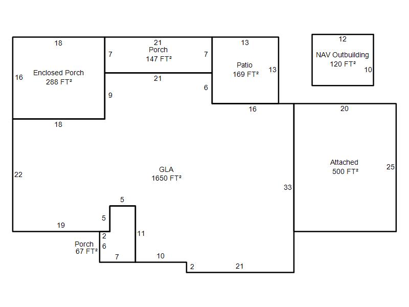
| Photo & Sketch (if available) | Comp Sales (ordered by relevancy) |
|
||||||||||||||||||
|
||||||||||||||||||||
| Value History (*The County Treasurer 405-713-1300 posts & collects actual tax amounts. Contact information HERE) | |||||||||||||
|---|---|---|---|---|---|---|---|---|---|---|---|---|---|
| Year | Market Value | Taxable Mkt Value | Gross Assessed | Exemption | Net Assessed | Millage | Est. Tax | Tax Savings | |||||
|
2025 |
273,500 |
213,885 |
23,527 |
0 |
23,527 |
125.59 |
$2,955 |
$824 |
|||||
|
2024 |
238,000 |
203,700 |
22,407 |
0 |
22,407 |
124.15 |
$2,782 |
$468 |
|||||
|
2023 |
194,000 |
194,000 |
21,340 |
0 |
21,340 |
121.69 |
$2,597 |
$0 |
|||||
|
2022 |
194,000 |
194,000 |
21,340 |
0 |
21,340 |
123.46 |
$2,635 |
$0 |
|||||
|
2021 |
194,000 |
194,000 |
21,340 |
0 |
21,340 |
122.90 |
$2,623 |
$0 |
|||||
| Property Account Status/Adjustments/Exemptions | ||||||
|---|---|---|---|---|---|---|
| Account # | Exemption Description | Amount | ||||
| No adjustment/exemption records returned. | ||||||
| Property Deed Transaction History (Recorded in the County Clerk's Office) | ||||||||||
|---|---|---|---|---|---|---|---|---|---|---|
| Date | Type | Book | Page | Price | Grantor | Grantee | ||||
|
12/23/2020 |
|
Deeds |
$195,500 |
JEFFERS LARRY G & JOY ELIZABETH |
FOULK JOHN |
|||||
|
4/24/2018 |
|
Deeds |
$0 |
JEFFERS LARRY G |
JEFFERS LARRY G & JOY ELIZABETH |
|||||
|
11/25/2002 |
|
Deeds |
$108,000 |
LEE MARGARET C TRS LEE MARGARET C TRUST |
JEFFERS LARRY G |
|||||
|
12/11/1995 |
|
Historical |
$0 |
LEE MARGARET C |
LEE MARGARET C TRS |
|||||
|
8/21/1990 |
|
Historical |
$82,500 |
STOWE RUSSELL E & RITA K |
LEE MARGARET C |
|||||
| Last Mailed Notice of Value (N.O.V.) Information/History | ||||||||
|---|---|---|---|---|---|---|---|---|
| Year | Date | Market Value | Taxable Market Value | Gross Assessed | Exemption | Net Assessed | ||
|
2026 |
02/06/2026 |
317,000 |
224,579 |
24,703 |
0 |
24,703 |
||
|
2025 |
01/31/2025 |
273,500 |
213,885 |
23,527 |
0 |
23,527 |
||
|
2024 |
01/22/2024 |
238,000 |
203,700 |
22,407 |
0 |
22,407 |
||
|
2021 |
04/09/2021 |
194,000 |
194,000 |
21,340 |
0 |
21,340 |
||
|
2019 |
02/26/2019 |
165,500 |
164,285 |
18,072 |
1,000 |
17,072 |
||
| Property Building Permit History | ||||||
|---|---|---|---|---|---|---|
| Issued | Permit # | Provided by | Bldg # | Description | Est Construction Cost | Status |
|
9/15/1992 |
10209953 |
OKLAHOMA CITY |
1 |
Add On |
16,000 |
Inactive |
| Click button on building number to access detailed information: | ||||||
|---|---|---|---|---|---|---|
| Bldg # | Vacant/Improved Land | Bldg Description | Year Built | SqFt | # Stories | |
|
1 |
Improved |
Ranch 1 Story |
1988 |
1,650 |
1 Stories |
|