|
|
|
| Larry Stein Oklahoma County Assessor (405) 713-1200 - Public Access System |
|
|
|
|
|
|
| Real Property Display - Screen Produced 3/12/2026 7:13:22 PM | ||||
|---|---|---|---|---|
| Account: R141435050 | Type: Residential | Location: |
8808 S COUNTY LINE RD |
|
| Building Name/Occupant: |
|
OKLAHOMA CITY |
||
| Owner Name 1: | THATCHER RONNIE E JR & RICHAEL A |
Parcel PIN#: |
1923-14-143-5050 |
|
| Owner Name 2: | 1/4 section #: |
1923 |
||
| Owner Name 3: | Parent Acct: |
|
||
| Billing Address: | 8808 S COUNTY LINE RD | Tax District: |
|
|
| City, State, Zip | OKLAHOMA CITY, OK 73169-1613 | School System: |
Mustang #69 |
|
|
Country: (If noted) |
Land Size: |
6.8300 Acres |
||
|
Land Value: 81,072 |
|
|||
|
Sect 31-T11N-R4W Qtr SW |
UNPLTD PT SEC 31 11N 4W
Block
000
Lot
000
|
|||
| Full Legal Description: UNPLTD PT SEC 31 11N 4W 000 000 PT SW4 SEC 31 11N 4W BEG SW/C OF SW4 TH N778.43FT NELY ON ACURVE 377.10FT S804.38FT W376FT TO BEG CONT 6.83ACRS MORE OR LESS SUBJ TO EASEMENTS OF RECORD |
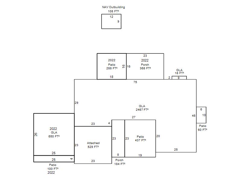
| Photo & Sketch (if available) | Comp Sales (ordered by relevancy) |
|
||||||||||||||||||
|
||||||||||||||||||||
| Value History (*The County Treasurer 405-713-1300 posts & collects actual tax amounts. Contact information HERE) | |||||||||||||
|---|---|---|---|---|---|---|---|---|---|---|---|---|---|
| Year | Market Value | Taxable Mkt Value | Gross Assessed | Exemption | Net Assessed | Millage | Est. Tax | Tax Savings | |||||
|
2025 |
321,500 |
281,023 |
30,912 |
1,000 |
29,912 |
125.59 |
$3,757 |
$685 |
|||||
|
2024 |
315,500 |
272,838 |
30,012 |
1,000 |
29,012 |
124.15 |
$3,602 |
$707 |
|||||
|
2023 |
319,000 |
264,892 |
29,137 |
1,000 |
28,137 |
121.69 |
$3,424 |
$846 |
|||||
|
2022 |
319,000 |
257,177 |
28,288 |
1,000 |
27,288 |
123.46 |
$3,369 |
$963 |
|||||
|
2021 |
277,000 |
249,687 |
27,464 |
1,000 |
26,464 |
122.90 |
$3,253 |
$492 |
|||||
| Property Account Status/Adjustments/Exemptions | ||
|---|---|---|
| Account # | Exemption Description | Amount |
|
R141435050 |
3% Cap Homestead |
0 |
|
R141435050 |
Homestead |
1,000 |
| Property Deed Transaction History (Recorded in the County Clerk's Office) | |||||||
|---|---|---|---|---|---|---|---|
| Date | Type | Book | Page | Price | Grantor | Grantee | |
|
11/7/2003 |
|
Deeds |
$140,000 |
THATCHER RONNIE E & SHARON K |
THATCHER RONNIE E JR & RICHAEL A |
||
|
8/12/1997 |
|
Historical |
$0 |
THATCHER EARNEST C |
THATCHER RONNIE E & SHARON K |
||
|
10/1/1984 |
|
Historical |
$0 |
|
THATCHER EARNEST C |
||
| Last Mailed Notice of Value (N.O.V.) Information/History | ||||||||
|---|---|---|---|---|---|---|---|---|
| Year | Date | Market Value | Taxable Market Value | Gross Assessed | Exemption | Net Assessed | ||
|
2025 |
01/31/2025 |
321,500 |
281,023 |
30,912 |
1,000 |
29,912 |
||
|
2024 |
01/22/2024 |
315,500 |
272,838 |
30,012 |
1,000 |
29,012 |
||
|
2023 |
01/23/2023 |
319,000 |
264,892 |
29,137 |
1,000 |
28,137 |
||
|
2022 |
02/22/2022 |
319,000 |
257,177 |
28,287 |
1,000 |
27,287 |
||
|
2021 |
02/24/2021 |
277,000 |
249,687 |
27,465 |
1,000 |
26,465 |
||
| Property Building Permit History | ||||||
|---|---|---|---|---|---|---|
| Issued | Permit # | Provided by | Bldg # | Description | Est Construction Cost | Status |
|
1/30/2025 |
|
|
1 |
Add On |
|
Inactive |
| Click button on building number to access detailed information: | ||||||
|---|---|---|---|---|---|---|
| Bldg # | Vacant/Improved Land | Bldg Description | Year Built | SqFt | # Stories | |
|
1 |
Improved |
Ranch 1 Story |
1985 |
3,135 |
1 Stories |
|