|
|
|
| Larry Stein Oklahoma County Assessor (405) 713-1200 - Public Access System |
|
|
|
|
|
|
| Real Property Display - Screen Produced 3/12/2026 7:11:46 PM | ||||
|---|---|---|---|---|
| Account: R141435055 | Type: Residential | Location: |
8837 SW 89TH ST |
|
| Building Name/Occupant: |
|
OKLAHOMA CITY |
||
| Owner Name 1: | JANTZ RENNER & STEPHANIE |
Parcel PIN#: |
1923-14-143-5055 |
|
| Owner Name 2: | 1/4 section #: |
1923 |
||
| Owner Name 3: | Parent Acct: |
|
||
| Billing Address: | 8837 SW 89TH ST | Tax District: |
|
|
| City, State, Zip | OKLAHOMA CITY, OK 73169-1707 | School System: |
Mustang #69 |
|
|
Country: (If noted) |
Land Size: |
6.6100 Acres |
||
|
Land Value: 78,461 |
|
|||
|
Sect 31-T11N-R4W Qtr SW |
UNPLTD PT SEC 31 11N 4W
Block
000
Lot
000
|
|||
| Full Legal Description: UNPLTD PT SEC 31 11N 4W 000 000 PT SW4 SEC 31 11N 4W BEG 376FT E OF SW/C OF SW4 TH N804.38FT NELY ON A CURVE 350.56FT S890.07FT W340FT TO BEG CONT 6.61ACRS MORE OR LESS SUBJ TO EASEMENTS OF RECORD |
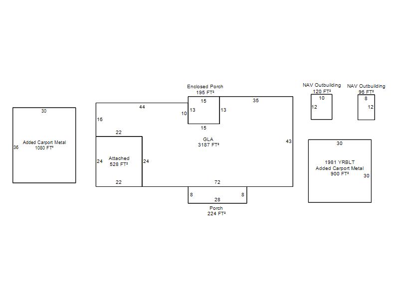
| Photo & Sketch (if available) | Comp Sales (ordered by relevancy) |
|
||||||||||||||||||
|
||||||||||||||||||||
| Value History (*The County Treasurer 405-713-1300 posts & collects actual tax amounts. Contact information HERE) | |||||||||||||
|---|---|---|---|---|---|---|---|---|---|---|---|---|---|
| Year | Market Value | Taxable Mkt Value | Gross Assessed | Exemption | Net Assessed | Millage | Est. Tax | Tax Savings | |||||
|
2025 |
369,500 |
355,431 |
39,096 |
1,000 |
38,096 |
125.59 |
$4,785 |
$320 |
|||||
|
2024 |
362,500 |
345,079 |
37,958 |
1,000 |
36,958 |
124.15 |
$4,588 |
$362 |
|||||
|
2023 |
365,000 |
335,029 |
36,852 |
1,000 |
35,852 |
121.69 |
$4,363 |
$523 |
|||||
|
2022 |
371,000 |
325,271 |
35,779 |
1,000 |
34,779 |
123.46 |
$4,294 |
$744 |
|||||
|
2021 |
317,500 |
315,798 |
34,737 |
1,000 |
33,737 |
122.90 |
$4,146 |
$146 |
|||||
| Property Account Status/Adjustments/Exemptions | ||
|---|---|---|
| Account # | Exemption Description | Amount |
|
R141435055 |
3% Cap Homestead |
0 |
|
R141435055 |
Homestead |
1,000 |
| Property Deed Transaction History (Recorded in the County Clerk's Office) | |||||||
|---|---|---|---|---|---|---|---|
| Date | Type | Book | Page | Price | Grantor | Grantee | |
|
1/6/2017 |
|
Deeds |
$300,000 |
WHITTALL ROBERT W & MARY A TRS WHITTALL FAMILY REV TRUST |
JANTZ RENNER & STEPHANIE |
||
|
1/23/1998 |
|
Historical |
$0 |
WHITTALL ROBERT W |
WHITTALL ROBERT W & MARY A TRS |
||
|
10/1/1984 |
|
Historical |
$0 |
|
WHITTALL ROBERT W |
||
| Last Mailed Notice of Value (N.O.V.) Information/History | ||||||||
|---|---|---|---|---|---|---|---|---|
| Year | Date | Market Value | Taxable Market Value | Gross Assessed | Exemption | Net Assessed | ||
|
2025 |
01/31/2025 |
369,500 |
355,431 |
39,096 |
1,000 |
38,096 |
||
|
2024 |
01/22/2024 |
362,500 |
345,079 |
37,958 |
1,000 |
36,958 |
||
|
2023 |
01/23/2023 |
365,000 |
335,029 |
36,852 |
1,000 |
35,852 |
||
|
2022 |
02/22/2022 |
371,000 |
325,271 |
35,779 |
1,000 |
34,779 |
||
|
2021 |
02/24/2021 |
317,500 |
315,798 |
34,737 |
1,000 |
33,737 |
||
| Property Building Permit History | |||||||||||
|---|---|---|---|---|---|---|---|---|---|---|---|
| Issued | Permit # | Provided by | Bldg # | Description | Est Construction Cost | Status | |||||
| No Building Permit records returned. | |||||||||||
| Click button on building number to access detailed information: | ||||||
|---|---|---|---|---|---|---|
| Bldg # | Vacant/Improved Land | Bldg Description | Year Built | SqFt | # Stories | |
|
1 |
Improved |
Ranch 1 Story |
1981 |
3,187 |
1 Stories |
|